Eladó családi ház Újudvar 109 900 000 Ft

Leírás

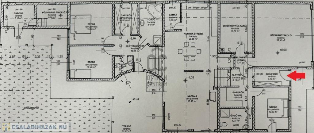
Új tulajdonosát keresi ez a valóban világos, 4 szobás, könnyűszerkezetes, szinteltolásos családi ház, ideális telekmérettel, Nagykanizsától nem messze!
Ha kellemes, tágas otthont keres, nyugodt, zöld környezetben, ezt házat feltétlenül nézze meg!

INGATLAN ELHELYEZKEDÉSE:
- Nagykanizsa szomszédságában, kb. 8 km re található az ingatlan.
- Tömegközlekedés szempontjából buszjárat megoldott.
- Autóval kényelmes 5-8 perc alatt elérhető Nagykanizsa.

A HÁZ JELLEMZŐI:
- Az 1200 m2 telken elhelyezkedő ház 2008-ban épült.
- Nettó 201 m2.
- 2 fürdőszoba.
- A beton alapra épült ingatlan, fa falszerkezettel és födémszerkezettel, valamint fa tetőszerkezettel és bitumenes zsindelyfedéssel készült.
- Padlóban 4 cm, a födémen pedig 2x20 cm üveggyapot hőszigetelés került elhelyezésre.
- A ház külső falszerkezete 12 cm vastag üveggyapot, valamint 8 cm vastag dryvit hőszigetelést kapott.
- Napelem rendszer található az ingatlanon, mely rásegít a melegvíz előállításban.
- 3 fázis csatlakozás elérhető.
- Nyílászárói hőszigetelt fa nyílászárók.
- A melegért gáz-cirkó fűtés gondoskodik, külső hőmérséklet érzékelővel.
- A három szoba kivételével padló és radiátoros fűtés, a szobákban pedig csak radiátoros fűtés van kiépítve.
- Tájolása dél-kelet-nyugati.
- Belmagasság 260 cm.

Ha felkeltette érdeklődését ez a nem mindennapi ház, HÍVJON FEL és nézzük meg együtt!

Irodánk teljes körű, ingyenes szolgáltatást nyújt kereső ügyfeleinknek. Szakszerű tanácsadással, hitel ügyintézéssel, energetikai tanúsítvány elkészítésével és kedvező díjszabású ügyvéddel nyújtunk segítséget!

Bővebb információért és a megtekintéssel kapcsolatban várom HÍVÁSÁT a hét minden napján!

Családi ház részletei

Ár: 109 900 000 Ft
Méret: 201 négyzetméter
Azonosító: 11601483
Irodai azonosító: H485898-5157560
Telek: 1200 négyzetméter
Ingatlan állapota:
Jelleg: családi ház
Építőanyag: Könnyűszerkezetes
Fűtés jellege: Cirkó
Fűtés módja: Gáz
Kor: 11-20 éves
Szintek száma: Földszintes
Egész szobák: 4

Térkép


Így keressen családi házat négy egyszerű lépésben. Csupán 2 perc, kötelezettségek nélkül!

Szűkítse a családi házak
listáját
Válassza ki a megfelelő
családi házat
Írjon a hirdetőnek
Várjon a visszahívásra