Eladó családi ház Újlengyel 78 000 000 Ft

Leírás

A CasaNetWork Ingatlanhálózat ceglédi irodája eladásra kínálja  174602160 Id számú új építésú lakást Újlengyelben.

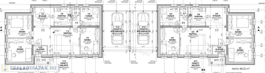
ELADÓ Újlengyelben, csendes és nyugodt környezetben eladó egy új építésű ikerház 2. számú lakása, melynek átadása 2026. szeptemberében várható. Az ingatlan 88 m² fűtött lakótérrel rendelkezik, melyhez egy 23,4 m²-es, az épülethez kapcsoltan megépített garázs tartozik. A két lakást a garázsok választják el egymástól, ezáltal biztosítva a maximális nyugalmat és intimitást a leendő tulajdonosok számára.

A ház tégla falazattal és 10 cm hőszigeteléssel készül, a válaszfalak szintén téglából épülnek. A tetőfedés Leier cseréppel történik. A fűtésről gázkazán és hőszivattyú gondoskodik, a nyári komfortot pedig beépített klíma biztosítja. A nyílászárók műanyagból készülnek, redőnnyel felszerelve. A burkolatok szabadon választhatók, hidegburkolat esetén 4.000 Ft/m², melegburkolat esetén pedig 3.000 Ft/m² értékhatárig. Természetesen ha magasabb árú burkolatokat választ az új tulajdonos , értékegyeztetéssel megoldható.

A lakás elosztása praktikus és élhető: három hálószoba (11,55 m², 12,07 m² és 11,02 m²), tágas 24,85 m²-es nappali, 6,75 m²-es konyha, 8,25 m²-es étkező, 7,56 m²-es fürdőszoba, külön WC (1,54 m²) és egy előtér (1,65 m²) alkotják a belső teret.

Az ingatlan modern, energiatakarékos kialakítású, ideális választás családok számára, akik csendes, de jól megközelíthető környezetben keresnek új otthont. A lakás kulcsrakész állapotban kerül átadásra 2026 szeptemberében, a burkolatok és belső részletek pedig az új tulajdonos ízlésére szabhatók.

Irodánk teljes körű segítséget tud nyújtani hitelekhez és az összes államilag finanszírozott családi támogatásokhoz!

Ha felkeltette érdeklődését, hívjon bátran és szívesen megmutatom!

Megtekintése kizárólag előre egyeztetett időpontban lehetséges!

Amennyiben a CasaNetWork – Cegléd kínálatában szereplő, 174602160 azonosítószámú új építésű lakás vagy bármely más ingatlan felkeltette érdeklődését, forduljon hozzánk bizalommal a megadott elérhetőségeken!

Felhívjuk figyelmét, hogy a hirdetésben szereplő információk megbízónktól származnak, ezért azok pontosságáért felelősséget nem tudunk vállalni.

Ügyfeleink számára díjmentes, bankfüggetlen hitelügyintézést biztosítunk.

CasaNetWork – Ingatlanban otthon vagyunk.

Családi ház részletei

Ár: 78 000 000 Ft
Méret: 88 négyzetméter
Azonosító: 11576834
Irodai azonosító: 174602160
Telek: 450 négyzetméter
Ingatlan állapota: Kitűnő
Jelleg: ikerház
Építőanyag: Tégla
Fűtés jellege: Cirkó
Komfort fokozat: Összkomfort
Bútorozott: Nem bútorozott
Egész szobák: 4

Így keressen családi házat négy egyszerű lépésben. Csupán 2 perc, kötelezettségek nélkül!

Szűkítse a családi házak
listáját
Válassza ki a megfelelő
családi házat
Írjon a hirdetőnek
Várjon a visszahívásra