Eladó családi ház Tura 87 000 000 Ft

Leírás

TÖBB CÉLÚ INGATLAN, ÓRIÁS MÉRETEKKEL!

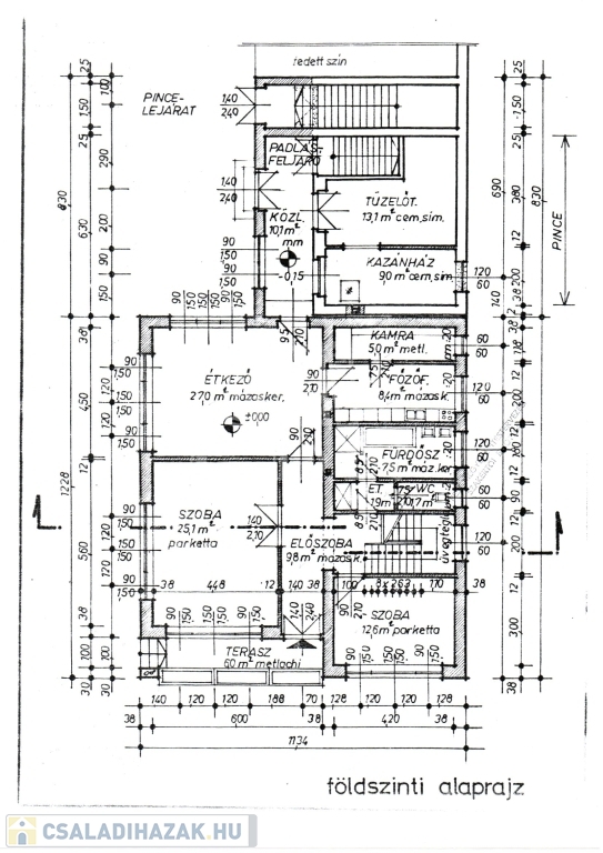
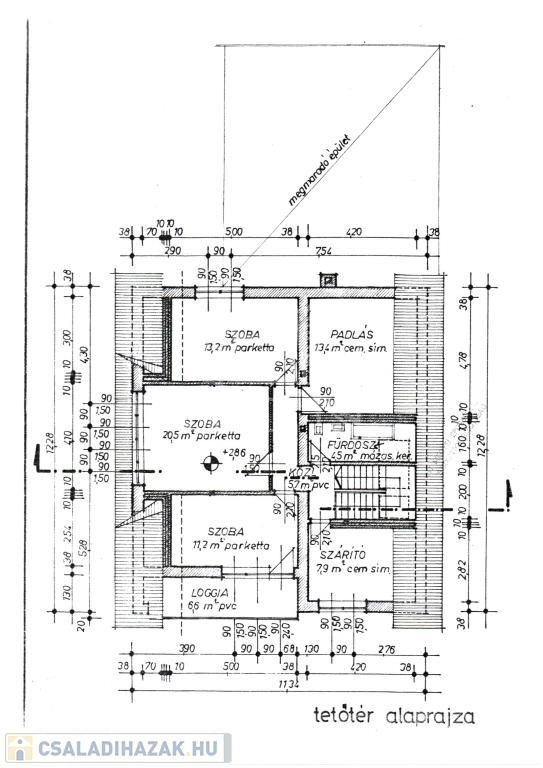
Megvételre kínálok Tura központjában, 1926 nm-es telken, délnyugati fekvésű, tégla falazatú, nettó 154,1 nm, bruttó 442 nm, 7 szobás, kertkapcsolatos, több generációs, hatalmas családi házat, melyet szinte bármilyen célra hasznosítani lehet. A lakható felületet 310 nm-re lehet bővíteni, az egyszintes épület alatt pedig egy remek boros pince húzódik.

Az házat a hatalmas terek, valamint rengeteg lehetőség jellemzi. Alkalmas szociális célokra (óvoda, bölcsőde, idősek otthona, stb.), de kiváló lehetőség a hatalmas házak kedvelőinek is.

Az ingatlan 1990-ben nyerte el jelen kinézetét. Kiváló minőségű, fa termó nyílászárók, 3 fázisú elektromos hálózat, többszörös víz elleni szigetelés, valamint tömeg kazán került beépítésre.

Az udvarról 288 nm melléképület érhető el, valamint az óriási kert közelíthető meg. A melléképületek közepes állapotúak és szintén rengeteg lehetőséget rejtenek. A kert dél-délnyugati fekvésének köszönhetően napelemek telepítésére kiválóan alkalmas.

A szomszédok barátságosak, kedvesek.

Infrastruktúrája kiváló, 1 perc sétára óvoda, iskola, gyógyszertár és orvosi rendelők, polgármesteri hivatal, boltok, 2 perce sétára pedig buszmegálló található.

Hatvan-Gödöllő-Budapest városok közelsége miatt, kiváló adottságokkal rendelkezik munkahelyek tekintetében.


INGYENES hitel tanácsadás! CSOK Ügy intézés!
BANKFÜGGETLEN hitelcentrumunk minden elérhető bank és hitelintézet ajánlatát versenyezteti az Ön kedvéért, ráadásul DÍJMENTESEN.
Önnek nincs más dolga, mint elbeszélgetni munkatársunkkal, aki a hallott információk alapján versenyre hívja a bankokat, hogy Ön hosszú távon is a legjobb konstrukciót kaphassa. A legjobb ajánlatokból végül Ön választhatja ki a nyertest.
Munkatársaink sokéves szakmai tapasztalattal várják Önt, előre egyeztetve akár a normál munkaidő után is.

Amennyiben hirdetésem felkeltette érdeklődését, várom hívását, akár hétvégén is! S.S.

Családi ház részletei

Ár: 87 000 000 Ft
Méret: 154 négyzetméter
Azonosító: 11309035
Irodai azonosító: 353675
Cím: Központi helyen
Telek: 1926 négyzetméter
Ingatlan állapota: Átlagos
Jelleg: családi ház
Építőanyag: Tégla
Fűtés jellege: Egyéb
Komfort fokozat: Dupla komfort
Kor: 21-50 éves
Szintek száma: 3 szint
Egész szobák: 7

Egyéb jellemzők

  • Csatorna
  • Garázs
  • Pince
  • Terasz

Térkép


Így keressen családi házat négy egyszerű lépésben. Csupán 2 perc, kötelezettségek nélkül!

Szűkítse a családi házak
listáját
Válassza ki a megfelelő
családi házat
Írjon a hirdetőnek
Várjon a visszahívásra