Eladó családi ház Tura 86 200 000 Ft

Leírás

Legyen részese Tura új lakóparkjának kiépülésében!

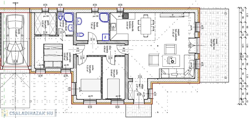
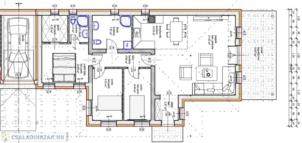
Tura új lakóparkjában 2026 év elején kezdődő építkezés, bruttó 122m2-es ikerház, a hozzá tartozó 450nm-es telkével vált ELADÓVÁ!
A 16nm-es fedett terasz, illetve a 12nm-es garázs mellett a lakóingatlan nettó 95nm-es nagysággal rendelkezik.
Nagyszerű kivitelezés verhetetlen áron!
A képek között 2-es lakás jelöléssel találja!
Napfényes, tágas terek, jó elrendezés és alakíthatóság jellemzi az ingatlant!Igazi álomotthon vált belőle az profi, stílusos tervek mellett mesteri kivitelezéssel!
Az építkezés az első fázisban van (tervezés) így előreláthatólag 2026. szeptember hónapjára költözhetővé válik!
Az ikerházak közös falai hangszigetelővel lettek ellátva, a födém belső falakkal míg a kert kerítéssel lesznek ellátva biztosítva az elszeparált életteret.
A két lakást egy tároló és egy garázs kapcsolja össze így a szomszédot egyáltalán nem lehet hallani.
A tervezés során nagy hangsúlyt fektettek a hatalmas mennyiségű fény beáramlásába ezért rengeteg nagyméretű nyílászárót építettek be.
Gáz kombicirkó biztosítja a melegvizet és a padlófűtést.
Nívós fal és padlóburkolatokat helyeztek el a fürdőszobáktól kezdve(2 darab is található a lakásban így duplakomfortos) a napaliig.
A telek jobb oldalán a bejutást biztosító szolgalmi út lesz kialakítva az első és a második lakás részére.
Jelen ingatlan az utcafronttól számítva a második lakás.
Az utca túloldalán a helyi önkormányzat által szabadidős edzőpályák és gyermekeknek játszótér kerül átadásra a közeljövőben.

Az ikerház és a telek főbb adatai:
-bruttó 122nm-es ikerház( 3 lakószobával,2 fürdőszobával(duplakomfortos), tárolóval, közlekedővel és amerikai konyhás nappali(16nm-es fedett terasz, 12nm-es garázs és 95nm-es lakóingatlan
-450nm-es telek jár hozzá
-30-as Porotherm téglából épül
-10cm külső hőszigetelés
-20cm födémszigetelés
-műanyag nyílászárók 3 rétegű/ 7 légkamrás thermo kivitelben
-2026-ös év elején kezdődik az építkezés
-nívós padló és falburkolatok
-gáz kombicirkó (padlófűtés)
-igényes tervezés és természetesen precíz kivitelezés!

Közlekedése:
-buszmegálló 8 perc alatt elérhető autóval
-Budapest 35 perc alatt, viszonylag gyorsan érhető el autóval.

Legyen az lakhatás vagy csak befektetési lehetőség, bármit keres, itt megtalálhatja számításait.
Jöjjön el, nézze meg és lássa meg a benne rejlő potenciált!
Csendes, madárcsicsergős környék rendkívül barátságos szomszédokkal.

Nagyszerű választás, szuper ár-érték arányban, igazi álomotthon.
Minden nap elérhető vagyok, hívjon, egyeztessünk időpontot az ingatlan megtekintésére!

Örömmel segítünk Önnek leendő OTTHONUK vagy BEFEKTETÉSÜK megtalálásában, miközben jelenlegi ingatlanuk értékesítését is zökkenőmentesen lebonyolítjuk Magyarország egész területén!
Keressen minket bizalommal!
(További képekért és információkért kérem hívjon!)

Családi ház részletei

Ár: 86 200 000 Ft
Méret: 122 négyzetméter
Azonosító: 11598216
Irodai azonosító: 105258
Telek: 450 négyzetméter
Ingatlan állapota: Kitűnő
Jelleg: ikerház
Építőanyag: Tégla
Fűtés jellege: Cirkó
Egész szobák: 4
Nappalik: 1

Egyéb jellemzők

  • Beépíthető tetőtér
  • Csatorna
  • Garázs
  • Melléképület
  • Pince
  • Terasz

Így keressen családi házat négy egyszerű lépésben. Csupán 2 perc, kötelezettségek nélkül!

Szűkítse a családi házak
listáját
Válassza ki a megfelelő
családi házat
Írjon a hirdetőnek
Várjon a visszahívásra