Eladó családi ház Tura 55 000 000 Ft

Leírás

CasaNetWork Gödöllő Ingatlaniroda kínálatában eladó azonnal költözhető családi ház Turán – tágas terek, modern műszaki háttér, otthonos hangulat

Eladó Turán, a Vasútújtelep csendes, barátságos utcájában egy belülről felújított, 90 m²-es, világos és modern családi ház, nagy 955 m²-es telekkel. A ház ideális választás lehet mindazok számára, akik szeretik a nyugodt vidéki életet, de fontos számukra Budapest gyors megközelíthetősége.

A HÁZ FŐBB ELŐNYEI – Kényelmes, modern és megbízható

A felújítás a legfontosabb műszaki elemekre is kiterjedt, így az ingatlan hosszú távon biztonságos és gazdaságosan fenntartható.

Vadonatúj műszaki tartalom:

  • Teljesen új víz- és csatornarendszer, új villanybojler
  • Új, bővített elektromos hálózat, modern Schneider kapcsolószekrénnyel
  • 3 fázis (32A) és éjszakai áram
  • Minden kábelezés új, biztonságos, jól átlátható rendszerben
  • 3 db Gree Comfort X hűtő-fűtő klíma – alacsony költségű H-tarifa igényelhető
  • Teljes tetőcsere, új héjalással
  • 3 rétegű üvegezésű műanyag nyílászárók
  • Új aljzatbeton betonhálóval, vízszigeteléssel, és modern burkolatokkal
  • Álmennyezet új szerkezettel, kiváló hő- és hangszigeteléssel

Átgondolt, családi életre tervezett terek.

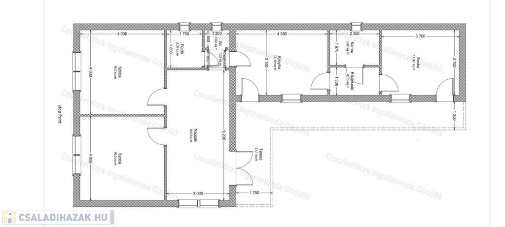
Az ingatlan praktikus és élhető elrendezést kínál, amely a mellékelt alaprajzon is jól látható:

  • 3 szoba (két utcafronti 16 m²-es, és egy 11,5 m²-es ~ felújítandó)
  • Tágas, 18,6 m²-es nappali
  • Külön konyha + kamra
  • Külön fürdőszoba és WC
  • Két közlekedő, jól elkülönített funkcionális zónákkal
  • Hangulatos, 21,1 m²-es terasz – tökéletes pihenésre
  • Száraz pince, amely az egyik melléképületből érhető el

A belső tér világos, tágas, igényesen felújított – a nappaliban modern lámpatestek és meleg hatású burkolat teremtenek otthonos hangulatot.

A nagy méretű 955 m2-es telek számos lehetőséget kínál:

  • kertészkedés
  • állattartás
  • játszótér vagy medence
  • további melléképületek kialakítása 
  • akár vállalkozásra is alkalmas beton alap a hátsó kertben

A telek csendes, a szomszédok rendezettek, a környék békés és családias.

Kiváló elhelyezkedés – minden elérhető, mégis nyugodt

  • Budapest: 50 km, autóval 40–45 perc
  • M3 autópálya könnyen elérhető
  • Vasútállomás és buszmegálló: 5 perc séta (kb. 800 m)
  • A településen: iskola, óvoda, gyógyszertár, orvosi rendelő, Penny, Spar

A jó közlekedésnek köszönhetően akár ingázóknak is ideális választás. Ez az otthon készen áll új lakóira – modern, praktikus és szerethető.

Ingyenes hitel tanácsadással, ügyvédi kapcsolattal és rugalmas időbeosztással állunk kedves ügyfeleink rendelkezésére! CASANETWORK - Ingatlanban otthon vagyunk

Családi ház részletei

Ár: 55 000 000 Ft
Méret: 90 négyzetméter
Azonosító: 11584279
Irodai azonosító: 166401932
Telek: 955 négyzetméter
Ingatlan állapota:
Jelleg: családi ház
Építőanyag: Vályog
Fűtés jellege: Villany
Fűtés módja: Villany
Komfort fokozat: Összkomfort
Bútorozott: Nem bútorozott
Egész szobák: 3

Így keressen családi házat négy egyszerű lépésben. Csupán 2 perc, kötelezettségek nélkül!

Szűkítse a családi házak
listáját
Válassza ki a megfelelő
családi házat
Írjon a hirdetőnek
Várjon a visszahívásra