Eladó családi ház Törtel 55 900 000 Ft

Leírás

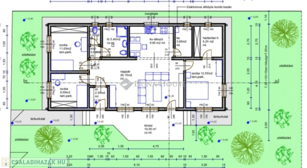
Ceglédtől 15 km távolságra Törtelen kínálom megvételre ezt az új építésű 91 családi házat. Az ingatlan műszaki leírása : - 50 cm beton alapzat+ 15 cm aljzat szigeteléssel ellátva-Fa födém 20 cm kőzetgyapot szigeteléssel - Bramac tető cserépfedés-Impregnált fa szerkezet, kőzetgyapot belső szigeteléssel+ 10 cm vastag porisztirol homlokzati szigeteléssel ellátva, nemes vakolat záró réteggel.-3 rétegű műanyag nyílászárók-elektromos cirkó fűtés padlón keresztül történő hőleadássalSzaniterek , Beltéri ajtók, lámpatestek a vételárbanHideg - meleg burkolatok 6000/nm áron választhatóak. Az épület teljes műszaki leírását megtekintéskor személyesen prezentálom. Várható átadás : 2026.01. hóAmennyiben hirdetésem felkeltette érdeklődését keressen bizalommal.

55900000 Ft

Családi ház részletei

Ár: 55 900 000 Ft
Méret: 108 négyzetméter
Azonosító: 11577044
Irodai azonosító: HZ096250-5075861
Cím: Törteli 108 nm-es ház eladó
Telek: 652 négyzetméter
Ingatlan állapota: Épülő
Jelleg: családi ház
Építőanyag: Könnyűszerkezetes
Fűtés jellege: Villany
Fűtés módja: Villany
Kor: Új építésű
Szintek száma: Földszintes
Egész szobák: 4

Térkép


Így keressen családi házat négy egyszerű lépésben. Csupán 2 perc, kötelezettségek nélkül!

Szűkítse a családi házak
listáját
Válassza ki a megfelelő
családi házat
Írjon a hirdetőnek
Várjon a visszahívásra