Eladó családi ház Töltéstava 98 000 000 Ft

Leírás


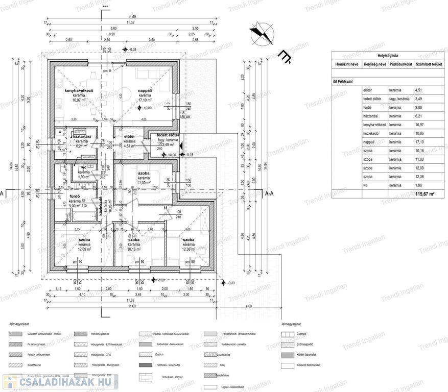
Töltéstava csendes utcájában, a Pannonhalmi Főapátságra néző 112,18 nm-es, nappali + 4 szobás családi ház 1049 nm-es telken eladó.

A remek elosztású házban amerikai konyhás nappali, 4 szoba, tágas fürdőszoba, háztartási helyiség, külön WC, előtér, közlekedő található. 

A ház 30-as falazóelemből, 15 cm-es homlokzati szigeteléssel, Terrán Synus betoncseréppel fedve, 3 rétegű műanyag, hőszigetelt üvegezésű nyílászárókkal kerül kivitelezésre. Az ingatlan fűtését turbó-kombi gázkazán biztosítja, minden helyiségben padlófűtéssel. A házba hűtő-fűtő klíma kerül felszerelésre. Felár ellenében hőszivattyús fűtés, kerti csap, riasztó előkészítés, klíma- és redőnyelőkészítés, térkövezés stb. kérhető. A ház belső elrendezése a készültségi fokhoz mérten még változtatható.

Fűtéskész átadás várható ideje: 2026 tavasz

Az ingatlan fűtéskész ára: 98.000.000 Ft. 

Kulcsrakész befejezés kérhető. 

Az ár tartalmazza a telek árát is.

Bővebb információkért forduljon hozzám bizalommal.

Hétköznap és hétvégén is várom hívását!

Díjmentes, bankfüggetlen hitelügyintézéssel állunk rendelkezésére.

Családi ház részletei

Ár: 98 000 000 Ft
Méret: 112 négyzetméter
Azonosító: 11537465
Irodai azonosító: 196400732
Telek: 1049 négyzetméter
Ingatlan állapota: Kitűnő
Jelleg: családi ház
Építőanyag: Tégla
Komfort fokozat: Összkomfort
Kor: Új építésű
Egész szobák: 5

Így keressen családi házat négy egyszerű lépésben. Csupán 2 perc, kötelezettségek nélkül!

Szűkítse a családi házak
listáját
Válassza ki a megfelelő
családi házat
Írjon a hirdetőnek
Várjon a visszahívásra