Eladó családi ház Töltéstava 82 900 000 Ft

Leírás

Nappali + 3 hálós önálló családi ház nagy telekkel, fedett terasszal Töltéstaván eladó.
Foglald le most, szerződj szeptemberben! Ne várd meg a rohamot!

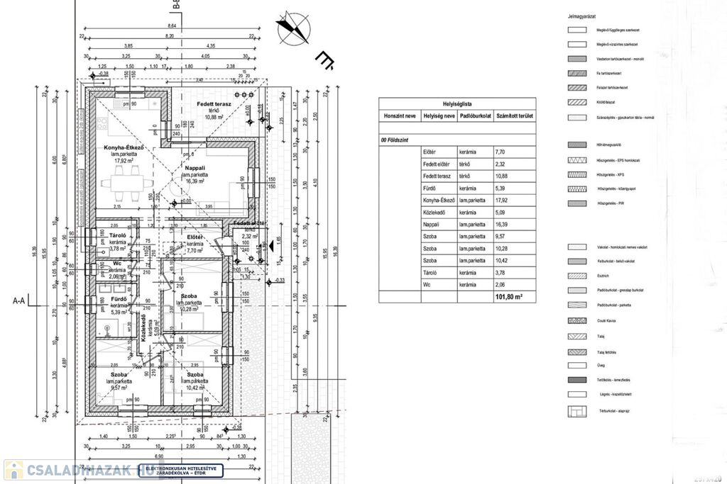
Győrtől, Auditól és az Ipari Parktól 10 perc távolságra Töltéstava csendes, aszfaltos új utcájában kínálok Önnek egy 101,8 m2-es, önálló családi házat.

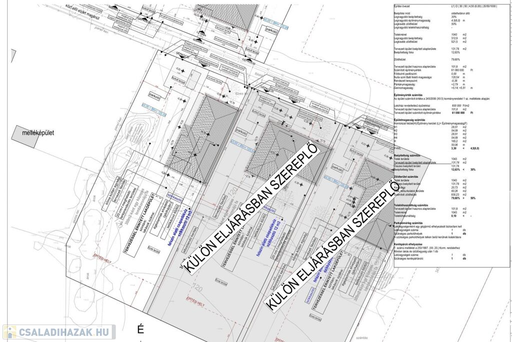
A házhoz tartozó telek 1043 m2.

A ház helyiségei: amerikai konyhás nappali, 3 hálószoba, fürdő WC-vel, külön WC, kamra, tároló, háztartási helyiség, előszoba, közlekedő, fedett előtér, 10,88 m2 FEDETT TERASZ.

Az ár emelt szintű FŰTÉSKÉSZ állapotra vonatkozik, tartalmazza a telekhányadot, (ami 10 M Ft).

Az ingatlant építéssel tudja megvásárolni, így NINCS ILLETÉK!
Várható átadás 2026. tavasz

Minőségi anyagok, megbízható, számos referenciával rendelkező kivitelező!

Műszaki tartalom:
- főfalak: 30-as Bakonytherm N+F
- válaszfalak: 10-es Bakonytherm 10/50 N+F
- tetőfedés Terran Synus betoncseréppel
- 3 rétegű üveggel ellátott fehér műanyag ablakok
- 5 ponton záródó biztonsági bejárati ajtó
- Hőszigetelés: homlokzaton 20 cm
- padló 10 cm lépésálló szigetelés
- födémen 30 cm kőzetgyapot szigetelés
- fűtés és meleg víz 24 kW-os kondenzációs gázkazánnal, hőleadás padlófűtéssel
- 1 db KLÍMA
- tető feljáró létra

Egyéni elképzelések készültségi foktól függően még figyelembe vehetőek. A válaszfalak, helyiségek módosíthatóak.
Kerti csap, hőszivattyú, riasztó-előkészítés, redőny előkészítés, térkövezés megegyezés alapján rendelhető.

Kulcsrakész befejezés kérhető! KULCSRAKÉSZ ÁR: 91.700.000,- Ft, mely tartalmazza az alábbiakat:
- hideg - és meleg burkolatok
- csapok és szaniterek
- a szobákban laminált parketta, a többi helyiségben járólap
- modern gondozás mentes beltéri ajtók
- villanykapcsolók és konnektorok
- glettelt, fehérre festett falak

Kamattámogatott hitelek, CSOK, babaváró is igénybe vehető.
Hitelügyintézés, tanácsadás ingyenesen, profi szakemberrel.

Hívjon mielőbb, ritka lehetőség!20/2777237

Családi ház részletei

Ár: 82 900 000 Ft
Méret: 102 négyzetméter
Azonosító: 11560464
Irodai azonosító: 121577
Cím: Töltéstava
Telek: 1043 négyzetméter
Ingatlan állapota: Átlagos
Jelleg: családi ház
Építőanyag: Kérdezzen rá a hirdetőtől »
Fűtés jellege: Cirkó
Kor: Új építésű
Egész szobák: 4

Egyéb jellemzők

  • Terasz

Így keressen családi házat négy egyszerű lépésben. Csupán 2 perc, kötelezettségek nélkül!

Szűkítse a családi házak
listáját
Válassza ki a megfelelő
családi házat
Írjon a hirdetőnek
Várjon a visszahívásra