Eladó családi ház Töltéstava 79 900 000 Ft

Leírás


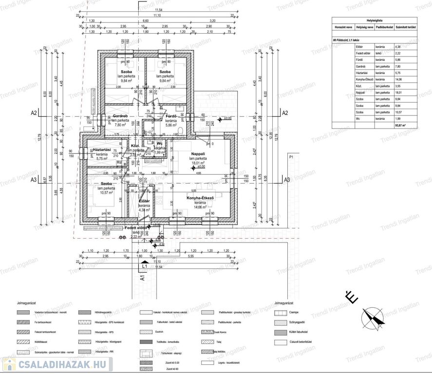
Töltétaván nappali + 3 szobás ház 750 nm-es telken eladó Töltéstava csendes utcájában, a Pannonhalmi Főapátságra néző 93,87 nm-es, nappali + 3 szobás ikerház 750 nm-es telekrészen eladó. A két ház egymás mellett, 1500 nm-es telken épül, nincs közös fal.

A remek elosztású házban amerikai konyhás nappali, 3 szoba, fürdőszoba, háztartási helyiség, külön WC, előtér, közlekedő található. 

A ház 30-as falazóelemből, 15 cm-es homlokzati szigeteléssel, 3 rétegű műanyag, hőszigetelt üvegezésű nyílászárókkal kerül kivitelezésre. Az ingatlan fűtését kondenzációs kazán biztosítja, minden helyiségben padlófűtéssel. A nappaliba hűtő-fűtő klíma kerül felszerelésre. Felár ellenében hőszivattyús fűtés, kerti csap, riasztó előkészítés, klíma- és redőnyelőkészítés, térkövezés stb. kérhető. A ház belső elrendezése a készültségi fokhoz mérten még változtatható.

Fűtéskész átadás várható ideje: 2026 ősz

Az ingatlan fűtéskész ára: 79.900.000 Ft. 

Kulcsrakész befejezés kérhető.  Kulcsrakész ár: 87.900.000 Ft.

Az ár tartalmazza a telek árát is.

Bővebb információkért forduljon hozzám bizalommal.

Hétköznap és hétvégén is várom hívását!

Díjmentes, bankfüggetlen hitelügyintézéssel állunk rendelkezésére.

Családi ház részletei

Ár: 79 900 000 Ft
Méret: 94 négyzetméter
Azonosító: 11581074
Irodai azonosító: 196400819
Telek: 750 négyzetméter
Ingatlan állapota: Kitűnő
Jelleg: ikerház
Építőanyag: Tégla
Komfort fokozat: Összkomfort
Kor: Új építésű
Egész szobák: 4

Így keressen családi házat négy egyszerű lépésben. Csupán 2 perc, kötelezettségek nélkül!

Szűkítse a családi házak
listáját
Válassza ki a megfelelő
családi házat
Írjon a hirdetőnek
Várjon a visszahívásra