Eladó családi ház Tiszasziget 84 800 000 Ft

Leírás

ÚJ ÉPÍTÉSŰ,ÖNÁLLÓ TELKEN CSALÁDI HÁZ ELADÓ TISZASZIGETEN – ZÖLD KÖRNYEZET, PRÉMIUM KIVITELEZÉS!

Tiszaszigeten kínálunk eladásra egy exkluzív kivitelezésű, új építésű családi házat a SZIGET LAKÓPARKBAN.

A beruházást nagy szakmai tapasztalattal és kiváló referenciákkal rendelkező kivitelező valósítja meg, kiemelt figyelemmel az energiatakarékosságra, esztétikumra és a minőségi anyaghasználatra.

Főbb jellemzők:

Telek mérete: 680 m2

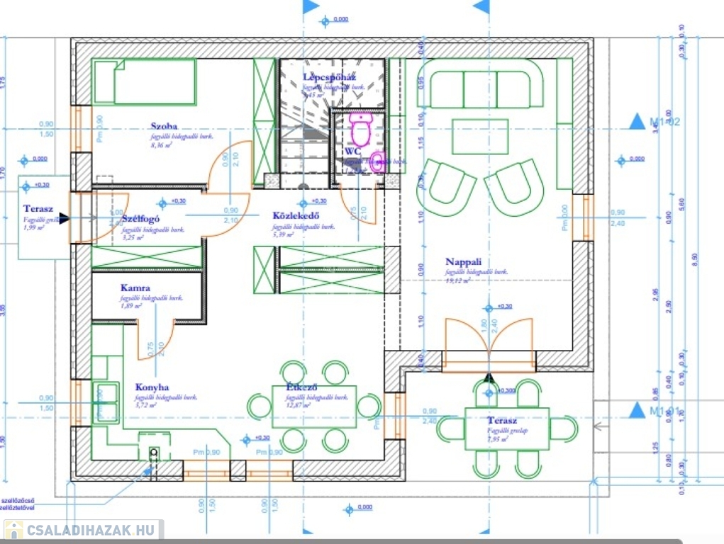
Nettó alapterület: 92,11 m² + 8 m² terasz

Amerikai konyhás nappali + étkező, 4 hálószoba, fürdőszoba, külön WC, kamra, erkély

Modern, levegő-víz hőszivattyús fűtés, padlófűtéssel

Energiahatékony, 3 rétegű nyílászárók

Egyedi választható burkolatok, szaniterek, beltéri ajtók – teljes mértékben az Ön ízléséhez igazítva!

Hő- és hangszigetelt épület, magas műszaki tartalommal

Zöldövezeti elhelyezkedés, családbarát környezet

Műszaki tartalom kulcsrakész kivitel esetén:

Teljes belső festés, burkolás

Laminált padló, hideg burkolatok egyedi választás szerint

Alföldi porcelán szaniterek, középkategóriás csaptelepek

Programozható termosztát, szabályozható hőmérséklet

Elektromos és vízszerelvények beépítve

Igény esetén redőny és szúnyogháló is rendelhető

Környezet és elhelyezkedés

A SZIGET LAKÓPARK Tiszasziget új, kedvelt részén helyezkedik el, csendes, zöld környezetben, ideális választás családoknak és nyugalmat keresőknek.

Szeged autóval 10-15 perc alatt elérhető, a település kiváló infrastruktúrával rendelkezik.

Amitől ez az ingatlan különleges:

Modern technológia, alacsony rezsi
Igényes, egyedi belső kialakítás
Megbízható, tapasztalt kivitelező
Természetközeli, családbarát környezet

Érdeklődj most és segítünk kiválasztani az Ön álomotthonát!

Családi ház részletei

Ár: 84 800 000 Ft
Méret: 92 négyzetméter
Azonosító: 11605735
Irodai azonosító: 393620
Cím: Kossuth utca
Telek: 680 négyzetméter
Ingatlan állapota: Kitűnő
Jelleg: családi ház
Építőanyag: Tégla
Fűtés jellege: Geotermikus
Fűtés módja: Hőszivattyú
Komfort fokozat: Összkomfort
Kor: Új építésű
Szintek száma: 1 szint
Egész szobák: 5

Egyéb jellemzők

  • Csatorna
  • Garázs
  • Pince
  • Terasz

Térkép


Így keressen családi házat négy egyszerű lépésben. Csupán 2 perc, kötelezettségek nélkül!

Szűkítse a családi házak
listáját
Válassza ki a megfelelő
családi házat
Írjon a hirdetőnek
Várjon a visszahívásra