Eladó családi ház Tinnye 120 000 000 Ft

Leírás

Legyen részese Tinnye Királyvölgyi lakóparkjának kiépülésében!

Tinnyén, a Királyvölgy lakóparkban 2026 év elején áatdásra kerülő, bruttó145m2-es ikerház, a hozzá tartozó 1050nm-es telkével vált ELADÓVÁ!
A 18nm-es garázs, illetve a 27nm-es, részben fedett terasz mellett a lakóingatlan nettó 100nm-es nagysággal rendelkezik.
Nagyszerű kivitelezés verhetetlen áron!
Napfényes, tágas terek, jó elrendezés és alakíthatóság jellemzi az ingatlant!Igazi álomotthon vált belőle az profi, stílusos tervek mellett mesteri kivitelezéssel!
Az építkezés az utolsó fázisban van így előreláthatólag 2026. március hónapra költözhetővé válik!
Az ikerházak közös falai hangszigetelővel lettek ellátva, a födém belső falakkal míg a kert kerítéssel lesznek ellátva biztosítva az elszeparált életteret.
A tervezés során nagy hangsúlyt fektettek a hatalmas mennyiségű fény beáramlásába ezért rengeteg nagyméretű nyílászárót építettek be.
Hőszívattyús rendszer biztosítja a melegvizet és a padlófűtést.
Nívós fal és padlóburkolatokat helyeztek el a fürdőszobáktól kezdve(2 darab is található a lakásban így duplakomfortos) a napaliig.
A 18nm-es garázsban vízvételi lehetőséget is kialakítottak megkönnyítve a szerelések utáni kézmosást, esetleg a kerti növényzet locsolását.

Az ikerház és a telek főbb adatai:
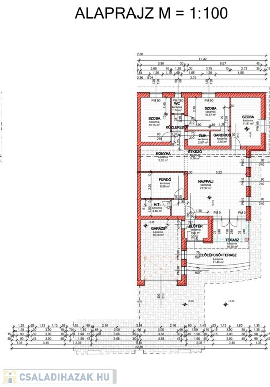
-bruttó 145nm-es ikerház( 3 lakószobával,2 fürdőszobával(duplakomfortos), külön wc-vel, háztartási helyiséggel, közlekedővel és amerikai konyhás nappali(18nm-es garázs, 27nm-es terasz és 100nm-es lakóingatlan
-1050nm-es telek jár hozzá
-30-as Porotherm téglából épül
-20cm külső hőszigetelés
-20cm födémszigetelés
-műanyag nyílászárók 3 rétegű/ 7 légkamrás thermo kivitelben
-2026-ös év márciusában lehetséges a beköltözés
-nívós padló és falburkolatok
-belső hőszígeteléssel is ellatva
-hőszívattyús rendszer(padlófűtés)
-igényes tervezés és természetesen precíz kivitelezés!

Közlekedése:
-vonatállomás 8 perc alatt elérhető autóval
-Budapest 35 perc alatt, viszonylag gyorsan érhető el autóval.

Legyen az lakhatás vagy csak befektetési lehetőség, bármit keres, itt megtalálhatja számításait.
Jöjjön el, nézze meg és lássa meg a benne rejlő potenciált!
Csendes, madárcsicsergős környék rendkívül barátságos szomszédokkal.

Nagyszerű választás, szuper ár-érték arányban, igazi álomotthon.
Minden nap elérhető vagyok, hívjon, egyeztessünk időpontot az ingatlan megtekintésére!

Örömmel segítünk Önnek leendő OTTHONUK vagy BEFEKTETÉSÜK megtalálásában, miközben jelenlegi ingatlanuk értékesítését is zökkenőmentesen lebonyolítjuk Magyarország egész területén!
Keressen minket bizalommal!
(További képekért és információkért kérem hívjon!)

Családi ház részletei

Ár: 120 000 000 Ft
Méret: 100 négyzetméter
Azonosító: 11590079
Irodai azonosító: 923107
Telek: 1050 négyzetméter
Ingatlan állapota: Kitűnő
Jelleg: ikerház
Építőanyag: Tégla
Fűtés jellege: Hőszivattyú
Egész szobák: 4
Nappalik: 1

Egyéb jellemzők

  • Beépíthető tetőtér
  • Csatorna
  • Garázs
  • Melléképület
  • Pince
  • Terasz

Így keressen családi házat négy egyszerű lépésben. Csupán 2 perc, kötelezettségek nélkül!

Szűkítse a családi házak
listáját
Válassza ki a megfelelő
családi házat
Írjon a hirdetőnek
Várjon a visszahívásra