Eladó családi ház Teskánd 77 000 000 Ft

Leírás

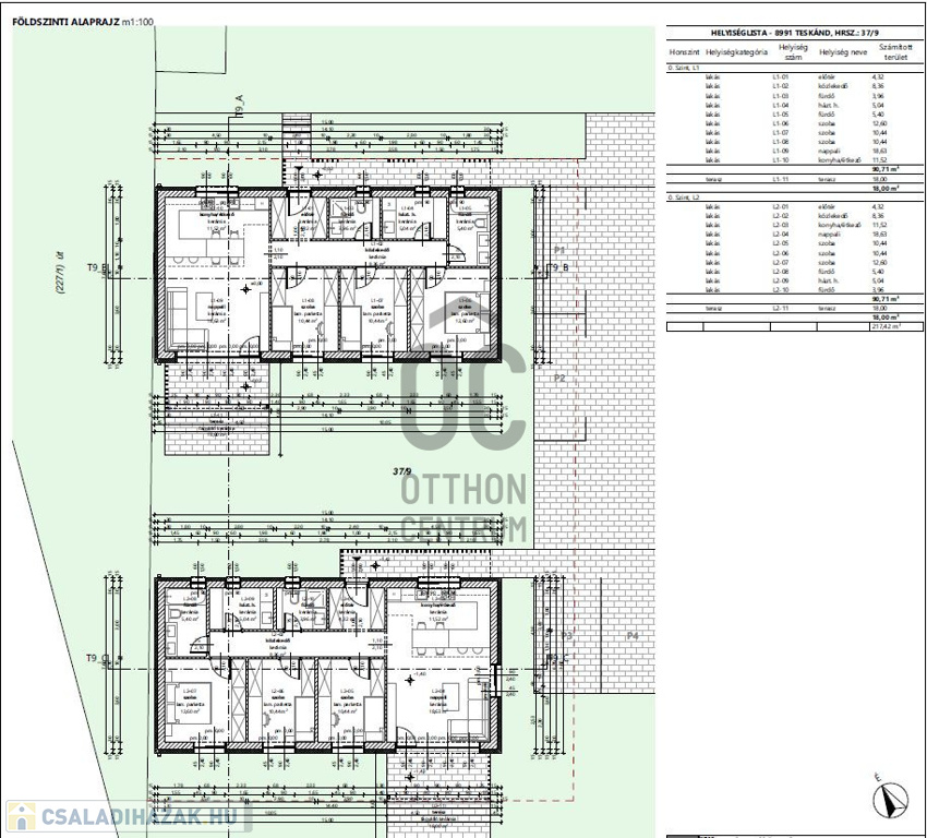
Teskándon, Zalaegerszegtől 5 km-re új építésű CSALÁDI HÁZ eladó.

Nem minden nap születik olyan otthon, ahol a reggeli napfény a konyhapultra rajzolja a csendet, ahol a nappali ablakán túl nem csak egy kert, hanem egy új élet kerete rajzolódik ki.
Ez az otthon nem akar többnek látszani, mint ami – de pont ezért lesz több. Egy 90 négyzetméteres, egyszintes ház, ahol minden négyzetméternek célja van: világos terek, élhető elrendezés, funkció és esztétika együtt lélegzik.

Jellemzők:

- 400 négyzetméteres telek. Nem túl sok, de épp elég – hogy ne kertészkedéssel teljen a hétvége, hanem kávézással a teraszon.
- Földszintes 90 nm-es, 4 szobás családi ház
- Hőszivattyús hűtés fűtés rendszer
- 18 nm-es terasz
- Saját gépkocsi beálló és udvar
- Világos tágas terek
- Leiertherm 30 N+F tégla falazat, 15cm homlokzati hőszigetelés
- A lakópark olyan lesz, mint egy jó szomszédság: csendes, rendezett, barátságos. Ahogy a filmekben. Vagy inkább: ahogy élni szeretne.

A befejezés 2026-ra várható – de az álom már most elkezdődhet. Mert néha a legjobb döntések nem hangosak. Csak egyszerűen... jó érzés rágondolni.

Teskándon épül. Önnek. Hívjon bizalommal, hogy megtekintse, és tegye meg az első lépést új otthona felé!

Családi ház részletei

Ár: 77 000 000 Ft
Méret: 90 négyzetméter
Azonosító: 11555279
Irodai azonosító: U0048412-5003195
Telek: 400 négyzetméter
Ingatlan állapota: Épülő
Jelleg: családi ház
Építőanyag: Tégla
Fűtés jellege: Villany
Fűtés módja: Hőszivattyú
Kor: Új építésű
Szintek száma: Földszintes
Egész szobák: 4

Térkép


Így keressen családi házat négy egyszerű lépésben. Csupán 2 perc, kötelezettségek nélkül!

Szűkítse a családi házak
listáját
Válassza ki a megfelelő
családi házat
Írjon a hirdetőnek
Várjon a visszahívásra