Eladó családi ház Téglás 85 500 000 Ft

Leírás

Amennyiben család számára ideális otthont keresel, akkor ez a kiváló, új építésű ingatlan tökéletes választást jelent számodra!

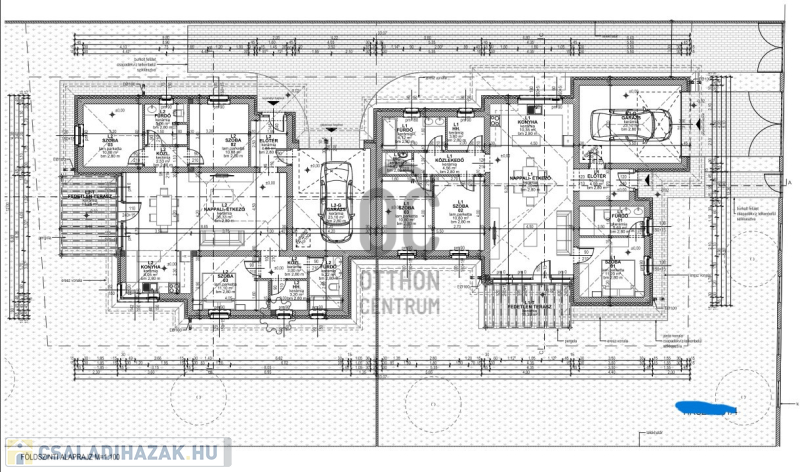
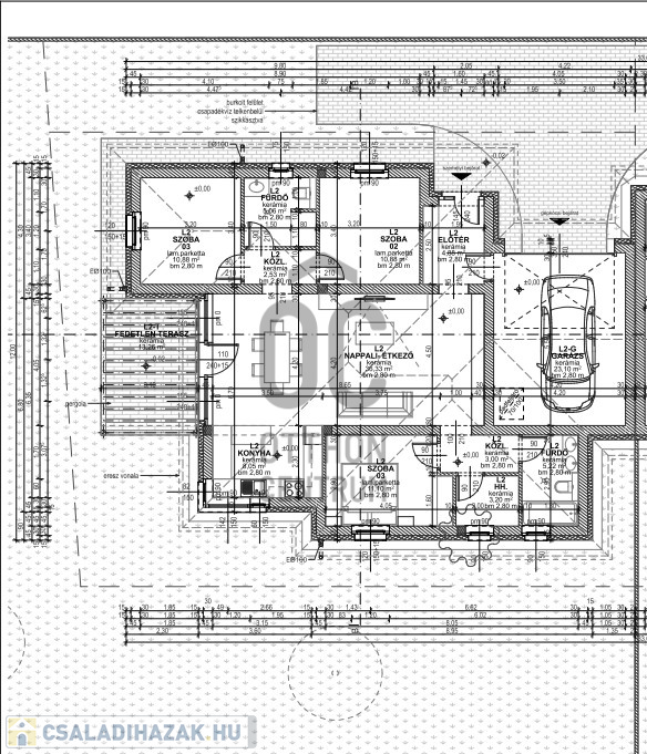
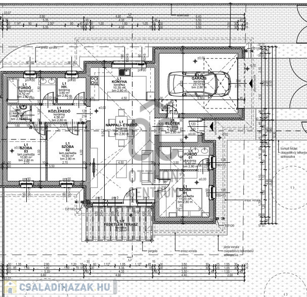
Az ikerház egy tágas, bruttó 135, nettó 100 nm-es alapterülettel rendelkezik, amely 3 hálószobát, nappali-étkezőt, konyhát, előszobát, 2 fürdőszobát, hh-et, előszobát foglal magában, így bőven van hely a család minden tagjának.
A minimalista kialakítás és az egyedi tervezés garantálja, hogy a modern életstílushoz igazodva élvezhesd az otthon kényelmét.
Telek méret 525nm.
Garázskapcsolatos az ingatlan, 26 nm alapterülettel, 1 autó kényelmes tárolására.
A terasz mérete 8 nm.

A hőszivattyús fűtési rendszer biztosítja a megfelelő hőmérsékletet az év minden szakában, így a kényelem és a modern technológia találkozása minden szempontból megvalósul.Split klíma a komfort fokozása érdekében, mely 5kw teljesítményt nyújt. Igény esetén 2 db 2,5 kw-ra váltható.
Terv dokumentáció, műszaki leírás igény szerint rendelkezésre áll! A kivitelező kompromisszumkész a tervektől való eltérésre a lehetőségein belül!
Átadás várható dátuma: 2026.március

Ez az ingatlan nem csupán egy ház, hanem egy otthon, zöldövezet közvetlen közelében!
Ha szeretnél többet megtudni erről az épülő ikerházról,bátran keresd fel az elérhetőségeimet, és válaszolok minden kérdésedre!

Hajdú-Bihar, Téglás,új építés, ház, ikerház, 3 szoba, 4 szoba, dupla komfort, zöls övezet, kiváló, eladó

Családi ház részletei

Ár: 85 500 000 Ft
Méret: 100 négyzetméter
Azonosító: 11547972
Telek: 525 négyzetméter
Ingatlan állapota: Kitűnő
Jelleg: ikerház
Építőanyag: Kérdezzen rá a hirdetőtől »
Egész szobák: 4

Egyéb jellemzők

  • Csatorna
  • Garázs
  • Kábel TV
  • Melléképület
  • Parketta
  • Pince
  • Terasz

Így keressen családi házat négy egyszerű lépésben. Csupán 2 perc, kötelezettségek nélkül!

Szűkítse a családi házak
listáját
Válassza ki a megfelelő
családi házat
Írjon a hirdetőnek
Várjon a visszahívásra