Eladó családi ház Tatabánya 75 000 000 Ft

Leírás

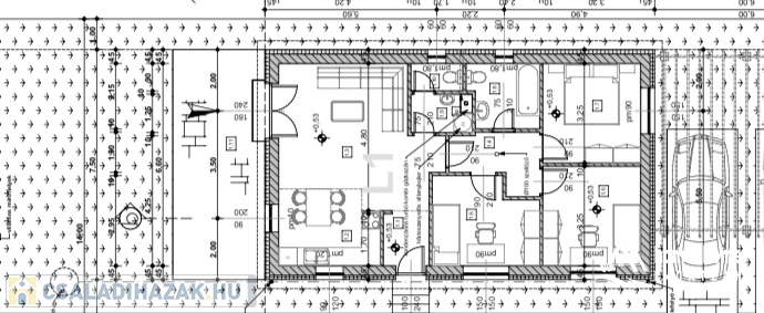
ÚJÉPÍTÉSŰ CSALÁDI HÁZAK - BÁNHIDÁN ELADÓ! (L1)

Home&home Ingatlan eladásra kínál Tatabánya-Bánhida családi házas övezetében, 4 db újépítésű, 75 nm-es, 3 szoba + nappalis családiházat.

Az ingatlan elosztása:
- nappali + konyha
- 3 szoba
- fürdő + WC helyiség
- WC helyiség
- háztartási helyiség
- terasz

Várható átadás: 2023. II.-III. negyedév.

A családi házak mindegyike különálló épületek lesznek, melyhez 50-100 nm-es kertkapcsolat tartozik, valamint a gépkocsi beálló a vételár részét képezi.

30-as Porotherm téglából épül, 15 cm-es külső szigeteléssel.

Nyílászárói 6 légkamrás, 3 rétegű műanyag ablakok.

Fűtése padlófűtés, kondenzációs kazánnal lesz megoldva.

Irodánk teljeskörű hitel ügyintézést, bankfüggetlen tanácsadást és CSOK-ügyintézést kínál ingyen, az Ön igényeihez szabva.

Amennyiben további kérdése merülne fel az ingatlannal kapcsolatban, kérem forduljon hozzám bizalommal!

Családi ház részletei

Ár: 75 000 000 Ft
Méret: 75 négyzetméter
Azonosító: 11107465
Irodai azonosító: 22-3704-6
Telek: 1357 négyzetméter
Ingatlan állapota: Átlagos
Jelleg: családi ház
Építőanyag: Kérdezzen rá a hirdetőtől »
Egész szobák: 1
Fél szobák: 3

Így keressen családi házat négy egyszerű lépésben. Csupán 2 perc, kötelezettségek nélkül!

Szűkítse a családi házak
listáját
Válassza ki a megfelelő
családi házat
Írjon a hirdetőnek
Várjon a visszahívásra