Eladó családi ház Tatabánya 59 000 000 Ft

Leírás

Az Openhouse Tatabánya Ingatlaniroda kínálatában eladó a #176772 hivatkozási számú tatabányai családi ház.

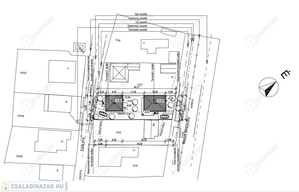
Újépítésű kertkapcsolatos lakások eladók Tatabányán, a Kossuth kertalja utcában!


Eladásra kínálunk egy új építésű projekt keretében két modern kialakítású lakóingatlant, amelyek a legkorszerűbb építészeti és gépészeti megoldásokkal készülnek. A projekt kiváló választás azoknak, akik energiatakarékos, kényelmes és értékálló otthonra vágynak.


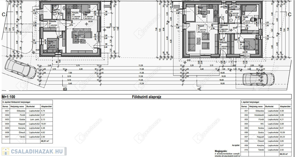
I. számú lakás – 66,53 m² | 79 millió Ft Kossuth kertalja utca felől megközelíthető




2 hálószoba




Nappali – étkező – konyha egy légtérben (több mint 27 m²)




Fürdőszoba + külön WC




Előszoba és közlekedő




Tároló helyiség (2,9 m²)




Saját kert – ideális pihenéshez vagy családi programokhoz




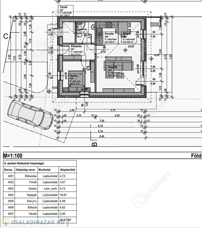
II. számú lakás – 48,91 m² | 59 millió Ft Fűzfa utca felől megközelíthető




1 hálószoba




Tágas nappali – étkező – konyha egy légtérben




Fürdőszoba




Előszoba




Tároló helyiség




Saját kert, ahol élvezheted a szabadidőt




Műszaki tartalom:




Szerkezet: monolit beton sávalap, vasalt aljzatbeton, kerámia tégla falazat, fa tetőszerkezet, kerámia cserép fedés




Hőszigetelés: EPS és kőzetgyapot hőszigetelés, gipszkarton álmennyezet




Belső felületek: vakolt falak, glettelés, diszperziós festés, nemesvakolat




Fűtés és melegvíz: levegő-víz hőszivattyú, helyiségenként szabályozható padlófűtés, HMV tároló




Miért érdemes választani?




Újépítésű, modern otthon




Energiahatékony gépészet




Praktikus elosztás és tároló helyiség




Kiváló lokáció Tatabányán




Szerződési feltételek:


- a fizetési ütem személyes átbeszélés alapján történik


Várható átadás:


II.sz lakás: 2025. decemberig


I. sz. lakás 2026.áprilisig


Érdeklődni: Szlezák-Forgó Barbara – 06 70 620 4097

Ha felkeltette érdeklődését ez az eladó tatabányai családi ház, vagy bármely más családi ház és bővebb információt szeretne, keressen bizalommal.Hivatkozási szám: #176772

Az Openhouse Tatabánya Ingatlaniroda tagjaként várom Önt az országos hálózatunk teljes kínálatával.

A családi ház vásárláshoz hitelt igényelne? Ingyenes hitelközvetítéssel segít Önnek bankfüggetlen hitelszakértőnk.

További szolgáltatásainkkal (pl. értékbecslés, energetikai tanúsítvány, jogi háttér) is segítjük Önt a vásárlásban.
Az otthon érték. Az ingatlan üzlet.

59000000 Ft
Szlezák-Forgó Barbara
kiemelt értékesítő
0670 620 4097

Referencia szám: 176772

Családi ház részletei

Ár: 59 000 000 Ft
Méret: 48 négyzetméter
Azonosító: 11574213
Irodai azonosító: 176772-5067883
Telek: 250 négyzetméter
Ingatlan állapota: Épülő
Jelleg: családi ház
Építőanyag: Kérdezzen rá a hirdetőtől »
Fűtés jellege: Villany
Fűtés módja: Hőszivattyú
Komfort fokozat: Összkomfort
Kor: Új építésű
Szintek száma: Földszintes
Egész szobák: 2

Egyéb jellemzők

  • Garázs

Térkép


Így keressen családi házat négy egyszerű lépésben. Csupán 2 perc, kötelezettségek nélkül!

Szűkítse a családi házak
listáját
Válassza ki a megfelelő
családi házat
Írjon a hirdetőnek
Várjon a visszahívásra