Eladó családi ház Tatabánya 169 000 000 Ft

Leírás

KARAKTERES CSALÁDI HÁZ IGÉNYES KÖRNYEZETBEN - OTTHON AMI SZINTET EMEL!

A város legfiatalabb lakóparkjában átmenő forgalomtól mentes, csendes utcában eladó egy 2011-ben épült masszív családi ház.

-HAVI REZSI KÖLTSÉG ÖSSZESEN: 35.000.-Ft!!! (fűtés, víz, áram).

A ház egyediségét a lépcsős teleknek köszönhető örök panoráma biztosítja, melyet két nagy méretű teraszról is csodálhatunk.

Az alsó-szinten egy külön bejárattal is rendelkező lakrész lett kialakítva, közvetlen kertkapcsolattal és egy hozzátartozó 24 nm-es fedett terasszal. Ideális baráti - családi összejövetelekre, de akár működhet itt magánrendelő vagy iroda is.
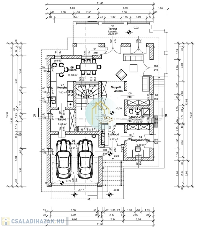
Elosztása:
-konyha, étkező - nappali, szoba, fürdő-Wc,
gépészet, borospince, tároló, fedett terasz.

A középső-szinten egy 26 nm-es nagyméretű terasz épült, amely tájolásának köszönhetően örök panorámát nyújt a Gerecsére és a városra.
Elosztása:
-garázs 2 autónak, előtér, dolgozó szoba,
konyha-étkező-nappali, fürdő-Wc, tároló,
terasz.

A felső-szint, ahol a nyugodt pihenés biztosított a család számára.
Elosztása:
-közlekedő, 3 db külön nyíló szoba, fürdő-
Wc, gardrób.

A ház 38-as Porotherm téglából épült, 12 cm-es szigeteléssel, a tetőn terrakotta cserépfedés.

Napelem rendszer inverterrel, áram 3x20 Amper, vízlágyító, 2 db klíma, elektromos alumínium redőnyök, gázkazánról működő padlófűtés + radiátoros hőleadók szintenként külön vezérelhető rendszer.

Ha nem lenne elég a dupla garázs akkor a ház előtti térkővel kirakott nagy méretű gépkocsi beállón további 5 db autó is elfér.

-Három szintes parkosított kertben automata öntözőrendszer van kiépítve.

-Kovácsoltvas kerítés és teraszkorlát.

M1-es autópálya feljáró 5 perc autóval, de
a városközpont is gyorsan és könnyen megközelíthető.

Ha nagyban gondolkodik és szeretne többet tudni a házról, várom szíves megkeresését.

Családi ház részletei

Ár: 169 000 000 Ft
Méret: 306 négyzetméter
Azonosító: 11554678
Irodai azonosító: 339586
Telek: 835 négyzetméter
Ingatlan állapota: Kitűnő
Jelleg: családi ház
Építőanyag: Tégla
Komfort fokozat: Dupla komfort
Egész szobák: 4
Fél szobák: 2

Egyéb jellemzők

  • Garázs
  • Terasz

Így keressen családi házat négy egyszerű lépésben. Csupán 2 perc, kötelezettségek nélkül!

Szűkítse a családi házak
listáját
Válassza ki a megfelelő
családi házat
Írjon a hirdetőnek
Várjon a visszahívásra