Eladó családi ház Tatabánya 99 500 000 Ft

Leírás

TATABÁNYA - ÚJONNAN ÉPÜLŐ SORHÁZAK - ELADÓ!
KIZÁRÓLAG A HOME&HOME INGATLAN KÍNÁLATÁBAN!

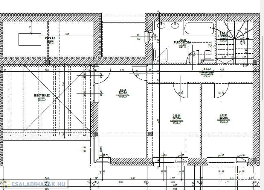
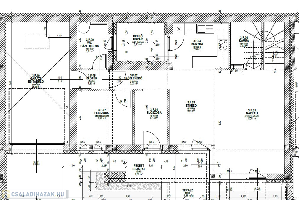
Home&home Ingatlan eladásra kínál Tatabánya közkedvelt családi házas övezetében, egy 150 nm-es, 4 szoba + nappalis, újonnan épülő kétszintes sorházat, 473 m2-es telken. (körbekerített, elektromos kapu, gyalogos kiskapu)

Építő anyagok: - 30 NF cm vastag tégla falazat, 15 cm szigeteléssel
- válaszfalak 10 cm
- tetőcserép

Ablakok:
- 7 légkamrás profilú, 3 rétegű hőszigetelt üvegezésű műanyag nyílászárók, amely kívűl antracit, belül fehér színű.

Fűtés:
- hőszivattyú padlófűtéssel,
- mennyezethűtés,
- fürdőszobákban plusz törölközőszárítós radiátor

Hőszivattyú gondoskodik télen a fűtésről, nyáron a hűtésről.
Ezzel a fűtési rendszerrel biztos az alacsony rezsi költség.

A hirdetésben szereplő ingatlan paraméterei:
- lakás terület 121,73 m2
- terasz 6,38 m2
- kocsibeálló 21,33 m2 (térkövezett)

Az ingatlan a mai építészet szellemében, a gazdaságosság, funkcionalitás és a fenntarthatóság irányát követve épül.

Emeltszintű fűtéskész állapot átadása:
- 2024. IV. negyedév

Irodánk teljes körű hitel ügyintézést, bankfüggetlen tanácsadást és CSOK-ügyintézést kínál ingyen, az Ön igényeihez szabva.

Amennyiben további kérdése merülne fel az ingatlannal kapcsolatban, kérem forduljon hozzám bizalommal!

Családi ház részletei

Ár: 99 500 000 Ft
Méret: 150 négyzetméter
Azonosító: 11509753
Irodai azonosító: 23-3847-6
Telek: 300 négyzetméter
Ingatlan állapota: Átlagos
Jelleg: családi ház
Építőanyag: Kérdezzen rá a hirdetőtől »
Egész szobák: 4
Fél szobák: 1

Így keressen családi házat négy egyszerű lépésben. Csupán 2 perc, kötelezettségek nélkül!

Szűkítse a családi házak
listáját
Válassza ki a megfelelő
családi házat
Írjon a hirdetőnek
Várjon a visszahívásra