Eladó családi ház Tata 81 999 000 Ft

Leírás

ÚJ ÉPÍTÉSŰ, EKXLÚZÍV SORHÁZI OTTHONOK TATA BELVÁROSÁBAN – SAJÁT KERTTEL

Költözzön új építésű, energiatakarékos otthonba saját kerttel a városközpont közelében, pár perc sétára az Öreg-tótól és a Cseke-tótól, ahol a modern kialakítás találkozik a kényelmes városi élettel!

OTTHON START 3%-OS HITEL

CSOK PLUSZ HITEL (3%-os hitel)!!!

ILLETÉKMENTESSÉG!!

HŐSZIVATTYÚS PADLÓFŰTÉS!!
Olyan otthont keres, amelyet a saját ízlése szerint alakíthat ki??
Mindemellett fontos Önnek a nyugodt, családias környezet, de mégis közel szeretne maradni Tata szívéhez??

Ha Ön is időben jelentkezik, akkor most Önné lehet ebből a 4 lakásos exkluzív sorházi projektből az egyik modern, szintes otthon, saját kerttel és fedett terasszal.
A 4 lakásból már csak 3 elérhető!

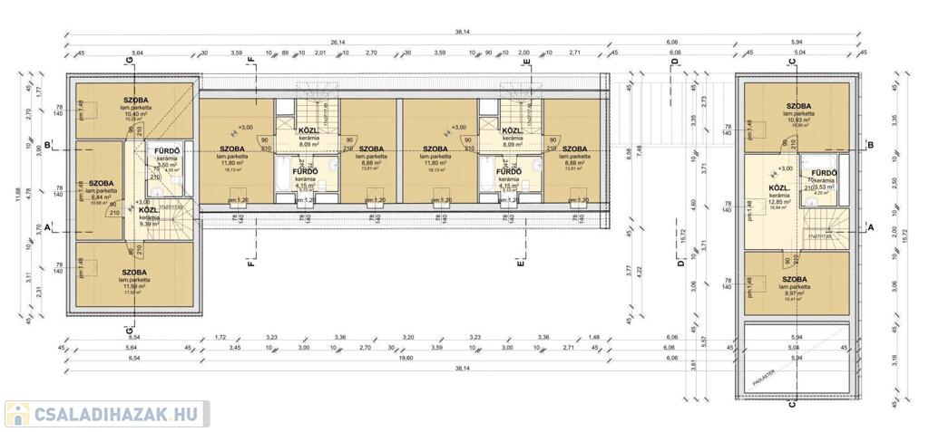
Lakások kialakítása

Mindhárom lakás szintes:

földszint: amerikai konyhás nappali közvetlen kertkapcsolattal, valamint fürdő és mellékhelyiségek

emelet: hálószobák és fürdőszoba

Az egyik lakásnál lent egy hálószoba is helyet kapott, az emeleten pedig további kettő – a többi lakásnál a teljes hálózóna az emeleten található.

A projekt filozófiája

A projekt kitalálásánál a legfontosabb szempont volt, hogy a legkorszerűbb építési technológia és anyagok felhasználásán túl kényelmes, tágas helyiségek kerüljenek kialakításra.
A lakások fűtését lakásonként telepített, szabályozható levegő hőszivattyúk biztosítják, amelyek egyetlen rendszerben gondoskodnak a fűtésről és a használati melegvíz előállításáról.

Az ingatlant egyedi, praktikus megoldásokkal tervezték, melyek az Ön kényelmét szolgálják. Ha mégis lenne egyéni elképzelése, most még lehetősége van rá, hogy a saját ízlése szerint válassza ki a burkolatokat és szanitereket.

Műszaki tartalom

Teherhordó és válaszfalak: Porotherm 30 N+F Profi falazat, Porotherm 10 N+F Profi válaszfal

Födém: monolit vasbeton födém

Tetőszerkezet: natúr színű kerámia tetőcserép, szellőző elemekkel, hófogóval

Lépcső: gipszzsalus lépcsőszerkezet

Hőszigetelés:

Padlásfödémen: 25–30 cm Rockwool Multirock kőzetgyapot

Homlokzaton: 15 cm Austrotherm EPS H80 üvegszövet hálóval

Lábazaton: 15 cm Austrotherm Expert Fix XPS üvegszövet hálóval

Nyílászárók: műanyag, szürkés-zöld színben

Bejárati ajtó: többponton záródó, hőszigetelő kivitel (szürkés-zöld színben)

Fűtés: lakásonkénti levegő-víz hőszivattyú, padlófűtéssel

Burkolatok, szaniterek: vásárló igénye szerint választhatók

Az épület körül a telek nagy része privát zöldfelület lesz. A burkolt részek kizárólag a gépjárművekhez szükséges minimum mennyiségben készülnek. A terület többi része gyepesített, a telekhatároknál cserjesáv és futónövények biztosítják a zöld környezetet és az egységes látványt.

Lakások paraméterei és árai

1-es lakás: 109,91 nm (109.200.000 Ft) + 8,75 nm (4.400.000 Ft) + 1 db térkőves belső parkoló (1.500.000 Ft) + 59,09 nm privát kertrész = 115.100.000 Ft

BEVEZETŐ ÁR!!!!
2-es lakás: 90,88 nm (81.999.000 Ft) + 9 nm fedett terasz (4.400.000 Ft) + 1 db térkőves belső parkoló (1.500.000 Ft) + 48,44 nm privát kertrész = 87.899..000 Ft

3-as lakás: 90,93 nm (91.000.000 Ft) + 9 nm fedett terasz (4.400.000 Ft) + 1 db térkőves belső parkoló (1.500.000 Ft) + 46,53 nm privát kertrész = 96.900.000 Ft

4-es lakás: ELKELT !!!

Projekt ütemezés

Építkezés kezdete: 2025. október 1.

Műszaki átadás: az építkezés megkezdésétől számított 18 hónap

Extra szolgáltatások

Ingyenes, teljes körű bankfüggetlen hitel- és CSOK Plusz ügyintézés

Szerződés előkészítése és teljes körű jogi támogatás

Ne maradjon le erről az exkluzív lehetőségről!
Hívjon bizalommal a részletekért:
Szabó Szilvia
Tel.:06 70 367 76 36

Családi ház részletei

Ár: 81 999 000 Ft
Méret: 91 négyzetméter
Azonosító: 11565666
Irodai azonosító: 9433
Cím: Tata
Telek: 48 négyzetméter
Ingatlan állapota:
Jelleg: sorház
Építőanyag: Kérdezzen rá a hirdetőtől »
Fűtés jellege: Egyéb
Kor: Új építésű
Egész szobák: 3

Így keressen családi házat négy egyszerű lépésben. Csupán 2 perc, kötelezettségek nélkül!

Szűkítse a családi házak
listáját
Válassza ki a megfelelő
családi házat
Írjon a hirdetőnek
Várjon a visszahívásra