Eladó családi ház Tata 177 500 000 Ft

Leírás

PRÉMIUM KATEGÓRIÁS, ENERGIAHATÉKONY ÁLOMOTTHON- 2027 TAVASZI ÁTADÁSSAL!!

Tata egyik legnemesebb városrészében, a Kálvária-domb és az Öreg-tó közvetlen szomszédságában kínáljuk megvételre ezt a kimagasló műszaki tartalommal rendelkező, új építésű otthont – ahol a természet közelsége és a modern luxus találkozik.
Főbb adatok:
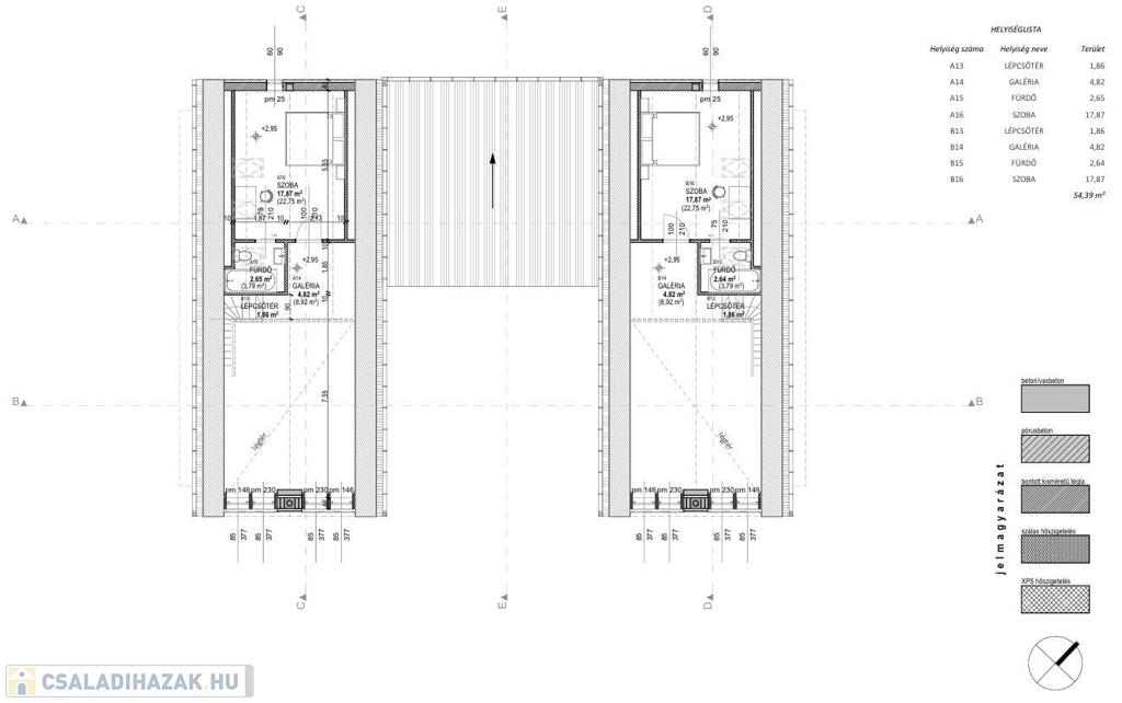
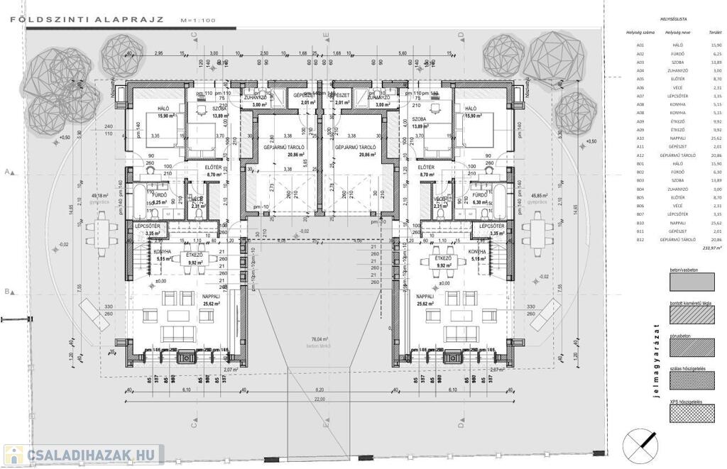
• 124 m² lakótér
• 20 m² garázs
• 10 m² fedett terasz

Átgondolt, modern elrendezés:
• 3 hálószoba gardróbbal, saját fürdő + WC-vel
• földszinten vendég WC
• nappali + konyha + étkező egyben
• tégla építés, grafitos hőszigeteléssel a kiemelkedő energiahatékonyságért
• beton tetőcserép, hosszú évtizedekre tervezve

Prémium műszaki tartalom:
• H-tarifás hőszivattyú + teljes felületen padlófűtés
• Helyiségenkénti egyedi fűtésszabályozás
3 db 2,6 Kw teljesítményű hűtő-fűtő klíma
• Veka, 3 rétegű nyílászárók – jelenleg a legjobb hőszigetelési értékkel a piacon
• Riasztó- és kamerarendszer előkészítés
• Elektromos redőnyök
• Aszfaltos utcafront + közvilágítás
Térköves kocsibehajtó

Miért különleges ez az ingatlan?
A Kálvária-domb és az Öreg-tó közelsége nem csupán panorámát és természetközeli hangulatot ad:
itt minden nap egy időtálló, nyugodt és prémium életérzés részese lehet.
Nívós,energiatakarékos, hosszú távon értékálló ingatlan, kivételes lokációval – ritka lehetőség a piacon.
Részletesebb műszaki tartalomért, egyéb kérdéseivel keressen bizalommal: Telek Bernadett 06703677606

HITEL ÉS TÁMOGATÁSOK – SORBAN ÁLLÁS NÉLKÜL! Irodánk INGYENES hitelügyintézést és állami támogatások (CSOK, stb.) lehívását vállalja. Bankfüggetlen szakértőnk megtalálja a piacon elérhető legjobb konstrukciót, és végigviszi az egész folyamatot. Ön választ, mi finanszírozunk.

Családi ház részletei

Ár: 177 500 000 Ft
Méret: 144 négyzetméter
Azonosító: 11611682
Irodai azonosító: 9801
Cím: Tata
Telek: 405 négyzetméter
Ingatlan állapota:
Jelleg: családi ház
Építőanyag: Kérdezzen rá a hirdetőtől »
Fűtés jellege: Házközponti (egyedi mérővel)
Kor: Új építésű
Egész szobák: 4

Így keressen családi házat négy egyszerű lépésben. Csupán 2 perc, kötelezettségek nélkül!

Szűkítse a családi házak
listáját
Válassza ki a megfelelő
családi házat
Írjon a hirdetőnek
Várjon a visszahívásra