Eladó családi ház Tata 127 000 000 Ft

Leírás

ÖNÁLLÓ CSALÁDI HÁZ,A VÁROSKÖZPONT SZÍVÉBEN!


Tata köpontjában,a város műemléki jelentőségű területén,frekventált részén helyezkedik el az ingatlan,ahonnan néhány percnyi séta az öreg tó.
Közelben vannak üzletek, hivatalok, éttermek,múzeumok, egészségügyi ellátások,autóbuszpályaudvar,óvoda,iskola, sportolási lehetőség stb.
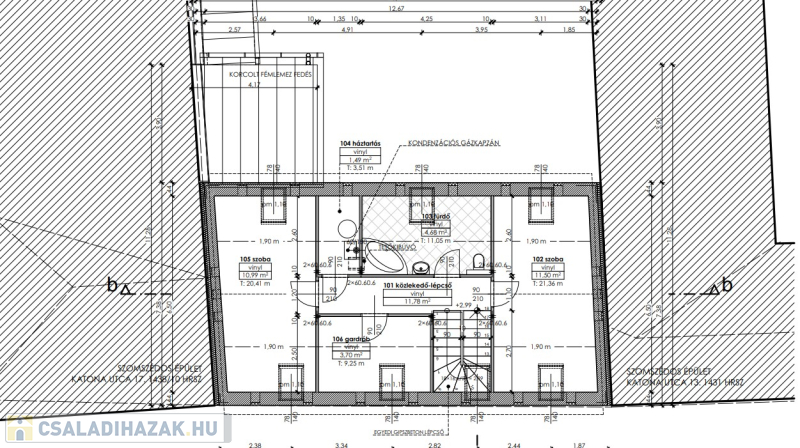
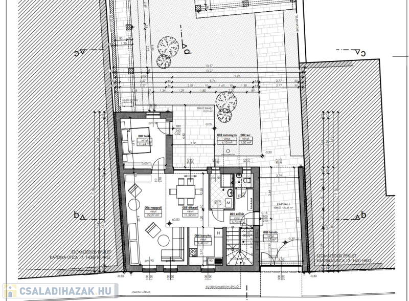
Az építmény egylakásos,önálló telken álló lakóépületként került kialakításra,zárt belső udvarral,2 fedett .
Az épület megfelel az érvényben lévő épületenergetikai követelményeknek.(“A”energetikai tanusitvánnyal rendelkezik)

Az összes alapterület: 241 m2

A használati melegvíz előállítása a tetőtéri háztartási helyiségben tervezett 1 db Saunier Duval 25kw típusú kondenzációs kazánról ellátandó V=100 literes indirektfűtésű melegvíztárolóval biztosított.
Az épületben alacsonyhőmérsékletű, padlófűtési rendszer került kialakításra, szintenkénti hőmérséklet szabályozási lehetőséggel.
Az épület léghűtése Gree - VRF levegő – levegő hőszivattyús rendszerrel került kialakításra,szintenként 1-1 db beltéri egységgel.
Beépítettett anyagok, szerkezetek:
• Teherhordó fal bővítmény: tégla I. osztályú, POROTHERM 44 X-THERM,
• Vasbeton koszorú, födém, pillérek, áthidalók: statikai tervek szerint készültek.
Kémény: Az emeleti háztartási helyiségben egy 25 kW-os fali kondenzációs gázkazán kerül beépítésre. Az égéstermék elvezetés: helyiség levegőjétől független üzemmódú
• Lépcső: Gipszbeton lépcső,
-törtfehér, valamint téglaburkolattal homlokzati rajzok szerint
• Homlokzat burkolat: ragasztott téglaburkolat.
• Gipszkarton tetőtéri belső burkolat 2 réteg Rigips rendszer
• Homlokzati nyílászárók: I. osztályú, fa borovi fenyő,egyedi gyártású ,háromrétegű hőszigetelt üvegezéssel szürke színben
• Burkolatok: padlón: I. osztályú vinyl , vizes helyiségekben kerámia burkolat.

Mindannyian tudjuk, hogy az otthon nemcsak négy falat, tárgyakat jelent, az otthon menedék. Az az ember ,akinek van hová-és van kihez hazamenni, mindenkor könnyebben viseli az élet konfliktusait, csapásait, feladatait. Az otthon számomra azt is jelenti, hogy valaki meghallgat, valaki velem van!

Itt biztos nem lesz egyedül, ide bátran költözhet a nagy családjával, engedje át magát ennek az érzésnek és nézze meg ezt az ingatlant!

Meglátni és megszeretni ezzel tudnám jellemezni ezt a jó hangulatú nappali+4 hálószobás körbenapozott, nagy teraszos, családi házat!

Sikeres vásárlást kívánok!

Családi ház részletei

Ár: 127 000 000 Ft
Méret: 168 négyzetméter
Azonosító: 11533292
Cím: Városközpont
Telek: 241 négyzetméter
Ingatlan állapota: Kitűnő
Jelleg: családi ház
Építőanyag: Kérdezzen rá a hirdetőtől »
Fűtés jellege: Cirkó
Egész szobák: 5

Egyéb jellemzők

  • Csatorna
  • Garázs
  • Kábel TV
  • Melléképület
  • Parketta
  • Pince
  • Terasz

Így keressen családi házat négy egyszerű lépésben. Csupán 2 perc, kötelezettségek nélkül!

Szűkítse a családi házak
listáját
Válassza ki a megfelelő
családi házat
Írjon a hirdetőnek
Várjon a visszahívásra