Eladó családi ház Tata 114 459 000 Ft

Leírás

KIVÉTELES ELRENDEZÉS!!!GAZDASÁGOS FENNTARTHATÓSÁG!!ÚJSZERŰ KÖRNYEZET!!!
A „minimál” az ingatlanok közül a luxus stílusok közé számít, hiszen ebben a szóban egy kifinomult kettősség rejlik: a letisztultság és az egyszerűség mellett a kidolgozottság maximuma áll. Ennek szellemében ajánljuk most Önnek ezt az exkluzív és kényelmes, minimál stílusú otthont!
Az építtető által megfogalmazódott cél: az egyszerű építészeti formákat és anyagokat felhasználva egy földszintes, nyeregtetős, kompakt, egyszerű alaprajzú épület kialakítása, mely egyszerre modern, de élhető, ugyanakkor a hagyományos formákat és anyagokat megjelenítő lakóépület egy kivételes adottságú újszerű lakóövezetben.
Miért is jelenthet tökéletes megoldást?
Mert a felhasznált prémium anyagok mellett a tágas terek biztosítják a nem mindennapi életformát….
Az ingatlan megszokottól eltérő, különleges tagoltsága révén a közösségi tér teljesen elkülönül a hálószobáktól…
A funkcióhoz pedig igazodik a forma, miközben a felhasznált anyagok a maguk egyszerűségével válnak nagyszerűvé….
A sík formák, és a nagy üvegfelületeken beáramló fény látványossá teszi a tereket…
És lássuk hol találhatjuk meg ezt a valóságban:
Tata belvárosához közeli teljes új parcellázású részén (Volt „Szőnyeggyári sziget”,ami napjainkban indult óriási fejlődésnek, ahol hamarosan gombaszámra fognak előbújni a szebbnél szebb újépítésű házak.
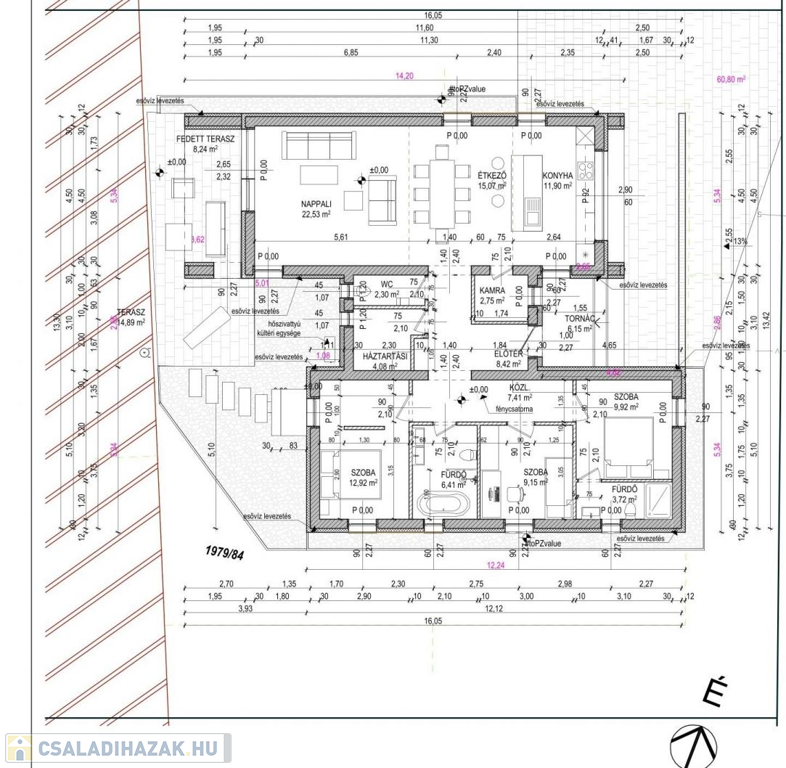
Elsődleges szempont volt, a ház praktikus élettereinek kialakítása: A mai modern igényeket jól kiszolgáló lakóterében, egy szinten, kényelmesen élhető, háromszobás, amerikai konyhás nappalis, dupla fürdőszobás, családi ház alakult ki. (melyet alaposabban áttanulmányozhat a tervrajzok és a látványtervek segítségével)
További szempont volt a lakók nyugalmának védelme, hiszen maga a ház is egy zárt parkosított területen, sorompós beléptetéssel kialakított újparcellázású lakóparkban épül.
Illetve a szintén nem elhanyagolható kritérium a MEGÚJJULÓ ENERGIAFORRÁSOK (Hőszivattyús fűtés) felhasználása, ezáltal gazdaságosan fenntartható otthon kialakítása.
A végeredmény végül egy igazi, modern kertvárosi jellegű, gazdaságosan fenntartható otthon, ami családias kényelmet, a modernitást és a magas minőséget keresők számára nyújt megoldást,mely biztosan az Ön kényelmét is szolgálni fogja.
Vagyis:
A megszokott klasszikus lakásoktól gyökeresen eltérő otthon tökéletesen igazolja, hogy némi „másság”, másfajta gondolkodás és látásmód, mennyi izgalmat és különlegességet vihet egy otthonba, ami most akár az Öné is lehet!!!
A meghirdetett vételár EMELTSZINTŰ FŰTÉS KÉSZ állapotot tartalmaz

EMELTSZINTŰ FŰTÉS KÉSZ állapot:114.751.000Ft
Kulcsra kész állapot: 129.000.000Ft (Bevezető ár)

Környék, környezet
Tata egyik azon ritka városrésze, ahol a kertvárosias életérzés és a belváros közelsége kéz a kézben jár. A környezet nyugodt, családias, teljesen új lakóközösséggel és kiemelkedő biztonsággal. Az újonnan kialakuló lakópark sorompóval zárt rendszerrel fog működni, melyet két patak ölel körbe, igazi zöld szigetet alkotva. A Tatai Öreg-tó és a történelmi Tatai vár mindössze egy karnyújtásnyira található, akárcsak a város új központja, ahol LIDL, Interspar és bevásárlóközpont is gyorsan elérhető. Az új parcellázású területen 40 önálló luxus családi ház kerül kialakításra — egy exkluzív, modern lakóövezet, ahol a természet közelsége és a városi kényelem tökéletes harmóniában találkozik.
Budapesttől, illetve Győrtől az M1-es autópályán csupán 1-1 órányi (60-65km.) távolságra van.
Ha az elképzelései között Önnek és családjának egy ilyen értékálló, igényes megoldás szerepel, akkor ezt most könnyedén megvalósíthatja.
Amiben pedig irodánk az Önök segítségére lesz:
-Teljes körű, INGYENES bank független tanácsadás és ügyintézés!
-Szerződés előkészítése
-CSOK+ hitel ügyintézés!
-Otthon Start hitel ügyintézés
egy helyen az Ön kényelme érdekében…
Ha Ön se szeretne lemaradni erről a kitűnő ajánlatról, akkor hívjon már most a részletekért!
Szabó Szilvia
Tel.:06 70 367 76 36
A hirdetés szövege szerzői jogvédelem alatt áll!

Családi ház részletei

Ár: 114 459 000 Ft
Méret: 125 négyzetméter
Azonosító: 11551601
Irodai azonosító: 9298
Cím: Tata
Telek: 600 négyzetméter
Ingatlan állapota:
Jelleg: családi ház
Építőanyag: Kérdezzen rá a hirdetőtől »
Fűtés jellege: Egyéb
Kor: Új építésű
Egész szobák: 4

Így keressen családi házat négy egyszerű lépésben. Csupán 2 perc, kötelezettségek nélkül!

Szűkítse a családi házak
listáját
Válassza ki a megfelelő
családi házat
Írjon a hirdetőnek
Várjon a visszahívásra