Eladó családi ház Tárnok 44 900 000 Ft

Leírás

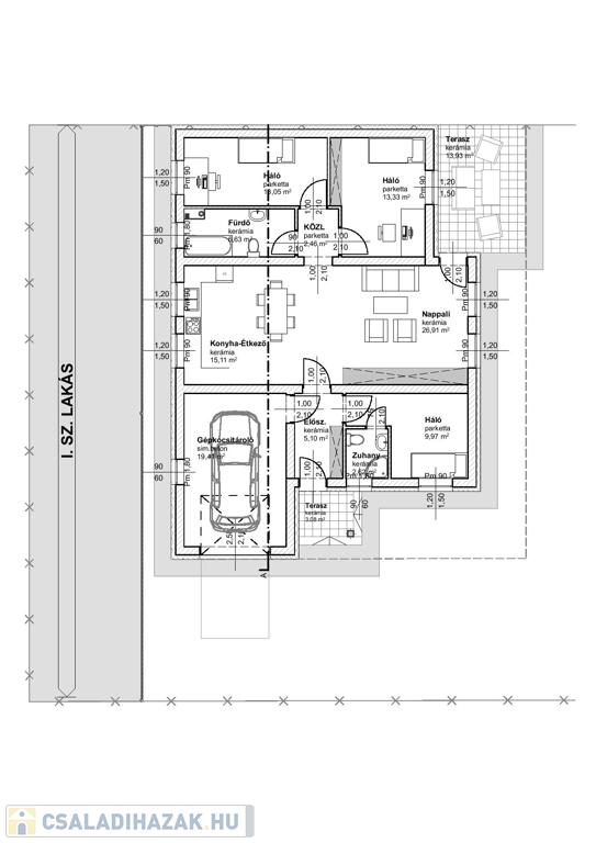
Tárnokon Dózsa György utcában aszfaltos út mellett 425 m2 saját telekrészen önálló iker lakóépület utcai lakása nappali + 3 hálószobás 117 m2-es, lakóépület eladása leköthető, elkészülte megegyezés kérdése. Az épület építésére, CSOK és hitel felvehető, 10 % előleggel leköthető.
A lakóépület gépkocsitárolós, amerikai konyhás, + 3 hálószobával, fürdőszobával, WC-vel, helyiséggel rendelkezik, nappaliból terasz összeköttetéssel.
Az épület összközműves, vizesrendszerű villanyfűtésű cirkó berendezéssel ellátott, a nappali padlófűtéses, többi helyiség radiátoros kivitelezésű.
A ház, szerkezete 30 cm hőszigetelt blokktéglával kívül 15 cm dryvit hőszigeteléssel, 10 cm YTONG válaszfalak, pólyás fafödémmel ellátott, hőszigeteléssel 25 cm kőzetgyapot szigeteléssel rendelkezik a padlástér felé. A külső nyílászárók, három rétegű hőszigetelő üvegezésű műanyag szerkezetűek, bejárati ajtó, több ponton záródó, burkolatok a szobákba laminált parketta, a többi helyiségben járólap. Terasz csúszásmentes, fagyálló lapokkal, igény szerinti burkolat választható (2500 Ft/m2 árig). A hálószobák radiátorosak, többi helyiség padlófűtéses kialakítású. Fűtés rendszere kondenzációs kazánról működik. A kert tereprendezéssel, kerítéssel ellátott kivitelben kerül átadásra, másik lakástól növényzettel elválasztva.

Családi ház részletei

Ár: 44 900 000 Ft
Méret: 117 négyzetméter
Azonosító: 9614862
Cím: Dózsa György utca
Telek: 425 négyzetméter
Ingatlan állapota: Épülő
Jelleg: családi ház
Építőanyag: Tégla
Fűtés jellege: Központi
Fűtés módja: Villany
Komfort fokozat: Összkomfort
Kor: Új építésű
Elhelyezkedés: Utcafronti
Szintek száma: Földszintes
Egész szobák: 3
Fél szobák: 1
Nappalik: 1

Egyéb jellemzők

  • Beépíthető tetőtér
  • Csatorna
  • Garázs
  • Kábel TV
  • Melléképület
  • Padlás
  • Parketta
  • Pince
  • Terasz
  • Medence

Így keressen családi házat négy egyszerű lépésben. Csupán 2 perc, kötelezettségek nélkül!

Szűkítse a családi házak
listáját
Válassza ki a megfelelő
családi házat
Írjon a hirdetőnek
Várjon a visszahívásra