Eladó családi ház Tárnok 141 900 000 Ft

Leírás

Eladó Tárnokon újszerű, alacsony rezsijű családi ház!

Tárnok egyik újépítésű, kertesházas, családias övezetében kínálunk megvételre egy 2017-ben épült, kiváló műszaki tartalommal rendelkező, újszerű állapotú családi házat, amely ideális választás mindazok számára, akik hosszú távon fenntartható, jól átgondolt otthont keresnek.
Jellemzők:
-Építés éve: 2017
-Állapot: újszerű, folyamatosan karbantartott
-Alacsony rezsiköltség
-Telek mérete: 840 m², sík, füvesített, jól használható

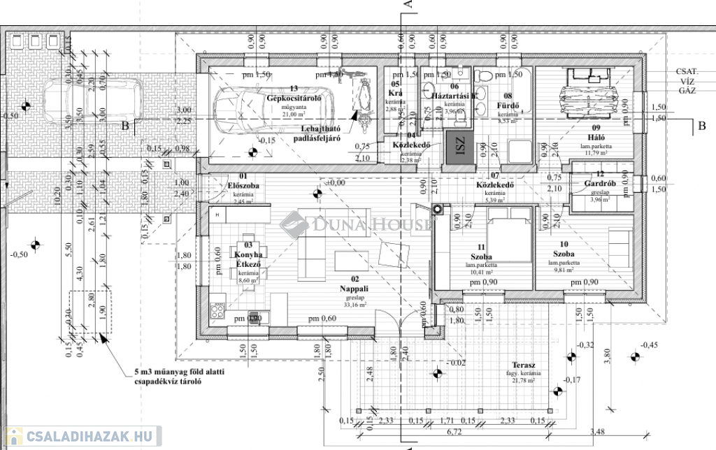
A ház: 124m2, bruttó 146m2, 3 db hálószoba: 10-12 m² közöttiek (akár 4db hálószoba is kialakítható), külön gardróbszoba, 2db wc, a fürdőszobában kád és zuhanykabin
42 m²-es amerikai konyhás nappali, rendkívül világos - DK és DNY tájolásnak köszönhetően egész nap világos
Nappaliból közvetlen terasz- és kertkapcsolat - 21 m²-es terasz
-Kondenzációs kazán, Szauna, Gépesített tölgy konyhabútor, Padlófűtés + radiátoros hőleadók, Riasztórendszer telepítve, Napelem telepíthető


Telek és extrák:-Automata öntözőrendszer-Elektromos kapu és elektromos garázsajtó-21 m²-es garázs-Rendezett, gondozott kert-Alábetonozott kerti tároló-Épített grillező
Jogilag rendezett ingatlan: az eredeti 1 700 m²-es telek ügyvédi megosztással került felosztásra, önálló helyrajzi szám igényelhető, jogilag tiszta helyzet.
Ez a csodás családi otthon, első tulajdonosoktól vehető meg. Az építkezésről fényképes dokumentációk rendelkezésre állnak.3%-os hitelre is megvásárolható.
Az ingatlan kiváló választás azok számára, akik modern, energiatakarékos, minőségi kivitelezésű családi házat keresnek egy nyugodt, újépítésű környezetben, mégis jó megközelíthetőséggel.
A tágas terek, a nagy kert és az alacsony fenntartási költségek hosszú távon is értékálló befektetéssé teszik.
Amennyiben az ingatlan felkeltette érdeklődését, kérem keressen bizalommal.

Családi ház részletei

Ár: 141 900 000 Ft
Méret: 124 négyzetméter
Azonosító: 11605106
Irodai azonosító: HZ039912-5144365
Cím: 124 nm-es ház eladó Tárnok
Telek: 840 négyzetméter
Ingatlan állapota: Kitűnő
Jelleg: családi ház
Építőanyag: Tégla
Fűtés jellege: Egyedi
Fűtés módja: Gáz
Kor: 6-10 éves
Szintek száma: Földszintes
Egész szobák: 4

Térkép


Így keressen családi házat négy egyszerű lépésben. Csupán 2 perc, kötelezettségek nélkül!

Szűkítse a családi házak
listáját
Válassza ki a megfelelő
családi házat
Írjon a hirdetőnek
Várjon a visszahívásra