Eladó családi ház Tárkány 65 000 000 Ft

Leírás

Fedezd fel Tárkányon az új otthonodat egy újépítésű, kulcsrakész családi házat!

Megépítésre kerül egy modern, kulcsrakész családi ház, amely tökéletes helyszín lehet álmaid családjának.
Az ingatlan újépítésű, fiatalos lendülettel és kiváló minőségű kivitelezéssel várja azokat, akik értékelik a praktikus kialakítást és a stílusos megjelenést.

Ez az otthon nemcsak esztétikus, hanem rendkívül funkcionális is – tágas, világos terek, modern konyha, kényelmes hálószobák és praktikus fürdőszoba biztosítja a kényelmet és az otthonosság érzését. A beépített anyagok és a precíz kivitelezés garantálja a hosszú távú, problémamentes használatot.

Az újépítésű ingatlan főbb jellemzői:

- várható átadási határidő: 2026.12.31. ( építkezés előre haladása esetén ez rövidülhet)
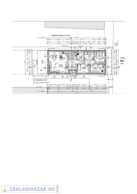
- helyiségek: 1 szoba: 10,92 nm, 2 szoba: 10,80 nm, 3 szoba: 9,62 nm, nappali: 21,47 nm, konyha: 6,25 nm, étkező: 7,88 nm, kamra: 2,28 nm, külön álló wc: 1,90 nm, háztartási helyiség: 5 nm, fürdőszoba: 7,50 nm, előszoba: 7,87 nm, közlekedő folyosó: 5,20 nm
- szerkezete: tégla falazat+15 cm hőszigetelés
-tető szerkezete: szeglemezes tetőszerkezet cserépfedéssel
- energetikai besorolása: A+
- telek mérete: 881 nm
- lakótér nagysága: 98,39 nm
- hideg-meleg burkolatok vevő által kiválasztható egy meghatározott keretösszeg szerint
- fűtés: mennyezet hűtés-fűtés, kiegészítő padlófűtéssel, hőszivattyúval
- alapozása jellemzően 50 cm széles sávalapozással történik
-falazata 30 cm vastag kerámia falazat

Az ingatlan építési hitellel is megvásárolható!
Hitelügyintézésben díjmentesen állunk vevőink részére!

Ideális választás fiatal családoknak, akik szeretnének egy lendületes, könnyen berendezhető lakóhelyet, ahol minden nap új élmény lehet.
Vágj bele az életetek legszebb kalandjába – ez a ház készen áll arra, hogy az otthonoddá váljon!
Ne hagyd ki ezt a lehetőséget, keresd a részleteket még ma!

A hirdetésben szereplő adatok és alaprajz kizárólag tájékoztató jellegűek! Bővebb felvilágosítás az ingatlan személyes megtekintése során!

Családi ház részletei

Ár: 65 000 000 Ft
Méret: 98 négyzetméter
Azonosító: 11610575
Irodai azonosító: 340486
Telek: 881 négyzetméter
Ingatlan állapota: Kitűnő
Jelleg: családi ház
Építőanyag: Tégla
Komfort fokozat: Összkomfort
Kor: Új építésű
Egész szobák: 4

Egyéb jellemzők

  • Terasz

Így keressen családi házat négy egyszerű lépésben. Csupán 2 perc, kötelezettségek nélkül!

Szűkítse a családi házak
listáját
Válassza ki a megfelelő
családi házat
Írjon a hirdetőnek
Várjon a visszahívásra