Eladó családi ház Tarcal 19 900 000 Ft

Leírás

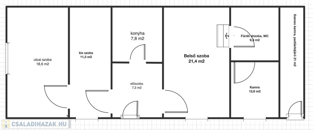
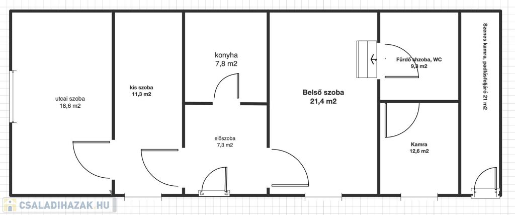
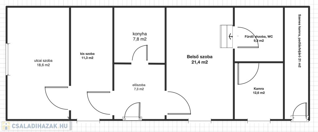
Tarcal központjában, a Tokaji borvídék szívében, a híres Andrássy kúria közelében, örök panorámás kilátással, a Világörökség részét képező bor út mentén, eladásra kínálunk egy 110 nm-es 3 szobás, külön konyhás, fürdőszobás, terméskőből épült gáz fűtéses családi házat, 900 nm-es telekkel, azonnal költözhetően.
Az ingatlan Főbb jellemzői: 

110 nm-es terméskő szerkezetű, tágas családi ház
3 tágas szoba, fűrdőszoba
kényelmes elrendezés, jól kihasználható terek
nyugodt, barátságos környezet,
közvetlen közel a borút mentán, Andrássy kastélytól pár percre
kíváló közlekedési lehetőségek
kultúrális és történelmi nevezetességek, borászok a közelben

A családi ház alatt húzódó Rákóczi korabeli pince rendszer miatt, az ingatlan befektetésre is kiválóan alkalmas (a pince rendszer feltárása és bejáratának a kialakítása a leendő tulajdonosra vár). A ház ideális választás családoknak, akik a természetet, a történelmet és a kúltúrát egyszerre szeretnék élvezni. Ne hagyja ki ezt a remek lehetőséget, hogy az otthona egy varázslatos borvidéken legyen . Kérem keressenek kérdéseikkel bizalommal. Az ingatlan azonosítója: 97203Érdeklődni: +36304092510 Az ingatlan azonosítója: 97203 Érdeklődni: +36304092510

Családi ház részletei

Ár: 19 900 000 Ft
Méret: 110 négyzetméter
Azonosító: 11576476
Irodai azonosító: 97203
Telek: 900 négyzetméter
Ingatlan állapota:
Jelleg: családi ház
Építőanyag: Tégla
Fűtés jellege: Konvektoros
Egész szobák: 3

Így keressen családi házat négy egyszerű lépésben. Csupán 2 perc, kötelezettségek nélkül!

Szűkítse a családi házak
listáját
Válassza ki a megfelelő
családi házat
Írjon a hirdetőnek
Várjon a visszahívásra