Eladó családi ház Tapolca 89 000 000 Ft

Leírás

A festői Balaton-felvidék szívében, Diszel településen, a Csobánc-hegy lábánál kínálok egy modern, mediterrán stílusú családi házat eladásra.

Ez a 2022-ben épült, újszerű, földszintes ház igazán jó helyen van. A környék csendes, nyugodt, mégis könnyen elérhető minden fontos dolog. A panorámás kilátás nagyon szépen nyílik a Csobáncra, és a telek nagy, 1254 négyzetméter, így még sok minden belefér.


Az ingatlan főbb jellemzői
•1254 m2
•118 m2
•2022
•mediterrán megjelenés

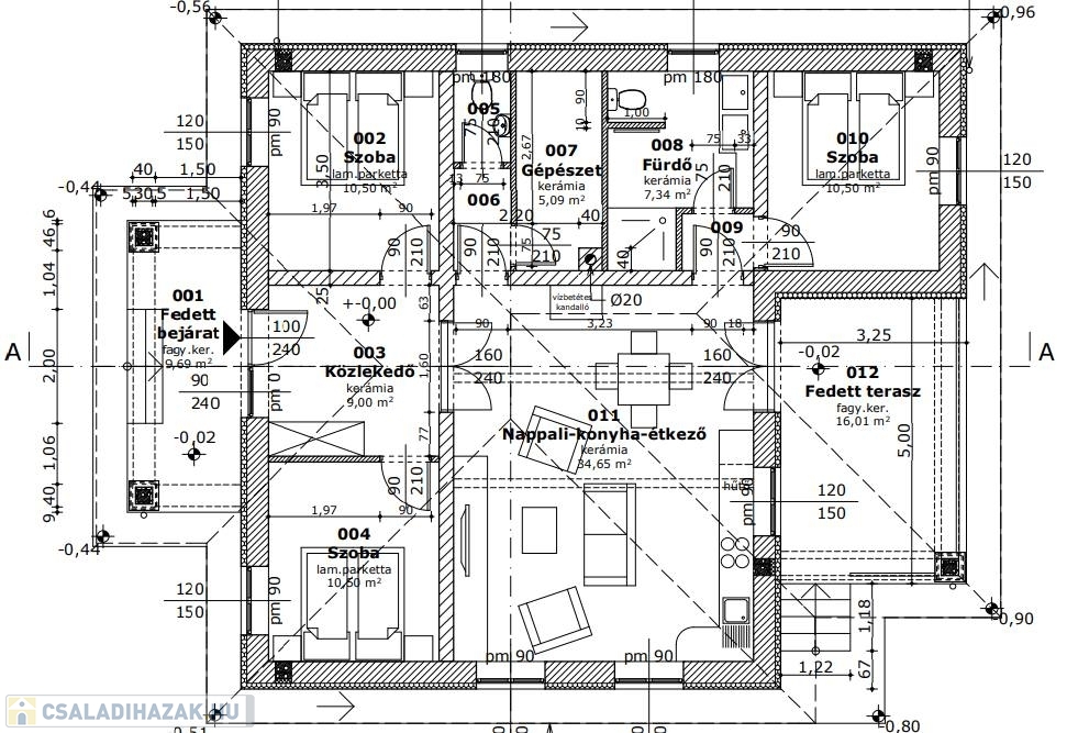
Elrendezés és belső kialakítás
Az ingatlan tervezése során kiemelt figyelmet fordítottak a funkcionalitásra és az esztétikára. A világos, modern térben harmóniában jelenik meg a közösségi időtöltésre alkalmas nagy nappali és az elvonulásra alkalmas magánszféra.
A ház praktikus elosztása a következő:
•Előszoba
•Amerikai konyhás nappali
•3 hálószoba
•Gépház
•Fürdőszoba WC-vel
•Vendég WC
•Hátsókertre néző nagyméretű fedett terasz

A nappali különleges atmoszféráját nemcsak a tágas tér, hanem az eklektikus hatású gránit- és márványburkolat is meghatározza, amely tökéletes összhangban van a helyiség központi elemével, a nagyméretű kandallóval. A közlekedőkben és a hálószobákban gress márványlapok és laminált padló található, amelyek harmonikus és praktikus burkolatmegoldások.

Az otthon fűtéséről egy vízteres kandalló gondoskodik, amelyhez egy 750 literes puffertartály csatlakozik, biztosítva az energiatakarékos működést és az egyenletes hőelosztást. A nyári hónapok kényelmét két kiállású klíma biztosítja. Az ingatlan háromfázisú, 3x32 amperes elektromos hálózattal rendelkezik, és a telek területén belül a gáz is elérhető, további komfortot és lehetőségeket teremtve.

A 1254 m²-es parkosított kert olyan figyelmes tervezés eredménye, amely egyszerre biztosít pihenést és aktív kikapcsolódást. A nagyméretű, parasztfödémes fedett teraszról lélegzetelállító kilátás nyílik a festői Csobánc-hegyre.

A kertben elhelyezkedő 3x5 méteres medence, az épített kemence és a pergola mind hozzájárulnak ahhoz, hogy az otthon tökéletes helyszíne legyen családi összejöveteleknek és baráti találkozóknak.

Diszel, Tapolca kertvárosi részén helyezkedik el, nyugodt és csendes, biztonságos környezetben. A vidék gazdag természeti adottságokkal rendelkezik, ideális túrázásra és kikapcsolódásra. A Csobánc-hegy közelsége tovább növeli a környék vonzerejét a természet és szabadtéri programok kedvelői számára. A település atmoszférája békés, a közeli Tapolca pedig minden szükséges infrastruktúrát biztosít.

Ha egy stílusos, azonnal költözhető otthont keres a Balaton-felvidéken, amely a kényelmet és a természetközeli életérzést ötvözi, ne hagyja ki ezt az ajánlatot!

További információkért vagy megtekintés céljából forduljon hozzám bizalommal a hét bármely napján.

Szívesen állok rendelkezésére!

Családi ház részletei

Ár: 89 000 000 Ft
Méret: 118 négyzetméter
Azonosító: 11579395
Irodai azonosító: 345166
Cím: Botár Árpád
Telek: 1254 négyzetméter
Ingatlan állapota: Kitűnő
Jelleg: családi ház
Építőanyag: Tégla
Fűtés jellege: Kandalló
Komfort fokozat: Összkomfort
Egész szobák: 4

Egyéb jellemzők

  • Terasz

Így keressen családi házat négy egyszerű lépésben. Csupán 2 perc, kötelezettségek nélkül!

Szűkítse a családi házak
listáját
Válassza ki a megfelelő
családi házat
Írjon a hirdetőnek
Várjon a visszahívásra