Eladó családi ház Tápiószele 68 000 000 Ft

Leírás

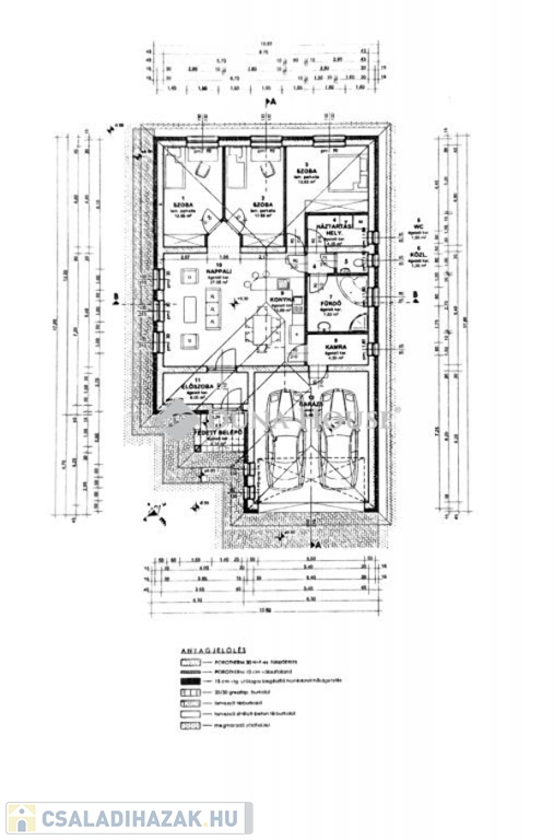
Eladó 100-nm-es épülő önálló családi ház dupla garázzsal az ingatlanban 979 nm-es telken 3 szoba + amerikai konyhás nappali, Tápiószele csendes nyugodt kertvárosi részén !!!!Az ingatlanban kialakításra került 3 szoba + amerikai konyhás nappali ,fürdőszoba, külön wc, kamra, háztartási helyiség, dupla garázzsal !!(A képgalériában szereplő képek eredeti és mesterséges intelligenciával készített képek is vannak a lehetséges befejezett állapotra.)Műszaki tartalom -Hőszivattyús padló fűtés - 4 db klíma ( minden szobában )- 30cm födém szigetelés - 3 rétegű ablakok- Elektromos redőny- Viablokk tégla falazat (37,5cm) - 10 cm külső szigetelés - H tarifa Az ingatlan kulcsra kész állapota Május -Június!!Ne maradjon le róla !!Az ingatlan a szakmában nagy szaktudással bíró kivitelezőtől, prémium minőségben, első osztályú anyagokból.REFERENCIA MUNKÁKKAL A HÁTTÉRBEN!Ceglédi DUNA HOUSE ügyfeleink részére ingyenesen vállalja, a megegyezés sikeres lebonyolítását, JOGI tanácsadást, illetve teljeskörű CSOK és HITELÜGYINTÉZÉST. Kérje ingyenes tájékoztatásunkat! A kínálatunkban található összes ingatlannal kapcsolatban felvilágosítást tudunk nyújtani,További információkkal és megtekintéssel kapcsolatban várom megtisztelő hívását !!Ha van eladó ingatlanja és szeretné magas minőségben, és a legjobb áron értékesíteni, AKKOR KERESSEN BIZALOMMAL!

Családi ház részletei

Ár: 68 000 000 Ft
Méret: 100 négyzetméter
Azonosító: 11280255
Irodai azonosító: HZ078447-4289455
Telek: 979 négyzetméter
Ingatlan állapota: Átlagos
Jelleg: családi ház
Építőanyag: Tégla
Fűtés jellege: Villany
Fűtés módja: Villany
Kor: Új építésű
Szintek száma: Földszintes
Egész szobák: 4

Térkép


Így keressen családi házat négy egyszerű lépésben. Csupán 2 perc, kötelezettségek nélkül!

Szűkítse a családi házak
listáját
Válassza ki a megfelelő
családi házat
Írjon a hirdetőnek
Várjon a visszahívásra