Eladó családi ház Taktaharkány 26 910 000 Ft

Leírás

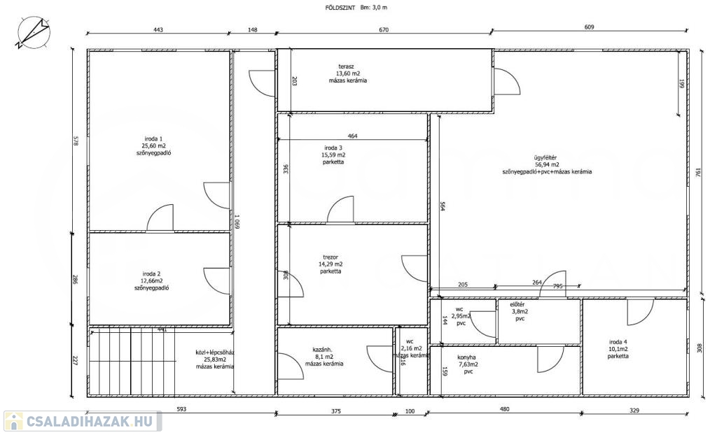
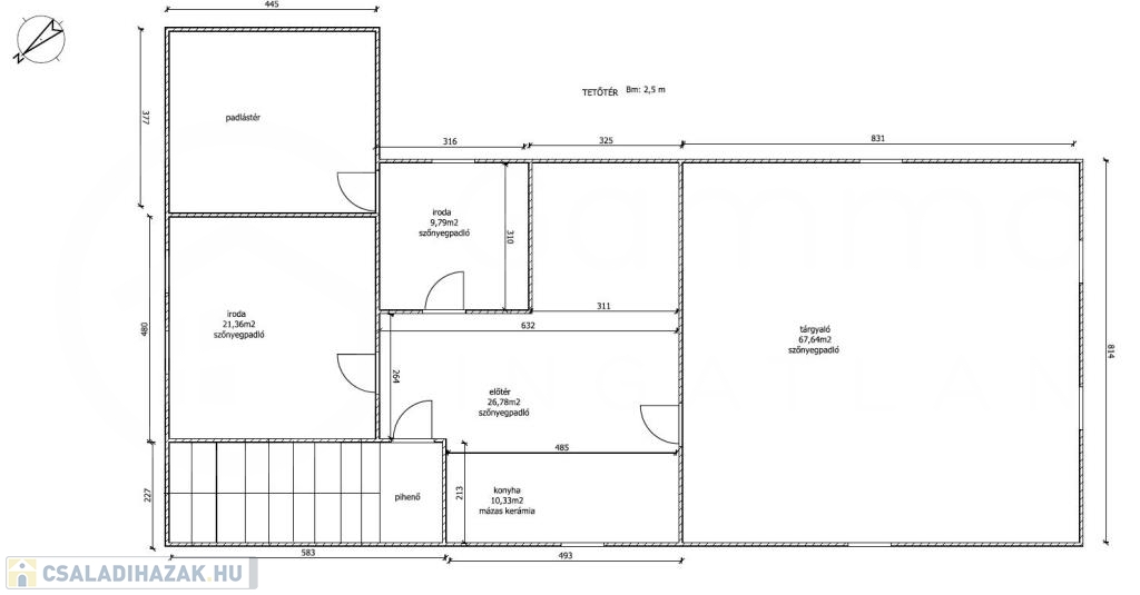
Miskolctól 25 km-re, Taktaharkányban 335.15 m²-esház, 417 m²-es telekkel!
Az ingatlan régebben irodaként volt hasznosítva, ennek megfelelően a földhivatali nyilvántartásban "kivett irodaház"-ként van nyilvántartva.
Ára: 26.910.000, -Ft+Áfa

Műszaki leírás:
1972-ben épült, 1992-ben a felépítmény ki lett bővitve és a tetőteret beépítették. Kialakítása földszint + tetőtér tagolódású, tégla és gázszilikát vegyes falazatú, vasbeton gerendás födém szerkezetű, összetett nyeregtetős, cserépfedéses épület. Homlokzata kőporos vakolattal ellátott. Homlokzati nyílászárói fa szerkezetű ablakok, hőszigetelt üvegezéssel, közepes műszaki állapotban. Fűtése gázkazánnal, radiátor hőleadókkal megoldott. Melegvíz-ellátását gázbojler biztosítja. A helyiségek padló burkolata mázas kerámia, padlószőnyeg, PVC és parketta, közepes műszaki állapotban.

Környezet:
Az ingatlan a település központjában, a Magtár utcában található.
Környezetében üzletek, valamint lakóházak találhatóak.

Közlekedés:
Aszfaltozott úton megközelíthető.
Tömegközlekedés buszmegálló és vasútállomás kb. 700 m.

Családi ház részletei

Ár: 26 910 000 Ft+ÁFA
Méret: 335 négyzetméter
Azonosító: 11359290
Irodai azonosító: 109656
Cím: Taktaharkány
Telek: 417 négyzetméter
Ingatlan állapota:
Jelleg: családi ház
Építőanyag: Kérdezzen rá a hirdetőtől »
Fűtés jellege: Cirkó
Egész szobák: 10

Egyéb jellemzők

  • Terasz

Így keressen családi házat négy egyszerű lépésben. Csupán 2 perc, kötelezettségek nélkül!

Szűkítse a családi házak
listáját
Válassza ki a megfelelő
családi házat
Írjon a hirdetőnek
Várjon a visszahívásra