Eladó családi ház Taksony 129 900 000 Ft

Leírás


Eladó új-építésű, garázson keresztül kapcsolódó ikerházak hőszivattyús fűtésrendszerrel Taksony központjában!

Mindegyik ingatlan 124,5 m2-es (+ fedett terasz 10 m2), nappali + 4 hálós, 2db fürdőszobás, gardrób helyiség, garázs (+21 m2)

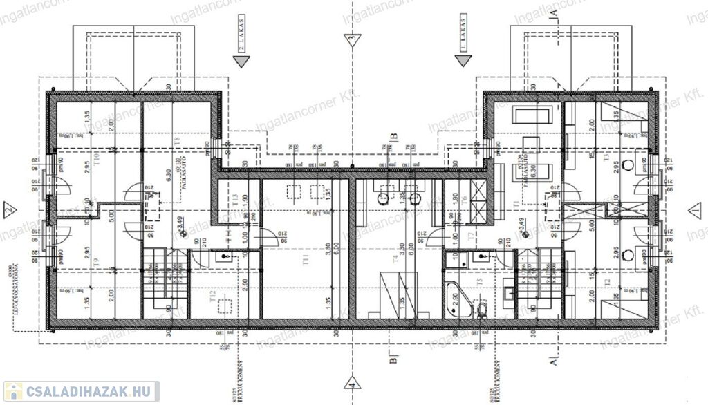
Földszint:

nappali 25,2 m2

szoba 10,8 m2

konyha 5,76 m2

étkező 8,64 m2

háztartási helyiség 8,7 m2

WC 1,8 m2

előtér 6,42 m2

garázs 21 m2

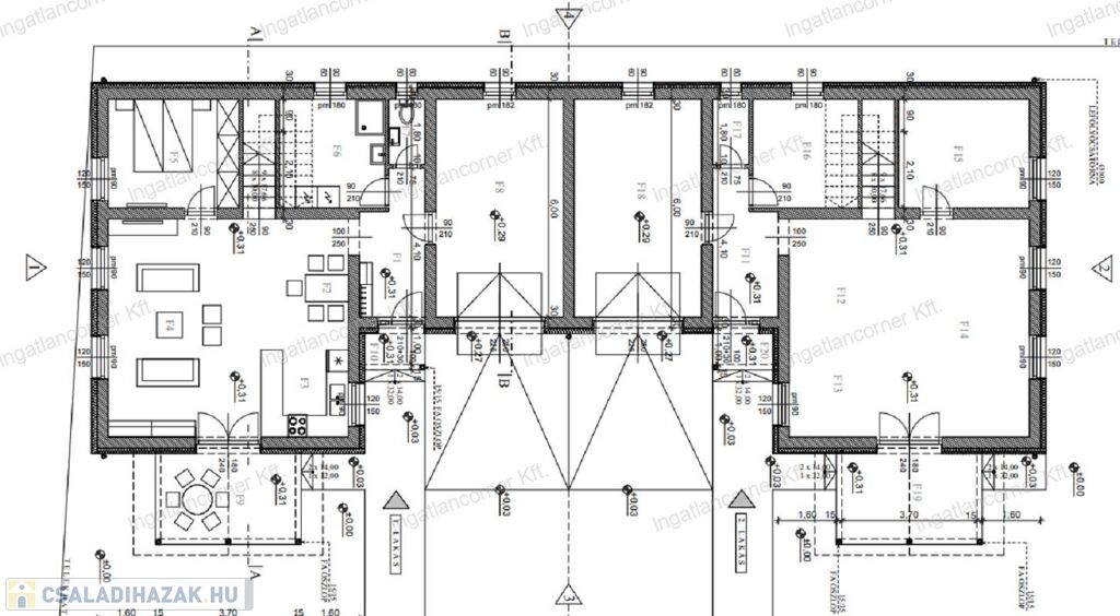
Emelet:

társalgó, előtér 14,35 m2

szoba 11,67 m2

szoba 11,67 m2

szoba 12,21 m2

fürdőszoba 4,65 m2

 gardrób

közlekedő 2,1 m2

 

Műszaki tartalom:

körítő falazat 30-N+F Leier tégla, válaszfalak 10-es Porotherm tégla

homlokzati szigetelés 15cm EPS hungarocell

hőszivattyúról működő padlófűtés (hűtésrendszer felár ellenében)

minden szobában klímakiállás

teljes közmű (víz, villany, csatorna)

öntött vasbeton monolit födém

betoncserép

épület körül járda, garázs előtt térkő

garázsajtó elektromos garázskapu

3-rétegű nyílászárók hő védőfóliával

50db elektromos kiállás

elektromos hálózat 3x32 Amper

meleg burkolat 5e Ft/m2, hideg burkolat 6e Ft/m2 (210cm magasságig a vizes helyiségekben)

szaniterek 450 000 Ft-ig (WC, csaptelepek, zuhanykabin, kád)

épített zuhany

rejtett redőnytok kialakítás (redőny felár ellenében)

riasztó előkészítés 7db kiállással Vevő igényei szerint elhelyezve

napelem alapszerelés felár ellenében

lehajtós padlásfeljáró

utcafronti kerítés betonalapon oszlopokkal, kovácsolt vas utánzat, telek elválasztó kerítés betonba ültetett zártszelvény, lemezkerítés beépítésre

kaputelefon alapszerelés

1db kerti csap

tereprendezés sitt és törmelék kitakarítása elegyengetve (kertépítés kérhető felár ellenében)

 

Telekhányadok telekmegosztási szerződéssel:

 

1-es lakás: 269 m2 telek, nettó lakótér 125 m2, nappali + 4 hálószoba, gardrób, terasz (+10 m2), garázs (+21 m2)

Ár: 114 900 000 Ft. (SZABAD)

 

2-es lakás: 493 m2 telek, nettó lakótér 125 m2, nappali + 4 hálószoba, gardrób, terasz (+10 m2), garázs (+21 m2)

Ár: 129 900 000 Ft. (SZABAD)

 

3-as lakás: 500 m2 telek, nettó lakótér 125 m2, nappali + 4 hálószoba, gardrób, terasz (+10 m2), garázs (+21 m2)

Ár: 129 900 000 Ft. (SZABAD)

 

4-es lakás: 555 m2 telek, nettó lakótér 125 m2, nappali + 4 hálószoba, gardrób, terasz (+10 m2), garázs (+21 m2)

Ár: 134 900 000 Ft. (SZABAD)

 

Az ingatlanok 10%-al foglalhatók, legalább 30% önerő szükséges!

Az ingatlanok várható átadása 2026 nyár vége!

 

Várom hívását, NE maradjon le róla!

 

Családi ház részletei

Ár: 129 900 000 Ft
Méret: 125 négyzetméter
Azonosító: 11580879
Irodai azonosító: 107004186
Telek: 493 négyzetméter
Ingatlan állapota: Kitűnő
Jelleg: ikerház
Építőanyag: Tégla
Komfort fokozat: Dupla komfort
Kor: Új építésű
Egész szobák: 5

Így keressen családi házat négy egyszerű lépésben. Csupán 2 perc, kötelezettségek nélkül!

Szűkítse a családi házak
listáját
Válassza ki a megfelelő
családi házat
Írjon a hirdetőnek
Várjon a visszahívásra