Eladó családi ház Taksony 115 000 000 Ft

Leírás

Referenciákkal rendelkező kivitelezőtől új építésű önálló ház Taksonyban eladó!
CSOK és további kedvezmények igényelhetők!Az ingatlan nyugodt, mégis frekventált környezetben található.
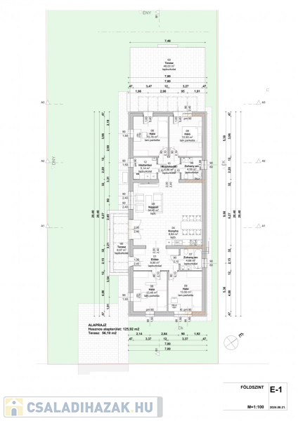
Nettó 126 nm-es lakóterületű, nappali, plusz  4 hálószobás, dupla fürdőszobás, földszintes családi ház 663 nm-es telekkel.
Műszaki tartalomról: 30-as PTH tégla+15cm dryvit szigetelés, műanyag nyílászárók, hőszivattyú, inverteres klíma, térkövezett kocsibeálló, stb.
Alakítsa szabadon, igénye szerint új otthonát, szakértők segítségével!
Telefonos egyeztetés alapján megtekinthető. Akciós ár:115.000.000 Ft
 

Családi ház részletei

Ár: 115 000 000 Ft
Méret: 126 négyzetméter
Azonosító: 11565712
Telek: 663 négyzetméter
Ingatlan állapota: Kitűnő
Jelleg: családi ház
Építőanyag: Kérdezzen rá a hirdetőtől »
Fűtés jellege: Egyéb
Egész szobák: 5

Egyéb jellemzők

  • Csatorna
  • Garázs
  • Kábel TV
  • Melléképület
  • Parketta
  • Pince
  • Terasz

Így keressen családi házat négy egyszerű lépésben. Csupán 2 perc, kötelezettségek nélkül!

Szűkítse a családi házak
listáját
Válassza ki a megfelelő
családi házat
Írjon a hirdetőnek
Várjon a visszahívásra