Eladó családi ház Szombathely 92 990 000 Ft

Leírás

Szombathely kedvelt kámoni városrészén, csendes átmenő forgalomtól mentes utcában akár két generáció együttélésére is alkalmas családi ház eladó. Az ingatlantlanban az elmúlt öt évben teljeskörű fellújítás történt. Műszakilag és esztétikailag is új köntöst kapott. A ház 160 m2 hasznos alapterületű kettő szinten, külön bejárattal, de belső lépcsővel összekötött. Az átalakítás során víz, lefolyórendszer,fűtés, villanyhálózat megújult. Beépítésre került 2 db Gree hűtő-fűtő klíma is. A villanyhálózata 3x16 Amper. Homlokzatára 15 cm vastag szigetelés került. Nyílászárói fokozottan hang-és hőszigeteltek, redőnyökkel felszereltek. Hideg-meleg burkolatok cseréje is megtörtént.Gondozott kertjében 18 m2-es fedett kiülő és 12 m2-es zárható tároló épült. Az udvaron fúrt kút található.
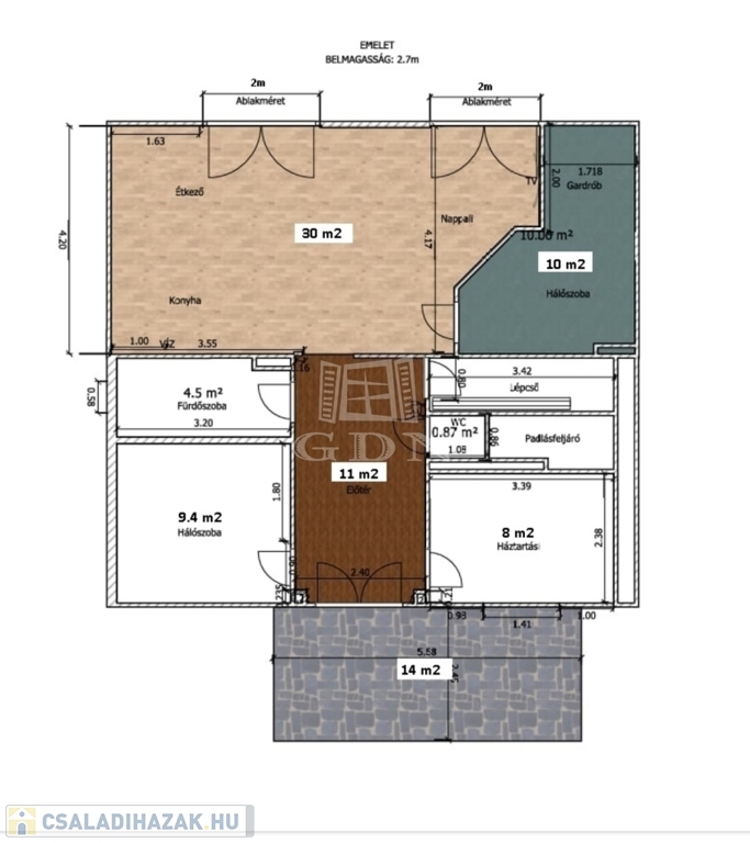
Felső szint helyiségei : - Hálószoba+ gardrób
- Gyerekszoba
- Nappali-étkező-konyha
- Háztartási helyiség ( padlásfeljáróval )
- Fürdő
- Wc
- Terasz (14 m2 )
Alsó szint ( szuterén ) - Nappali
- Konyha-étkező
-Társalgó
- Konditerem
- Tusoló
- Wc
- Télikert (10 m2 )
Lokáció szempontjából is remek választás, minden ami a kényelmes lakhatást bíztosítja , karnyújtásnyira van.
Bővebb tájékoztatásért, megtekintés céljából kérem keressen.

Családi ház részletei

Ár: 92 990 000 Ft
Méret: 160 négyzetméter
Azonosító: 11600576
Irodai azonosító: 392797
Cím: Kámon csendes utcájában
Telek: 438 négyzetméter
Ingatlan állapota: Felújított
Jelleg: ikerház
Építőanyag: Tégla
Fűtés jellege: Cirkó
Fűtés módja: Gáz
Komfort fokozat: Dupla komfort
Kor: 50 évesnél régebbi
Szintek száma: 1 szint
Egész szobák: 4

Egyéb jellemzők

  • Csatorna
  • Garázs
  • Pince
  • Terasz

Térkép


Így keressen családi házat négy egyszerű lépésben. Csupán 2 perc, kötelezettségek nélkül!

Szűkítse a családi házak
listáját
Válassza ki a megfelelő
családi házat
Írjon a hirdetőnek
Várjon a visszahívásra