Eladó családi ház Szombathely 113 000 000 Ft

Leírás

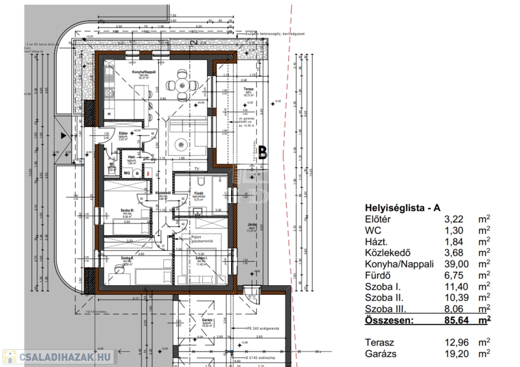
Szombathely dinamikusan fejlődő városrészén, az oladi dombon új építésű 86 m2-es ikerház eladó. A panorámás, csendes nyugodt környezetben, a jó elrendezésű ikerházak közös találkozási pontja csupán a garázsok fala. Magas műszaki tartalommal épült az ingatlan . Az épület teherhordó és válaszfalai Leier téglával kerültek kivitelezésre. Homlokzata 15 cm vastag EPS hőszigetelő rendszert kapott, a födémre 30 cm vastag szigetelés került. A tetőt Bramac cserép borítja. Műanyag nyílászárói fokozottan hang-és hőszigeteltek, alumínium redőnyökkel, szúnyoghálókkal felszereltek. Elektromos kialakítás: 1x32 Amper elektromos kapacitással + 1X32 Amper H tarifával. Fűtés és meleg vízellátás, a fűtést biztosító háztartási helyiségben elhelyezett 10 Kw Gree Versati 3 hőszivattyúval, padlófűtéses rendszerrel készült, szabályozható termosztáttal. A Gree Versati hőszivattyú biztosítja a meleg vizet is egy 200 literes hőtárolós víztartállyal. Nappalijában hűtő-fűtő klímát szereltek. A ház nagy részében neves belsőépítészeti stúdió által tervezett és kivitelezett bútorokat építettek be. Konyhája rendkívül praktikus, minőségi háztartási gépekkel felszerelt. A berendezés a vételár részét képezi. Ha jó hangulatú, szépen bebútorozott, átgondolt ingatlanra vágyik, megtalálta. További információért, megtekintés céljából keresse irodánkat. Vegye igénybe szolgáltatásainkat ! Ha hitelre, állami támogatásra van szüksége, abban is segítünk.

Családi ház részletei

Ár: 113 000 000 Ft
Méret: 86 négyzetméter
Azonosító: 11416534
Irodai azonosító: 372484
Cím: Az oladi dombon, csendes utcában
Telek: 346 négyzetméter
Ingatlan állapota: Átlagos
Jelleg: családi ház
Építőanyag: Tégla
Fűtés jellege: Geotermikus
Fűtés módja: Hőszivattyú
Komfort fokozat: Összkomfort
Kor: Új építésű
Szintek száma: Földszintes
Egész szobák: 4

Egyéb jellemzők

  • Csatorna
  • Garázs
  • Pince
  • Terasz

Térkép


Így keressen családi házat négy egyszerű lépésben. Csupán 2 perc, kötelezettségek nélkül!

Szűkítse a családi házak
listáját
Válassza ki a megfelelő
családi házat
Írjon a hirdetőnek
Várjon a visszahívásra