Eladó családi ház Szolnok 79 900 000 Ft

Leírás

A  szolnoki CasaNetWork ingatlaniroda megvételre kínál Szolnok-Szandaszőlősön új építésű, kedvező ár-érték arányú családi házat.

Energiatakarékos, környezettudatos otthon eladó a város egyik legkedveltebb kertvárosi részén!

AA++ energetikai besorolású, kívül-belül stílusos és modern, kulcsrakész ingatlant saját napelemes rendszerrel és akkupakkal, amely azonnal hasznosítja a megtermelt energiát.

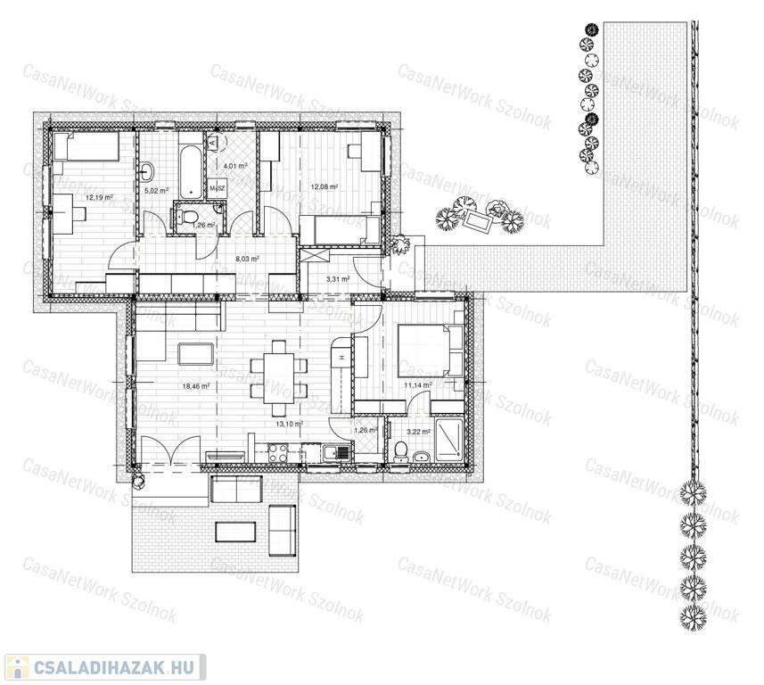
A családi ház 525 m2-es telken 100 m2 alapterületű és az optimális elrendezésnek köszönhetően az épületben

  • 1 nagyméretű nappali-konyha-ebédlő 
  • 3 hálószoba, 
  • 2 fürdőszoba
  • 1 különálló WC
  • 1 kamra
  • 1 háztartási helyiség került kialakításra.

A meghitt családi hangulatot a kissé elkülönülő, saját fürdőszobával rendelkező szülői lakrész teszi teljessé! Természetesen járda, kerítés és gépkocsibeálló is kialakításra kerül az ingatlanon.

Főbb műszaki paraméterek:

  • statikai tervek alapján
  • műhelyben legyártott fém fő-és segédtartó szerkezet
  • 10 cm-es bazaltgyapot és 15 cm-es grafitos polisztirol hőszigetelés
  • a tetőszerkezeten 15 cm-es PIR szigetelés
  • 3 rétegű műanyag nyílászárók
  • a vizes helyiségekben kerámia burkolatok
  • a szobákban laminált parketta

Gépészeti adatok:

  • az épület energiaellátását hibrid 7,5 kW-os napelemes rendszer biztosítja, melyhez egy 5 kW-os akkupakk tartozik
  • az épület eneregetikai besorolása A++
  • a fűtést és a hűtést wifi-s fűtőpanelek, valamint hűtő-fűtő klímaberendezés szolgáltatja
  • a vizes helyiségekbe ALFÖLDI Bázis szaniterekés Mofém csaptelep kerül

Lehetőség van megrendelni a Tudatos otthon rendszert:

Ebben az esetben az épület saját maga osztja el a megtermelt energiát teljesen autómatizáltan a megrendelő életritmusához igazodva. Épület dolgozik helyetted!
Kerítést kapukkal.
ezek megrendelése esetén egy 4 m x 6 m mobilgarázst adunk ajándékba.
Ennek a csomagnak az ára 13.000.000 Ft

Iskola, óvoda, bölcsöde kényelmes közelségben van, ahogy az orvosi rendelő, játszótér, park, bevásárlási lehetőségek is.

Az ingatlan tágas, igényesen kialakított, ideális otthont kínál azok számára, akik minőségi környezetben szeretnének élni, megfizethető áron.

Az építkezés 2025. év elején  kezdődött és a várható átadás 2025. szeptember.

Építés alatt áll,  de akár személyesen is megtekinthető! Abban a fázisban van az építkezés, hogy még a belső dizájnt saját ízlésre lehet szabni, burkolatot, szanitert és színeket!

Remek adottságokkal rendelkező, ideális otthon, kiváló közlekedés és infrastruktúra.

Ha szeretne egy igényes családi házat, amibe csak beköltöznie kell, akkor keressen bizalommal!

Az ingatlan CSOK pluszra és Zöld hitelre is alkalmas bármilyen korosztály részére, akik kényelmes életteret, családias környezetet keresnek.

 Amennyiben a fenti 15580616-os azonosító számú eladó családi ház, vagy bármely kínálatunkban található ingatlan felkeltette érdeklődését, kérem hívjon bizalommal!

/A hirdetésben szereplő információk a megbízótól kapott adatok alapján készültek./

Irodánk teljes körű szolgáltatással áll ügyfelei rendelkezésére: hitelügyintézés, ügyvédi szolgáltatás, ingatlan értékbecslés, energetikai tanúsítvány készítése.

CasaNetWork - Ingatlanban otthon vagyunk!

Családi ház részletei

Ár: 79 900 000 Ft
Méret: 100 négyzetméter
Azonosító: 11501345
Irodai azonosító: 155806106
Telek: 525 négyzetméter
Ingatlan állapota: Átlagos
Jelleg: családi ház
Építőanyag: Kérdezzen rá a hirdetőtől »
Fűtés jellege: Villany
Fűtés módja: Villany
Komfort fokozat: Dupla komfort
Egész szobák: 4

Így keressen családi házat négy egyszerű lépésben. Csupán 2 perc, kötelezettségek nélkül!

Szűkítse a családi házak
listáját
Válassza ki a megfelelő
családi házat
Írjon a hirdetőnek
Várjon a visszahívásra