Eladó családi ház Szolnok 58 000 000 Ft

Leírás

Szolnoki ingatlaniroda eladásra és kiadásra kínálja ezt
az ipari jellegű épületet Szolnokon, a Berzsenyi Dániel
utcában.


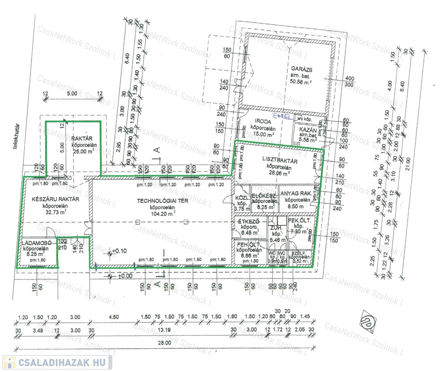
Az eladó szolnoki ingatlan jellemzői:



1270 m2 területű sarki telek




a
földszint alapterülete 317 m2




a földszinten az ipari rész bérlő használatában
van




az ingatlan emeletén egy két szobás lakrész is
kialakításra került külön gázórával, konyhával és
fürdőszobával, mely szintén bérlő használatában van




a földszinten 75 %-os készültségi fokon egy 50
m2-es lakás kialakítása van folyamatban




a telekre két nagykapun biztosított a bejutás




az épület utcafrontján elektromos garázskapu segíti a
pakolást




a legnagyobb egybefüggő helyisége 104,20
m2




központi fűtés van gázkazánnal




eredetileg pékségként üzemelt




ajánlom raktározásra és bármilyen szolgáltató
tevékenységhez




további beruházással, akár több lakásos társasház is
kialakítható



Amennyiben felkeltettem érdeklődését kérem keressen bizalommal.


CasaNetWork--Ingatlanban otthon vagyunk!

Családi ház részletei

Ár: 58 000 000 Ft
Méret: 317 négyzetméter
Azonosító: 9290495
Irodai azonosító: 155801479
Telek: 1270 négyzetméter
Ingatlan állapota:
Jelleg: családi ház
Építőanyag: Tégla
Fűtés jellege: Cirkó
Egész szobák: 6

Így keressen családi házat négy egyszerű lépésben. Csupán 2 perc, kötelezettségek nélkül!

Szűkítse a családi házak
listáját
Válassza ki a megfelelő
családi házat
Írjon a hirdetőnek
Várjon a visszahívásra