Eladó családi ház Szolnok 49 500 000 Ft

Leírás

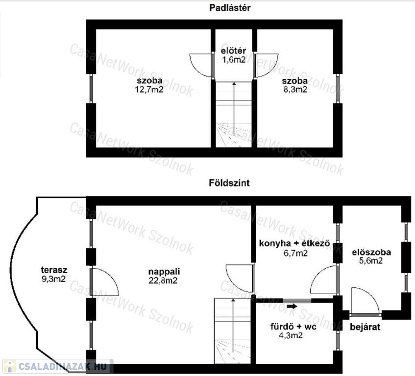
A szolnoki CasaNetWork Ingatlaniroda megvételre kínál Szolnokon egy 2 + 1 fél szobás nyaralót 250m2-es telekkel.

Szolnoki nyaraló jellemzői:

  • hasznos alapterülete bruttó 62 m2 , telek mérete: 250 m2
  • Szolnok kedvelt üdülő területén, csendes, ligetes környezetben, a Holt-Tisza partjától 240m-re, a hamarosan megépülő Welnes-Hotel közelében található
  • rendezett, parkosított kert, nagy árnyékot adó fákkal
  • könnyű szerkezetű, 2 szintes, belső lépcsővel rendelkezik 
  • radiátoros fűtés és használati meleg víz ellátásról kombi gázkazán gondoskodik
  • 2010-ben felújítás 8cm hőszigetelés
  • műanyag nyílászárók redőnnyel, szúnyoghálóval
  • lakóépületként is használható
  • dekoratív nagy méretű 9,3m2 terasz
  • udvarban kerti tároló, szaletli, tűzrakó hely
  • közelben bolt, buszmegálló
  • az M4-es autóúttól mindössze 6km-re található, Budapesttől 1óra autóval

ELADÓ NYARALÓ SZOLNOKON, ALCSI-HOLT-TISZÁNÁL!

Amennyiben a fenti 155805829-es azonosító számú eladó nyaraló, vagy bármely kínálatunkban található ingatlan felkeltette érdeklődését, kérem hívjon bizalommal!

/A hirdetésben szereplő információk a megbízótól kapott adatok alapján készültek./

Irodánk teljes körű szolgáltatással áll ügyfelei rendelkezésére: hitelügyintézés, ügyvédi szolgáltatás, ingatlan értékbecslés, energetikai tanúsítvány készítése.

CasaNetWork - Ingatlanban otthon vagyunk!

Családi ház részletei

Ár: 49 500 000 Ft
Méret: 62 négyzetméter
Azonosító: 11415603
Irodai azonosító: 155805829
Telek: 250 négyzetméter
Ingatlan állapota: Átlagos
Jelleg: családi ház
Építőanyag: Könnyűszerkezetes
Fűtés jellege: Cirkó
Fűtés módja: Gáz
Komfort fokozat: Összkomfort
Egész szobák: 2
Fél szobák: 1

Így keressen családi házat négy egyszerű lépésben. Csupán 2 perc, kötelezettségek nélkül!

Szűkítse a családi házak
listáját
Válassza ki a megfelelő
családi házat
Írjon a hirdetőnek
Várjon a visszahívásra