Eladó családi ház Szolnok 259 000 000 Ft

Leírás

KÜLÖNLEGES AJÁNLAT a szolnoki CasaNetWork Ingatlaniroda kínálatában! 

Ha egy igazán
harmonikus, minden részletében átgondolt családi otthont keres
Szolnok legelőkelőbb városrészében, akkor ez a ház Önre vár. 

A 2019-ben, egyedi tervek alapján épült mediterrán stílusú
családi ház
a Rózsadomb csendes utcájában
található, 218 m²-es lakótérrel és 1170
m²-es parkosított telekkel
.

Egy modern,
energiatakarékos, mégis meleg hangulatú otthon, ahol a praktikum
és az elegancia kéz a kézben jár.
A tágas, napfényes
amerikai konyhás nappali és étkező a ház
központi tere: itt találkozik a család, és itt
zajlanak a közös pillanatok.


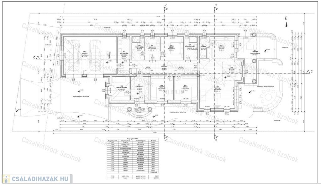
A házban négy
hálószoba
, két fürdőszoba és egy
külön gardrób kapott helyet, így a kényelmes
élettér nagyobb család számára is biztosított.

A belső
terek letisztultak, klasszikus stílusban berendezettek – a
természetes anyagok és a világos színek nyugalmat és harmóniát
sugároznak.

A nappaliból kilépve
a 25 m²-es fedett terasz és a gondozott,
parkosított kert
vár, ahol medence, kerti sütögető
és kosárpálya teszi teljessé a családi
életet.

A 47 m²-es, duplaállásos garázs
műgyantás padlóval és elektromos autó-töltési
lehetőséggel
rendelkezik.

A ház műszaki
tartalma a modern kényelmet szolgálja:
* hőszivattyús
fűtés-hűtés
mennyezeti és padló rendszeren,
helyiségenként szabályozható hőmérséklettel
* 10 kW-os
napelemrendszer
szaldós elszámolással, mely az egész éves
energiafogyasztást fedezi
* 20 cm
külső hőszigetelés
, 40 cm ásványgyapot tetőszigetelés,
fa nyílászárók két rétegű, melegperemes üvegezéssel
* automata
zsaluzia rendszer
, automatikus kert- és kültéri
világítás
* 2 zónás
riasztórendszer
, 10 kamerás biztonsági
megfigyelés, távfelügyelettel

Ez az ingatlan
tökéletes választás azoknak, akik egy nyugodt,
biztonságos környezetben
szeretnének élni, modern
technológiák által támogatott, energiatakarékos otthonban
,
ahol a minőség, a funkcionalitás és a természetközeli nyugalom tökéletes harmóniában találkozik. Egy ház, ahol minden
részlet a család kényelmét és a gondtalan mindennapokat
szolgálja – igazi otthon a Rózsadomb szívében.

Amennyiben ez az eladó szolnoki exluzív családi ház felkeltette érdeklődését, kérem hívjon bizalommal és tekintse meg, nem fog csalódni!

/A hirdetésben szereplő információk a megbízótól kapott adatok alapján készültek./

Irodánk teljes körű szolgáltatással áll ügyfelei rendelkezésére: hitelügyintézés, ügyvédi szolgáltatás, ingatlan értékbecslés, energetikai tanúsítvány készítése.

CasaNetWork - Ingatlanban otthon vagyunk!

Családi ház részletei

Ár: 259 000 000 Ft
Méret: 218 négyzetméter
Azonosító: 11586023
Irodai azonosító: 155806439
Telek: 1170 négyzetméter
Ingatlan állapota: Kitűnő
Jelleg: családi ház
Építőanyag: Tégla
Komfort fokozat: Összkomfort
Bútorozott: Részben bútorozott
Egész szobák: 5

Így keressen családi házat négy egyszerű lépésben. Csupán 2 perc, kötelezettségek nélkül!

Szűkítse a családi házak
listáját
Válassza ki a megfelelő
családi házat
Írjon a hirdetőnek
Várjon a visszahívásra