Eladó családi ház Szolnok 119 000 000 Ft

Leírás

KÜLÖNLEGES AJÁNLAT a szolnoki CasaNetWork Ingatlaniroda kínálatában! 

Eladásra kínálunk egy elegáns, 5 szobás, duplakomfortos családi házat Szolnok reprezentatív városrészében, a Tabánban. 

Szolnok legrégibb városrésze az évek folytán a mai igényeknek megfelelő családi házakkal épült be, de a zegzugos utcák hangulata még ma is ott él. Különleges hangulata miatt a szolnoki Művésztelep festőinek mindig kedvelt témája volt a Tabán. 

A minőségi alapanyagokból épült családi ház helyiségei három szinten helyezkednek el, továbbá egy kényelmes méretű erkély, és egy nagy terasz biztosítja a felhőtlen pihenést a család számára, a természet közvetlen közelében, a festői Zagyva-parti sétány mellett.

A családi ház további jellemzői: 

- 1996-ban épült, beton alapra téglából, egyedi építészeti tervek alapján

- egy 228 m2-es telken helyezkedik el, a lakótér hasznos alapterülete összesen 220 m2

- rendelkezésre álló helyiségek: 
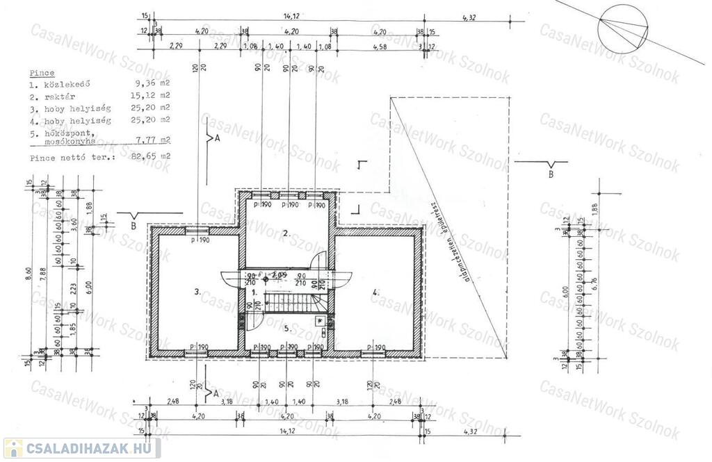
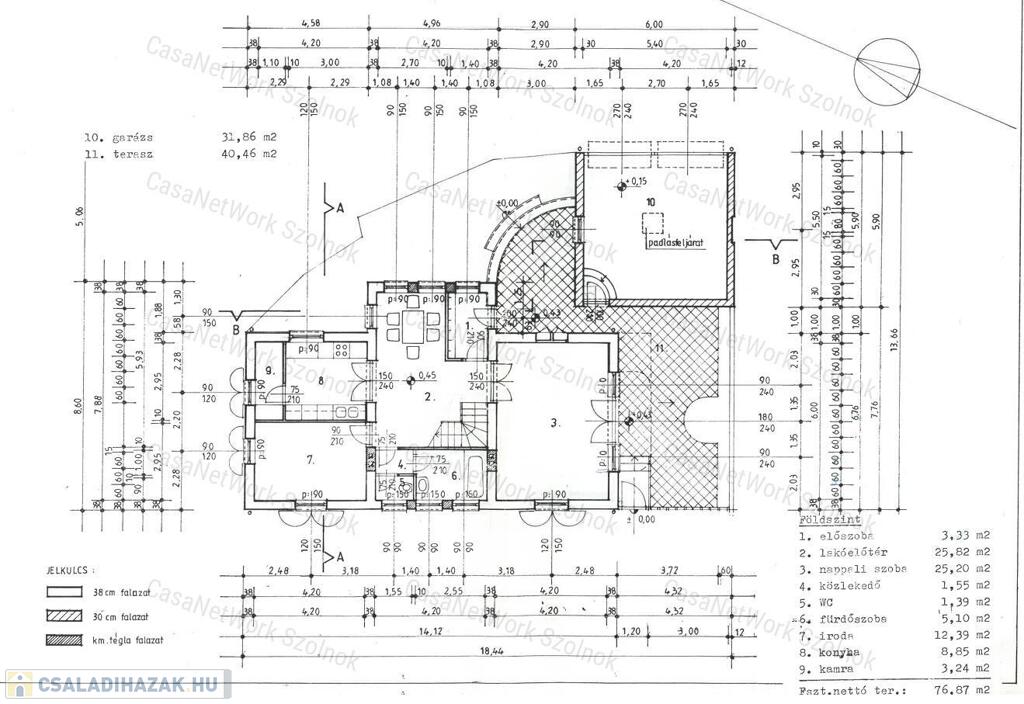
   * földszint (76,87 m2): előtér, nappali, közlekedő, étkező, konyha, dolgozószoba, kádas fürdőszoba/WC
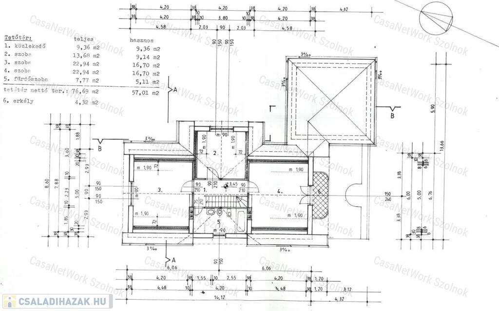
   * emelet (57,01 m2): közlekedő, 3 külön nyíló hálószoba, zuhanyzós fürdőszoba/WC 
   * pince szint (82,65 m2): közlekedő, kondi szoba, kazánház/mosókonyha, kamra, tároló helyiség

- az emeleten lévő hálószobából 4,5 m2 nagyságú erkély nyílik, a földszinten lévő nappaliból pedig egy 40,5 m2 nagyságú terasz

- a házhoz 32 m2 nagyságú dupla garázs tartozik  

- a szobák faparkettával, a többi helyiség padlója járólappal van burkolva

- a fűtésről a kazánházban elhelyezett gázkazán gondoskodik radiátorokkal

- a nyílászárók hang- és hőszigetelt fa típusúak, az erkélyre és a teraszra nyílók elektromos redőnnyel vannak felszerelve, a földszinten pedig speciális, belülről is nyitható spaletták árnyékolnak, illetve teszik hangulatossá a külső homlokzatot

Az eladásra kínált otthon Szolnok különleges hangulatú, csendes utcájában, kiváló lakókörnyezetben helyezkedik el, a természet ölelésében. Jó szívvel ajánlom több gyermekkel megáldott családoknak, hiszen a komfortosan kialakított tereknek köszönhetően minden családtag számára biztosított az intim szféra. A Tabán pár perces séta távolságra van Szolnok központi részétől, több óvoda, bölcsőde, iskola kényelmes közelségben található, ahogy orvosi rendelők, játszóterek, parkok, bevásárlási lehetőségek is. 

Amennyiben ez a különleges környezetben lévő családi ház felkeltette érdeklődését, kérem, hívjon bizalommal, és tekintse meg! Nem fog csalódni!

/A hirdetésben szereplő információk a megbízótól kapott adatok alapján készültek./

Irodánk teljeskörű szolgáltatással áll ügyfelei rendelkezésére: hitelügyintézés, ügyvédi szolgáltatás, ingatlan értékbecslés, energetikai tanúsítvány készítése.

Kollégáim díjmentes, banksemleges hitelügyintézéssel állnak rendelkezésére. 

CasaNetWork - Ingatlanban otthon vagyunk!

Családi ház részletei

Ár: 119 000 000 Ft
Méret: 220 négyzetméter
Azonosító: 11578272
Irodai azonosító: 155805919
Telek: 228 négyzetméter
Ingatlan állapota:
Jelleg: családi ház
Építőanyag: Tégla
Fűtés jellege: Cirkó
Fűtés módja: Gáz
Komfort fokozat: Összkomfort
Bútorozott: Részben bútorozott
Egész szobák: 5

Így keressen családi házat négy egyszerű lépésben. Csupán 2 perc, kötelezettségek nélkül!

Szűkítse a családi házak
listáját
Válassza ki a megfelelő
családi házat
Írjon a hirdetőnek
Várjon a visszahívásra