Eladó családi ház Szigetszentmiklós 89 400 000 Ft

Leírás


 

Természetközeli nyugalom, városi kényelemmel – különleges lehetőség Szigetszentmiklós szívében!



Eladó egy egyedi hangulatú, kivételes elhelyezkedésű otthon Szigetszentmiklós központi, mégis rendkívül csendes részén – ahol a természet és a város harmóniája valóban kézzel fogható.

Zöld övezet egy homokdomb ölelésében



Az ingatlan egyik legnagyobb különlegessége a telek nyugati oldalán magasodó 9 méteres, fákkal borított homokdomb, amely nemcsak szélvédelmet biztosít, de olyan érzést kelt, mintha egy erdei tisztáson élnénk – miközben csak pár percre van a buszmegálló (100 m), a HÉV és a távolsági busz is (900 m)!

Otthon, ami együtt él veled



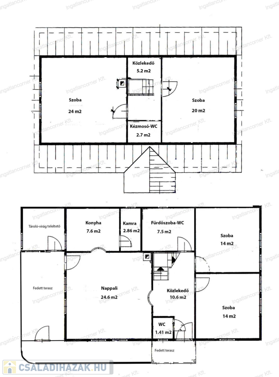
A minősített könnyűszerkezetes ház (ráckevei gyorslakóház) praktikus elrendezésű:

•A tetőtér bővíthető, az egyik szoba már 90%-ban elkészült, a másik jelenleg tárolóként funkcionál.

•A földszinti lakótér könnyen átalakítható, ha több élettérre van szükség.

•A hangulatos kandallókályha nemcsak melegséget, hanem karaktert is ad a nappalinak – a központi fűtés mellett és helyett is tökéletes választás.



Extra helyek – extra lehetőségek

•Fedett, 14 m²-es terasz a reggeli kávézásokhoz vagy esti beszélgetésekhez

•Szigetelt, 9 m²-es tárolóhelyiség – élelmiszernek, fagyasztónak vagy akár a kedvenc növényeidnek

•Két férőhelyes garázs (kocsibeálló) + 7 m²-es szerszámtároló és 9 m²-es műhely – ha szeretsz barkácsolni, itt kiteljesedhetsz

•Kamerarendszer, riasztó, videó kaputelefon, automata kapu – a biztonság már adott

Élhető tér, zöld jövő

•Déli tájolású, nagy tetőfelület – ideális napelemhez vagy napkollektorhoz

•Fúrt kút és becsövezett öntözőrendszer – kertészkedni öröm

•Konyhakert, gyümölcsfák, akár kerti tó is kialakítható – a természet valóban a tiéd lehet



Modern világ, vidéki nyugalom

•Telekom és One optikai internet bevezetve – akár home office-ra is ideális

•Szabadidőpark és a Kis-Duna mindössze 600 méterre – ha a természetet nem csak nézni, hanem élni is szeretnéd

Energetikai besorolás: D – Azonnal költözhető.

________________________________________

Ez az ingatlan nem egy átlagos ház – ez egy életérzés, ahol reggel madárcsicsergésre ébredsz, délután a gyümölcsfák árnyékában pihensz, és este a kandalló fénye mellett mesélhetsz a napodról.

Családi ház részletei

Ár: 89 400 000 Ft
Méret: 159 négyzetméter
Azonosító: 11551002
Irodai azonosító: 107004069
Telek: 1347 négyzetméter
Ingatlan állapota:
Jelleg: családi ház
Építőanyag: Könnyűszerkezetes
Fűtés jellege: Konvektoros
Komfort fokozat: Összkomfort
Egész szobák: 4
Fél szobák: 1

Így keressen családi házat négy egyszerű lépésben. Csupán 2 perc, kötelezettségek nélkül!

Szűkítse a családi házak
listáját
Válassza ki a megfelelő
családi házat
Írjon a hirdetőnek
Várjon a visszahívásra