Eladó családi ház Szigetszentmiklós 165 000 000 Ft

Leírás


SZIGETSZENTMIKLÓSON, a Soroksári – Duna-ágnál, ELADÓ egy 166 m2 –es alapterületű + 70 m2 Terasszal rendelkező ÖNÁLLÓ, ÚJ-ÉPÍTÉSŰ családi ház, mart-aszfaltos utcáról nyíló 650m2-es TELKEN!!



A ház LUXUS kivitelezésű, 70 m2-es TERASSZAL, NAGY MÉRETŰ NYÍLÁSZÁRÓKKAL, DUPLA GARÁZZSAL ELLÁTOTT.



Igazi RITKASÁG az új építésű ingatlan piacon!



Fűtése HŐSZIVATTYÚVAL és PADLÓFŰTÉSSEL

Hűtése 5,2 KW-os TELJESÍTMÉNYŰ LÉGKONDICIONÁLÓVAL.



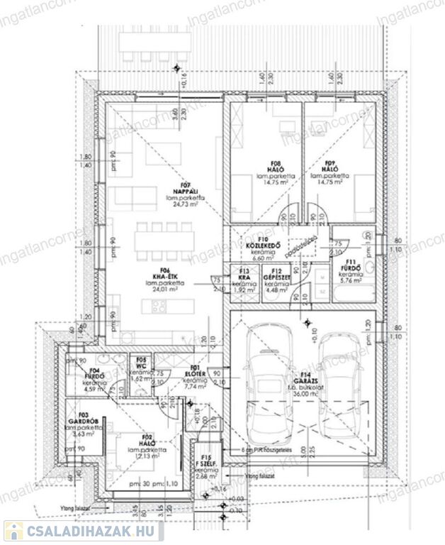
Helyiségei:

- Három hálószoba (14,75m2+14,75m2+12,13m2)

- Nappali (24,73m2)

- Konyha- Étkező (24,01m2)

- Fürdő (5,76m2+4,59m2)

- WC (1,62m2)

- Gardrób (3,63m2)

- Közlekedő (6,60m2)

- Előtér (7,74m2)

- Kamra (1,92m2)

- Gépészet (4,48m2)

- Garázs (36m2)

- Hátsó terasz (70m2)

- Fedett első terasz (2,7m2)



ALAPÁRAS TÉTELEK:

- Porotherm tégla

- emelt belmagasság

- levegő-víz hőszivattyús fűtés

- Teljes padlófűtés az egész épületben, zuhanyzókban és garázsban is.

- kiegészítő dryvit hőszigetelés

- cellulóz födémszigetelés

- VEKA nyílászárók 3 réteg üvegezéssel

- üveg biztonsági bejárati ajtó

- nagyméretű padló ablakok

- AA energetikai besorolás

- hideg burkolatok bruttó 6500.- Ft/m2-ig választható

- szaniterek, szerelvényekkel 550.000.- Ft-ig választható

- térkövezett járdák, közlekedők

- díszkövezett, murvázott szegélyek

- bővített 3 fázisú földkábeles villany

- rejtett geberit szerkezetes fali wc-k

- napelem kiállások és előkészítés opcionális

- rejtett, elektromos alumínium, színezett redőnyök rovarhálóval opcionális

- épített zuhanyzó

- extra kivitelezésű fürdőszobák

- külső-belső antracit színezett nyílászárók (opcionálisan színezett)

- 3,6 méter emelő – toló nyílászáró opcionális

- szigetes, gipszkartonos álmennyezetek rejtett ledvilágítással

- 10 m2 terasz WPC burkolattal

- épített médiafal rejtett világítással és látványkandallóval opcionális

- épített, színezett kerítés 4 oldalon opcionális

- automatizált tolókapu és kertkapu opcionális

- térkövezett, dupla szélességű kocsibeálló

- extra villanykiállások



PLUSZ OPCIONÁLIS TÉTELEK:

- fain-coil mennyezet hűtés-fűtés

- 5,2 kW-os teljesítményű légkondicionáló

- hővisszanyerős szellőző rendszer

- okos otthon előkészítés, kiépítése

- központi vízlágyítás

- elszívók konyhában és fürdőben, wc-ben

- konyha stúdió kiépítése

- 120 x 120 cm-es exkluzív óriás burkolólapok

- egyedi beltéri ajtók, savmart, üvegezéssel, CPL ajtók

- 70 m2 bioklimatikus automatizált Pergola rendszer antracit színben, fehér lamellákkal

- teraszba süllyesztett medence, hőszavattyús fűtéssel, teraszbővítéssel

- automata öntözőrendszer aknával, fúrt kúttal

- kertépítés, füvesítés





Az épület jelenlegi állapotának köszönhetően még bárhogyan alakítható a belsőtér a Vevő kérésére!

Ajánlatként a képekhez feltöltöttünk 3 valamint 4 hálószobás verzióban elkészített alaprajzot is!



BERUHÁZÓ SZÁMTALAN REFERENCIÁVAL rendelkezik, jelenleg több helyszínen futó építkezéssel! Leinformálható kivitelező Cég!



Az ingatlan 2027-ben lesz átadható!!



További bővebb információkért forduljon hozzám bizalommal!

Ha nem tudom fogadni hívását, visszahívom.

Cégünk ingyenes hitel ügyintézést biztosít a megvásárláshoz.

Családi ház részletei

Ár: 165 000 000 Ft
Méret: 166 négyzetméter
Azonosító: 11613207
Irodai azonosító: 107003824
Telek: 650 négyzetméter
Ingatlan állapota: Kitűnő
Jelleg: családi ház
Építőanyag: Tégla
Komfort fokozat: Dupla komfort
Kor: Új építésű
Egész szobák: 4
Fél szobák: 1

Így keressen családi házat négy egyszerű lépésben. Csupán 2 perc, kötelezettségek nélkül!

Szűkítse a családi házak
listáját
Válassza ki a megfelelő
családi házat
Írjon a hirdetőnek
Várjon a visszahívásra