Eladó családi ház Szigetszentmiklós 129 000 000 Ft

Leírás

Szigetszentmiklós közkedvelt részén, rendezett családi házas övezetben, zsákutcában épülő az M0 autóút mindössze néhány perces elérésével eladó három darab magas műszaki tartalommal épülő, 137 m²-es, önálló családi ház, 700 m²-es, teljesen körbekerített telekkel.
A környék csendes, kulturált, nem Bucka része — ideális választás azoknak, akik nyugalmat szeretnének, de fontos számukra a gyors és kényelmes közlekedés Budapest irányába.
Minőségi szerkezet és korszerű építési megoldások
A ház stabil, 30 cm-es Porotherm téglafallal és 15 cm hőszigeteléssel készül, amelyhez modern, 3 rétegű műanyag nyílászárók, redőnyök, szúnyoghálók és párkányok tartoznak.
A fa födém 30 cm szigetelést kap, a tetőn betoncserép biztosít tartósságot és esztétikus megjelenést.
Energiatakarékos, jövőbe mutató gépészet
• Hőszivattyús padlófűtés a teljes házban
• Energiatakarékos villanybojler a meleg vízhez
• Klímaberendezés a kellemes hőérzetért
• Riasztórendszer előkészítéssel az extra biztonságért
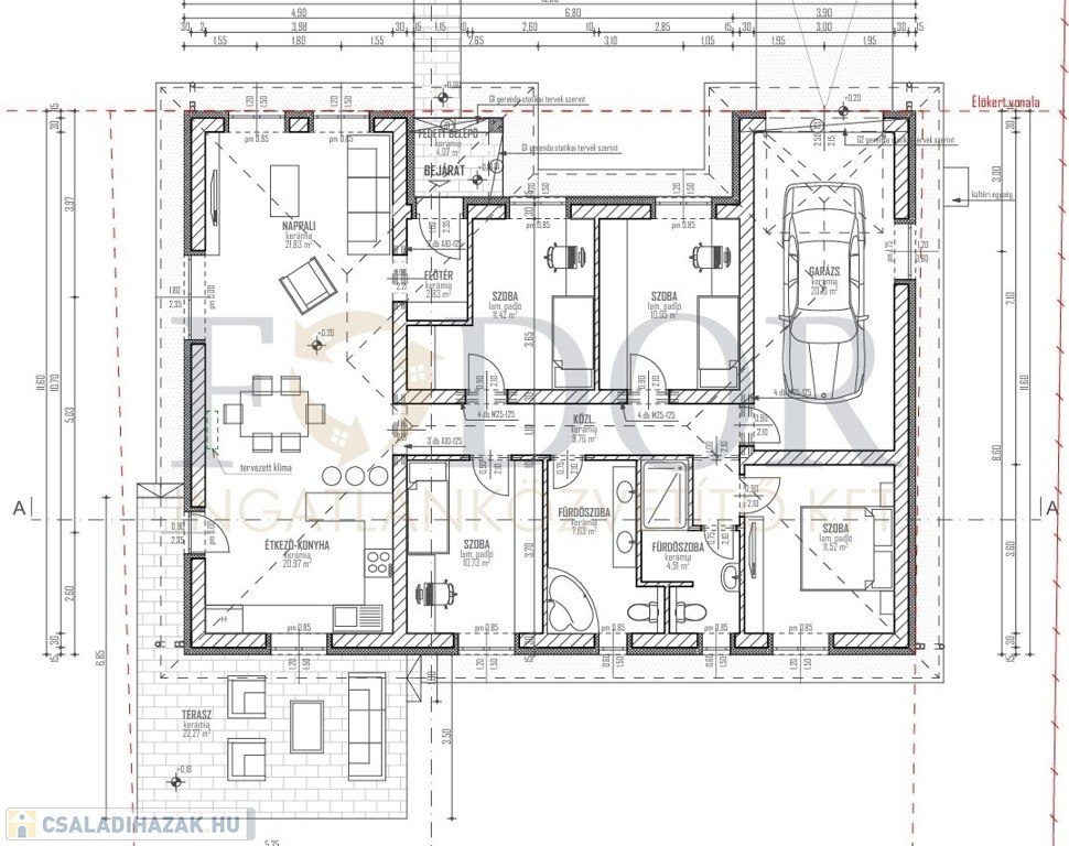
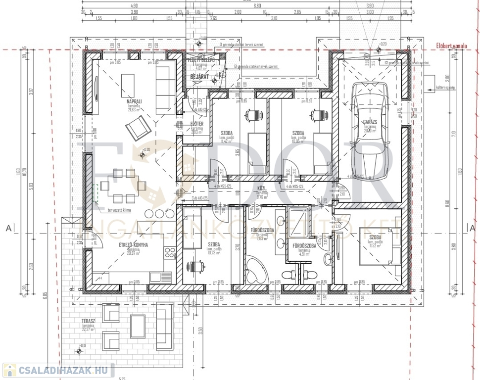
Átgondolt alaprajz – tágas terek, kényelmes otthon
A 137 m²-es ház amerikai konyhás nappalival, négy külön nyíló hálószobával és két fürdőszobával készül, így kiválóan alkalmas nagyobb családok számára is.
A gépkocsit saját garázs várja, elektromos kapuval.
Az ár tartalmazza a következő extrákat is:
• elektromos garázskapu és nagykapu
• kaputelefon
• hidegburkolat választható 10 000 Ft/m² értékben
• melegburkolat választható 6 000 Ft/m² értékben
• térkövezett járda és parkoló a garázs előtt
Jogilag rendezett, céges kivitelezéssel
Ár: Az ingatlan ára 129 MFt
A leírás és az alaprajz kizárólag tájékoztató jelleggel készült
IRODÁNK INGYENES HITELÜGYINTÉZÉSSEL, TANÁCSADÁSSAL, SZÁMOS BANK
AJÁNLATÁVAL, OTTHON START HITELLEL ÉS ÚJ CSOK PLUSZ FOLYÓSÍTÁSÁVAL VÁRJA ÜGYFELEIT.
Az ár kulcsrakész állapotra vonatkozik.
Tervezett átadás: 2025 II. negyedév.

Családi ház részletei

Ár: 129 000 000 Ft
Méret: 137 négyzetméter
Azonosító: 11581409
Irodai azonosító: 345806
Telek: 700 négyzetméter
Ingatlan állapota: Kitűnő
Jelleg: családi ház
Építőanyag: Tégla
Komfort fokozat: Dupla komfort
Kor: Új építésű
Egész szobák: 5

Egyéb jellemzők

  • Garázs
  • Terasz

Így keressen családi házat négy egyszerű lépésben. Csupán 2 perc, kötelezettségek nélkül!

Szűkítse a családi házak
listáját
Válassza ki a megfelelő
családi házat
Írjon a hirdetőnek
Várjon a visszahívásra