Eladó családi ház Szigethalom 129 999 000 Ft

Leírás

Kezdhetném azzal, hogy Szigethalmon nyugodt kertvárosi
környezetben panorámás kilátással, szeretném a figyelmébe ajánlani ezt az 5 szobás két szintes mediterrán stílusú családi házat.

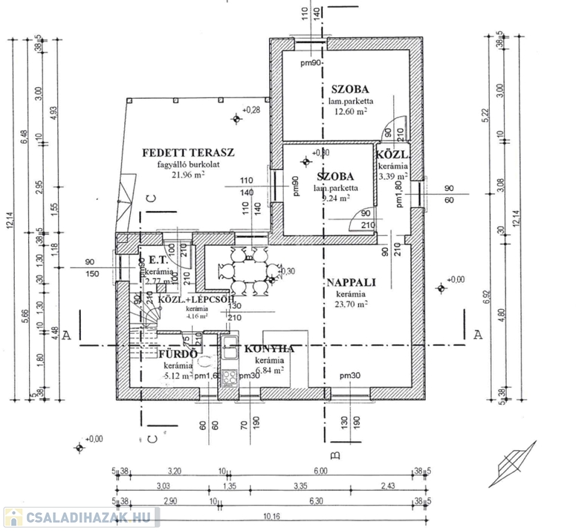
Leírhatnám, hogy az ingatlan 634 nm es összközműves telken,
135 nm alapterületű, 2015-ben épült beton sávalapra 38-as Phorotherm téglából, 15 cm homlokzati szigeteléssel, beton födémmel, betoncserép tetővel.
Az otthon melegét WOLF turbó gázkazán biztosítja padlófűtéssel és radiátoros hőleadókkal, a nyílászárók műanyag szerkezetűek az alsó szinten 2, a felső szinten 3 rétegű thermo üvegezettek szúnyoghálóval szereltek.
A kellemes hőmérsékletről a nyári melegben két klíma, télen a meghitt hangulatról a nappaliban elhelyezett fa tüzelésű kandalló gondoskodik.
Azt, hogy egy fárasztó nap után az emeleti fürdőszobában egy pohár borral a páratlan kilátás mindenért kárpótol!
A kert páratlan, dupla fedett gk tároló vár, melyet automatizált kapun keresztül tudunk megközelíteni.
De nem teszem mert, ez mind kiderül a hirdetésben feltöltött képekből!

Amit leírni nem lehet az amit nem lát, az OTTHON!
Otthon az ahova este valaki hazavár, ahol nem csak alszol, hanem pihensz, kipihened magad. Ahol összejöhet az egész család a hatalmas fedett teraszon, az otthonos nappaliban!
Ahol ez mind megvan az az OTTHON!
Ezt az érzést, csak akkor tudom megmutatni Önnek, ha SZEMÉLYESEN TALÁLKOZUNK.

Jöjjön el nézze meg, garantálom, hogy bele szeret!

Várom megtisztelő hívását!


FINANSZÍROZÁS:
Nálunk mindent egy helyen intézhet:
- hivatalos ingatlanközvetítés;
- szakszerű jogi képviselet;
- profi CSOK-PLUSZ, és hitelügyintézés: 16 Bank, több mint 100 konstrukció;

A részletes adatvédelmi tájékoztató folyamatosan elérhető a gdn adatvédelmi oldalán.

Családi ház részletei

Ár: 129 999 000 Ft
Méret: 135 négyzetméter
Azonosító: 11568696
Irodai azonosító: 387847
Cím: Pest megye
Telek: 634 négyzetméter
Ingatlan állapota: Kitűnő
Jelleg: családi ház
Építőanyag: Tégla
Fűtés jellege: Cirkó
Fűtés módja: Gáz
Komfort fokozat: Dupla komfort
Kor: 21-50 éves
Szintek száma: 1 szint
Egész szobák: 5

Egyéb jellemzők

  • Csatorna
  • Garázs
  • Pince
  • Terasz

Térkép


Így keressen családi házat négy egyszerű lépésben. Csupán 2 perc, kötelezettségek nélkül!

Szűkítse a családi házak
listáját
Válassza ki a megfelelő
családi házat
Írjon a hirdetőnek
Várjon a visszahívásra