Eladó családi ház Szigethalom 114 900 000 Ft

Leírás


Szigethalom központjában, egy csendes, rendezett utcában, ÚJSZERŰ, TÁROLÓ-KAPCSOLATOS, OKOS OTTHON CSOMAGGAL ELLÁTOTT ( FŰTÉS, HŰTÉS, ÖNTÖZÉS, VILÁGÍTÁS IS TÁVOLRÓL VEZÉRELHETŐ) ikerház eladó.

Néhány dolog a teljesség igénye nélkül, amiért érdemes ezt a házat megnézni:

- Csendes környék

- Jó szomszédok

- Teljesen szeparált parkosított udvar

- Szinte Önálló ( csak tárlókapcsolat) ház

- Újszerű, nagyon jól felszerelt

- Rengeteg, igényes beépített bútor, akár a teljes berendezés

Nézzük a részleteket.

Műszaki tartalom:

- 30-as porotherm tégla falazat

- 15 cm homlokzati szigetelés

- 20 cm födémszigetelés

- Antracit szürke betoncserép fedés

- Műanyag rendszerű, két rétegű hőszigetelt ablakok, szúnyoghálóval ellátva

- Fűtése Gázcirkó, szobákban radiátoros, hidegburkolatos helyiségekben padló hő-leadással

- Hőszivattyús hűtő-fűtő klíma

- Hűtés, fűtés, öntöző berendezés, világítás távolról is vezérelhető

- Szellőztető rendszer

- Öntöző berendezés

-Kerti tárolók

- Gondozás mentes utcafronti kerítés

- Beépített gépesített konyhabútor

- Nagy méretű, beépített előszobabútor

- Kádas és épített zuhanyzós fürdőszoba

- Minőségi szaniterek és csapok

- Igényes világítás technika

- Akár a teljes berendezés és dekorációval együtt is megvásárolható



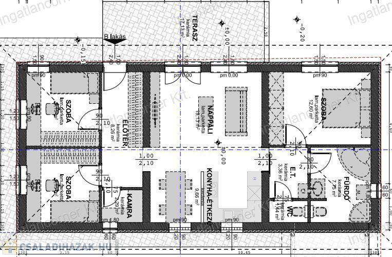
Elrendezése:

- teljesen külön bejáratú az udvar, csak tároló kapcsolat a szomszéddal

- Körbekerített, szabályos telek

- 20 m2 fedetlen terasz

- Nagy méretű, beépített bútorokkal ellátott előszoba

- 3 hálószoba

- Kamra-tároló helyiség

- Nappali -étkező -konyha, igényes, minőségi gépekkel ellátott konyhabútor( Hűtőszekrény, mosogatógép, főzőlap, sütő, elszívó berendezés)

- Wc

- Fürdőszoba épített zuhanykabinnal, sarokkáddal, WC-vel

Tágas , élhető, világos terek, igényes burkolatok, minőségi berendezések és bútorok jellemzik az épületet.

Mivel 2021-ben lett átadva, teljesen a mai kor igényeinek megfelelő.

teljesen szeparált az össze szomszédtól, távol van az utcától így nagyon csendes.

A benne lévő extrák miatt, kiváló ár-érték aránnyal bír.

Lokációját tekintve, közel a központhoz, de csendes helyen található.

Tömegközlekedés, napi bevásárlás, orvos, patika, állatorvos gyalogosan is megközelíthető.

A Dunapart, a parkerdő autóval, bringával néhány perc, gyalogosan 15 percre található.

Az erdőben 12 km túra útvonal, a parton 4 km, autó forgalomtól hetes sétány, vizieszköz bérlési lehetőség, éttermek, fagyizók, játszóterek találhatók, így a pihenő idő is könnyen eltölthető.

Nincs korosztály akinek ne ajánlanám, mind a települést, mind a házat.

Hívjon bizalommal, szívesen mutatom.

Vásárlását bank független hitel tanácsadással és ügyvédi háttérrel segítjük.

Családi ház részletei

Ár: 114 900 000 Ft
Méret: 110 négyzetméter
Azonosító: 11577974
Irodai azonosító: 107004174
Telek: 342 négyzetméter
Ingatlan állapota: Kitűnő
Jelleg: ikerház
Építőanyag: Tégla
Fűtés jellege: Központi
Komfort fokozat: Összkomfort
Egész szobák: 4

Videók (1)


Így keressen családi házat négy egyszerű lépésben. Csupán 2 perc, kötelezettségek nélkül!

Szűkítse a családi házak
listáját
Válassza ki a megfelelő
családi házat
Írjon a hirdetőnek
Várjon a visszahívásra