Eladó családi ház Szigetcsép 95 000 000 Ft

Leírás

SZIGETCSÉPEN, MAGAS FELSZERELTSÉGŰ, HŐSZIVATTYÚS,
3 SZOBA+NAPPALIS, ÖSSZKOMFORTOS ÚJ CSALÁDI HÁZ, KIVÁLÓ REFERENCIÁVAL RENDELKEZŐ BERUHÁZÓTÓL ELADÓ!

Szigetcsépen, Hév-megállótól 5 perc sétára, most épülő, DNY fekvésű, 101 m2 nettó (br.133 m2) lakóterületű, rendkívül jó beosztású, önálló, dupla komfortos egyszintes, alacsony fenntartási költségű lakóház, magas alapfelszereltséggel, 838 m2 összközműves bekerített telekkel, nyitott gépkocsi beállóval eladó.

Műszaki tartalom:
-Vasbeton alap
-30-as YTONG tégla falazat
-Padló alatt 10 cm hőszigetelés,
-Homlokzaton 12 cm normál hőszigetelő rendszer tört-fehér nemes vakolattal színezve
-Lábazaton 10 cm xps szigetelés sötét szürke műgyanta
-Fagerendás födém gipszkarton mennyezettel, 25 cm fújt hőhídmentes szigetelés
-Impregnált fa tetőszerkezet, felső kategóriás sík betoncseréppel antracit színben páraáteresztő fóliával
-Válaszfalak 10 cm-es YTONG
-Vakolt fal 2 réteg glettelés, 2 réteg festés fehér színben
-Belső MDF nyílászárók
-Hideg,- illetve meleg burkolat 6000 Ft/m2 árig választhatók
-Hibrid fűtésrendszer (hőszivattyú/kombi gázkazán), hőleadás padlófűtéssel
-Személybejáró, ház körüli kísérő járda térkövezett,
-Gépkocsi beálló murvás, kérésre térkövezett térítés ellenében
-Terasz fagyálló hidegburkolattal burkolva
-Antracit alumínium csatornát tartalmaz
-Kiegészítő hűtés-fűtésnek 1 db inverteres klíma A+ energia osztály
-Riasztó előkészítés
-Fúrt kút

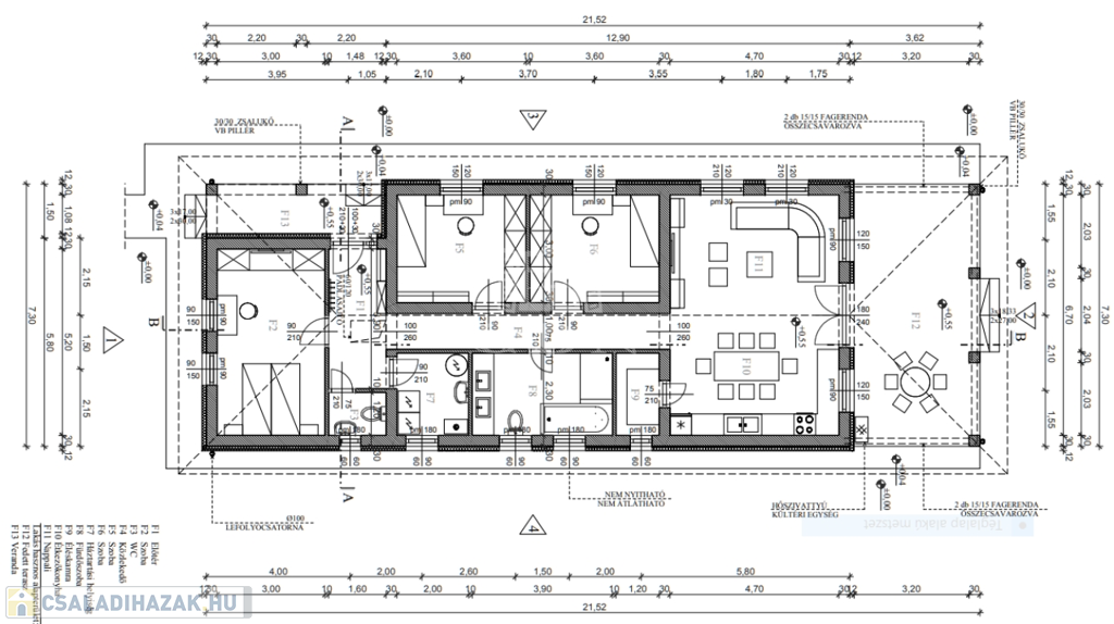
Az otthon helyiségei:
-Előtér 6,24 m2
-Szoba 15,60 m2
-Közlekedő 7,90 m2
-Szoba 10,80 m2
-Szoba 10,80 m2
-Nappali 20,21 m2
-Étkező/konyha 11,28 m2
-Kamra 2,76 m2
-Háztartási helyiség 4,60 m2
-Wc 1,92 m2
-Fürdőszoba 8,97 m2
Lakás hasznos lakóterülete 101,08 m2
-Fedett terasz 25,55 m2
-Veranda 6,73 m2

Tervezett átadás 2025 év vége.

Szigetcsép a Csepel-sziget egyik legbájosabb települése, Budapesttől mindössze 30 km-re. Kiváló elhelyezkedése és jó közlekedése révén ideális választás azoknak, akik csendes, természetközeli környezetre vágynak. A Ráckevei-Duna közelsége nemcsak gyönyörű kilátást, hanem horgászási és vízi sportolási lehetőségeket is kínál. A környék nyugodt, barátságos, kiválóan alkalmas állandó otthonnak.

Nálunk mindent egy helyen intézhet:
- hivatalos ingatlanközvetítés;
- szakszerű jogi képviselet;
- profi CSOK-PLUSZ, és hitelügyintézés: 16 Bank, több mint 100 konstrukció;

Kérésére, műszaki leírást, nagy-felbontású alaprajzot küldök!

VÁROM MEGTISZTELŐ HÍVÁSÁT!

Családi ház részletei

Ár: 95 000 000 Ft
Méret: 101 négyzetméter
Azonosító: 11552036
Irodai azonosító: 385261
Cím: Pest megye
Telek: 838 négyzetméter
Ingatlan állapota: Kitűnő
Jelleg: családi ház
Építőanyag: Kérdezzen rá a hirdetőtől »
Fűtés jellege: Geotermikus
Fűtés módja: Hőszivattyú
Komfort fokozat: Összkomfort
Kor: Új építésű
Szintek száma: Földszintes
Egész szobák: 4

Egyéb jellemzők

  • Csatorna
  • Garázs
  • Pince
  • Terasz

Térkép


Így keressen családi házat négy egyszerű lépésben. Csupán 2 perc, kötelezettségek nélkül!

Szűkítse a családi házak
listáját
Válassza ki a megfelelő
családi házat
Írjon a hirdetőnek
Várjon a visszahívásra