Eladó családi ház Szigetbecse 79 900 000 Ft

Leírás

ÚJ ÉPÍTÉSŰ A+ ENERGETIKAI BESOROLÁSÚ, AMERIKAI KONYHA NAPPALI+ NÉGY SZOBÁS ÖNÁLLÓ CSALÁDI HÁZ ELADÓ SZIGETBECSÉN!

Szigetbecsén új építésű ingatlanok szomszédságában, kínálunk megvételre 10% önerővel leköthető, falusi CSOK-ra CSOK+-ra alkalmas családi házat, közvetlen beruházótól!

A bruttó 120 m2, 100 m2 hasznos lakóterű otthon, 480 m2 körülkerített telken épül meg, 2024 év végi átadással
.
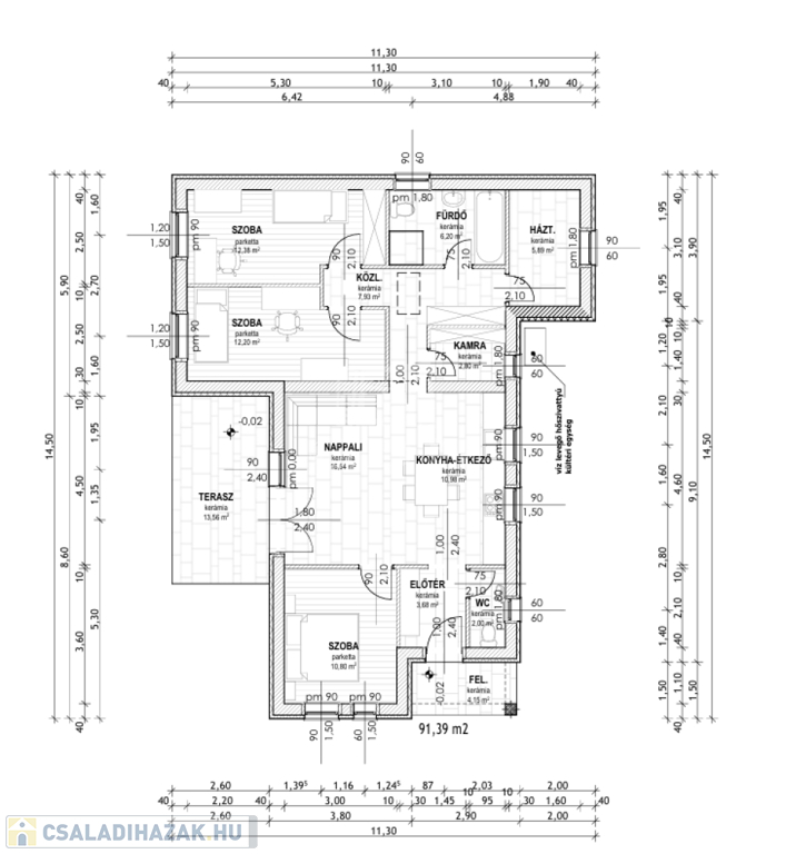
Helyiségei:amerikai konyha nappali 27,52 m2 teraszkapcsolattal,
3 szoba egyenként 10,80 m2,12,20 m2, 10,09 m2, 12,38 m2, fürdőszoba 5,20 m2, háztartási helyiség 4,37 m2, közlekedő 7,03 m2
előtér 3,68 m2, wc 2,00 m2, előtér 3,68 m2, terasz 13,56 m2.

Az ingatlan rendkívül gazdag műszaki tartalommal épül meg!
-Leier 30 NF falazat
-12 cm homlokzati szigetelés
-fújt, PUR habos tetőszigetelés
-burkolólapok és laminált parketta 6000 Ft/nm és 5000 Ft/nm áron választhatók
-3 rétegű műanyag nyílászárók redőnnyel, szúnyoghálóval, teraszon alumínium motoros redőnnyel felszereltek
-8 kw hűtő/fűtő hőszivattyú 230 V padlófűtéssel, hűtéssel
-riasztó vezetékelve
-a szükségestől több elektromos kiállás (80 db)
-térkövezett járda
-térkövezett autóbeálló
-fürdőkád 70.000 ft-ig választható,
-csaptelepek 30.000 ft/db-ig választhatók.
-mosdók 30.000 ft/db-ig választhatók.
-törölköző szárító 30.000 ft-ig választható.
-Wc kagylók: 30.000 ft/db-ig választhatók.
-Wc nyomólapok: 12.000 ft/db-ig választható az árban.
a teljes műszaki tartalom a szerződés részét képezi.
-Áramellátás 3x16 A, H-tarifa 1x25 A

Amennyiben fontos Önnek, a természet közelsége a nyugodt környezet ne keressen tovább, megtalálta álmai OTTHONÁT!
Az ingatlan kiváló minőségű anyagokból, profi kivitelezéssel épül!
Amennyiben további kérdése van keressen bizalommal!

FINANSZÍROZÁS:
Nálunk mindent egy helyen intézhet:
- hivatalos ingatlanközvetítés;
- szakszerű jogi képviselet;
- profi CSOK-PLUSZ, és hitelügyintézés: 16 Bank, több mint 100 konstrukció;

A részletes adatvédelmi tájékoztató folyamatosan elérhető a GDN weboldalán.

Családi ház részletei

Ár: 79 900 000 Ft
Méret: 100 négyzetméter
Azonosító: 11599362
Irodai azonosító: 392644
Cím: Balassi Tó közelében
Telek: 460 négyzetméter
Ingatlan állapota: Kitűnő
Jelleg: családi ház
Építőanyag: Tégla
Fűtés jellege: Geotermikus
Fűtés módja: Hőszivattyú
Komfort fokozat: Dupla komfort
Kor: 1-5 éves
Szintek száma: Földszintes
Egész szobák: 4

Egyéb jellemzők

  • Csatorna
  • Garázs
  • Pince
  • Terasz

Térkép


Így keressen családi házat négy egyszerű lépésben. Csupán 2 perc, kötelezettségek nélkül!

Szűkítse a családi házak
listáját
Válassza ki a megfelelő
családi házat
Írjon a hirdetőnek
Várjon a visszahívásra