Eladó családi ház Szerencs 21 900 000 Ft

Leírás

Szerencs egyik nyugodt, barátságos részén kínáljuk eladásra ezt a 64,99 m² nettó hasznos alapterületű, masszív szerkezetű családi házat, amely egy impozáns, 1662 m²-es, teljesen közművesített telken helyezkedik el. Az ingatlan adottságai és a telek mérete ritka lehetőséget kínálnak mindazoknak, akik tágas környezetben, saját igényeik szerint alakítható otthont keresnek.



???? Az ingatlan főbb jellemzői
Tégla és kő falazat, stabil, időtálló szerkezet
Fa födém, hagyományos, jól alakítható építési megoldás
Cserép héjazat, jó állapotban
Alacsony rezsiköltség, kedvező fenntartás
Teljes közművesítés
Udvari kút, amely kiválóan használható locsoláshoz vagy akár háztartási célokra
A telken található melléképület, amely szerepel a térképmásolaton – tárolásra, műhelynek vagy akár további fejlesztésre is alkalmas
A villanyvezetékek cserére szorulnak, így a leendő tulajdonos saját igényei szerint korszerűsítheti az elektromos rendszert


???? A telek és a környezet előnyei

A 1662 m²-es telek hatalmas mozgásteret biztosít: legyen szó kertészkedésről, állattartásról, játszótér kialakításáról vagy akár további építkezésről, itt mindenre van hely. A környék csendes, rendezett, mégis könnyen elérhetők a város szolgáltatásai, üzletei, iskolái és közlekedési lehetőségei.



???? Kinek ajánljuk?
Akik szeretnének nagy telekkel rendelkező, jól alakítható ingatlant
Felújítóknak, akik értékelik a masszív alapokat és a fejlesztési potenciált
Családoknak, akik nyugodt, zöld környezetben képzelik el új otthonukat


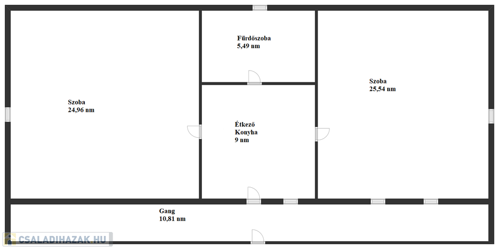
Helységlista:

Konyha, Étkező: 9 nm

Fürdőszoba: 5,49 nm

Szoba: 24,96 nm

Szoba: 25,54 nm

Családi ház részletei

Ár: 21 900 000 Ft
Méret: 64 négyzetméter
Azonosító: 11609018
Irodai azonosító: 351566
Telek: 1662 négyzetméter
Ingatlan állapota: Felújítandó
Jelleg: családi ház
Építőanyag: Tégla
Komfort fokozat: Összkomfort
Egész szobák: 2

Így keressen családi házat négy egyszerű lépésben. Csupán 2 perc, kötelezettségek nélkül!

Szűkítse a családi házak
listáját
Válassza ki a megfelelő
családi házat
Írjon a hirdetőnek
Várjon a visszahívásra