Eladó családi ház Szentendre 225 000 000 Ft

Leírás

✨ PANORÁMÁS ÁLOMOTTHON SZENTENDRE SZÍVÉBEN – LUXUS ÉS KÉNYELEM EGY KARNYÚJTÁSRA! ✨

Akár 1 hónapon belül költözhető!
Szentendre egyik kedvelt, frekventált részén eladó egy minden igényt kielégítő, új építésű, prémium kategóriás önálló családi ház. Ez az ingatlan a modern építészet és a funkcionalitás tökéletes ötvözete, ahol a tágas terek és a panoráma találkozik.
???? Főbb jellemzők:
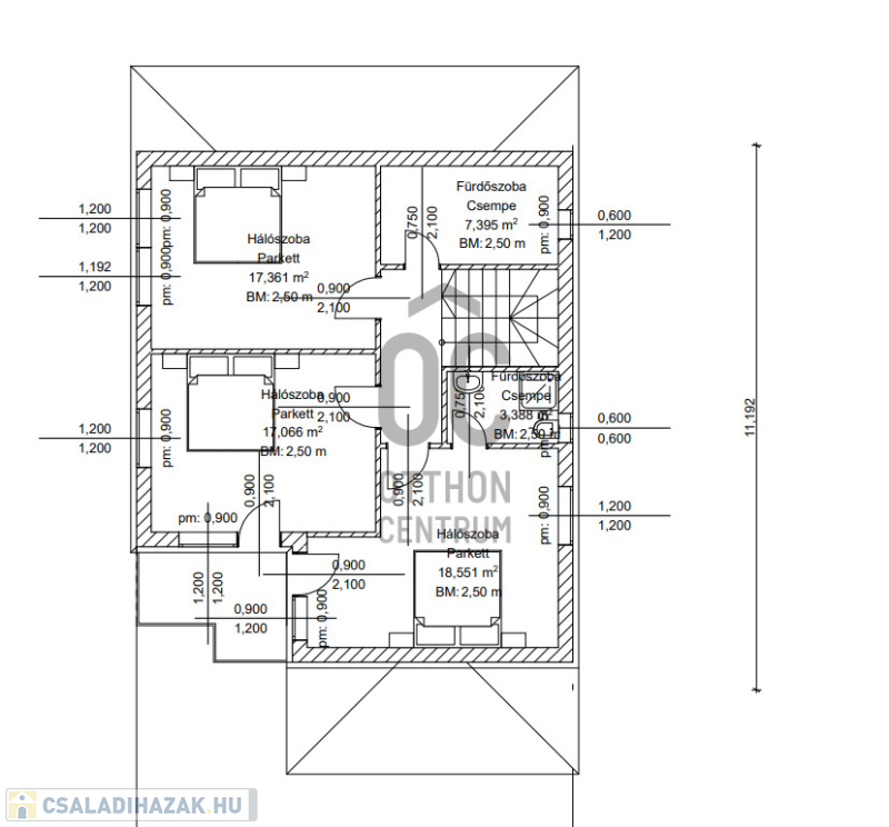
Alapterület: Nettó 175 nm lakótér.
Telek: 735nm
Terasz: 60 nm-es óriási terasz a földszinten + emeleti panorámás terasz.
Parkolás: Terasz alatt kialakított fedett, dupla gépkocsi beálló.
???? Belső kialakítás:
A ház belső elrendezése a családi intim szféra és a közösségi élet ideális egyensúlyára épül:
Földszint: Hatalmas, napfényben úszó nappali közvetlen teraszkapcsolattal. Teljesen felszerelt, gépesített konyha (hűtőszekrénnyel), étkező, kamra, vendég fürdőszoba, valamint egy hálószoba saját fürdőszobával.
Emelet: Három tágas hálószoba (melyből kettő teraszkapcsolatos), az egyik szobához saját fürdőszoba is tartozik.
???? Műszaki tartalom és extrák:
Az ingatlan a legmagasabb műszaki követelményeknek megfelelően épült, garantálva az alacsony rezsit és a maximális komfortot:
Szigetelés: 15 cm-es külső hőszigetelő rendszer és 3 rétegű prémium nyílászárók.
Gépészet: Bosch kondenzációs cirkó kazán, padlófűtés és hőszivattyús rendszer előkészítése.
Hűtés: Modern klímaberendezések minden helyiségben.
Kényelmi extrák: Elektromos rejtett redőnyök szúnyoghálóval, elektromos kapu előkészítés
Biztonság: Kiépített riasztó- és kamera-előkészítés.
???? Lokáció:
Kiváló elhelyezkedés! 200 méteren belül minden elérhető: buszmegálló, bevásárlási lehetőségek és kényelmi szolgáltatások, miközben a ház nyugodt, panorámás környezetet biztosít.
Ne maradjon le erről a kivételes lehetőségről!

A telek rendezése és a kerítés megépítése már az új tulajdonos feladata, így azokat saját ízlése és elképzelései szerint valósíthatja meg, végleges formát adva az ingatlan környezetének.
Igény esetén a tulajdonos vállalja a teljes befejezést külön egyezség alapján.

???? Várom hívását az időpontfoglaláshoz és további részletekért!

Családi ház részletei

Ár: 225 000 000 Ft
Méret: 171 négyzetméter
Azonosító: 11604464
Telek: 735 négyzetméter
Ingatlan állapota: Kitűnő
Jelleg: családi ház
Építőanyag: Kérdezzen rá a hirdetőtől »
Fűtés jellege: Cirkó
Egész szobák: 5

Egyéb jellemzők

  • Csatorna
  • Garázs
  • Kábel TV
  • Melléképület
  • Parketta
  • Pince
  • Terasz

Így keressen családi házat négy egyszerű lépésben. Csupán 2 perc, kötelezettségek nélkül!

Szűkítse a családi házak
listáját
Válassza ki a megfelelő
családi házat
Írjon a hirdetőnek
Várjon a visszahívásra