Eladó családi ház Szentendre 149 900 000 Ft

Leírás

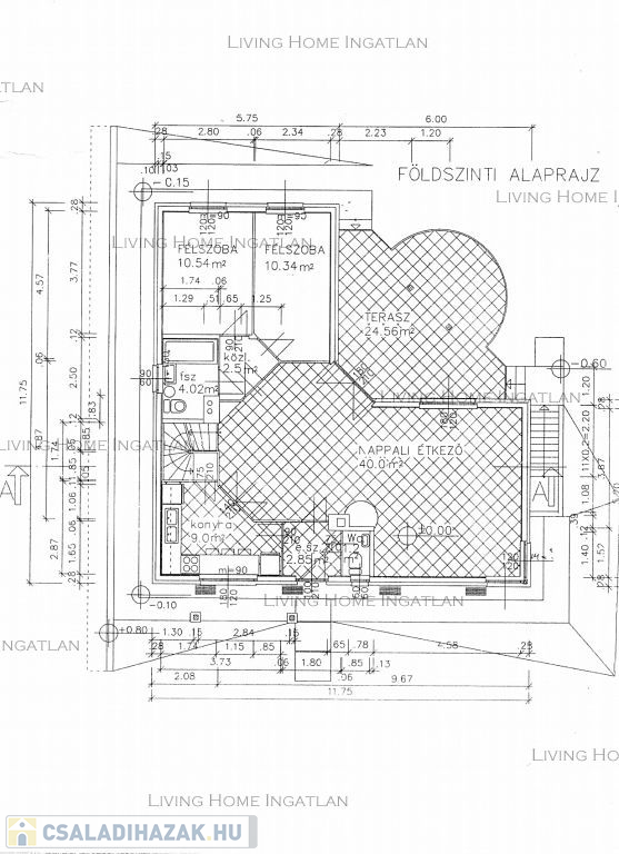
Szentendre Pismányban 190 nm-es családi ház eladó.



Telek mérete: 719 nm.



Terasz és erkély mérete: 30 nm.



Az ingatlan lakóövezetben található elvehetetlen pazar panorámával.



Saját részre épült, így praktikusan átgondolt, élhető terek jellemzik.



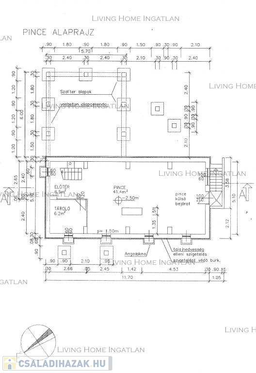
A hozzá tartozó pince mérete: 50 nm.



Egyéb: garázs, kőzetgyapot szigetelés, Bramac tetőcserép, gáz kazán, radiátor, padlófűtés, légkondi.



Elhelyezkedése remek, két aszfaltos utca frontról is megközelíthető.



Ajánljuk mindenkinek, aki egy szép, értékes házat szeretne vásárolni.



A családi ház alatti 719 nm-es telek szintén megvásárolható, külön helyrajzi számon van nyilvántartva.



Várjuk megtisztelő hívását!



Az alaprajz és az adatok tájékoztató jellegűek.



English: 



For sale a 190 sqm detached house in Szentendre Pismány.



Plot size: 719 sqm.



Terrace and balcony size: 30 sqm.



The property is located in a residential area with an unobstructed panoramic view.



The house is built on its own plot, so it is characterized by practical and livable spaces.



The cellar is 50 sqm.



Other: stone wool insulation, Bramac roof tiles, gas boiler, radiator, underfloor heating, air condition, garage.



The location is excellent, with access from two asphalted street fronts.



It is recommended for anyone who wants to buy a nice, valuable house.



The 719 sqm plot under the house is also available for purchase, registered under a separate parcel number.



We look forward to your call!



The floor plan and details are for information only.




Családi ház részletei

Ár: 149 900 000 Ft
Méret: 190 négyzetméter
Azonosító: 11500734
Irodai azonosító: 360651057-1461
Telek: 719 négyzetméter
Ingatlan állapota: Átlagos
Jelleg: családi ház
Építőanyag: Tégla
Fűtés jellege: Cirkó
Komfort fokozat: Dupla komfort
Kor: 21-50 éves
Elhelyezkedés: Panorámás
Egész szobák: 6

Egyéb jellemzők

  • Csatorna
  • Garázs
  • Kábel TV
  • Padlás
  • Pince
  • Terasz

Így keressen családi házat négy egyszerű lépésben. Csupán 2 perc, kötelezettségek nélkül!

Szűkítse a családi házak
listáját
Válassza ki a megfelelő
családi házat
Írjon a hirdetőnek
Várjon a visszahívásra