Eladó családi ház Székesfehérvár 96 000 000 Ft

Leírás

Eladó családi ház az Öreghegy szívében – Székesfehérvár
Nyugalom, panoráma és harmónia, mindössze 500 méterre a Bory-vártól!
Ez a 115 m²-es családi ház ideális választás azoknak, akik szeretnék élvezni a természet közelségét, mégis könnyen elérni a belvárost.

Főbb jellemzők

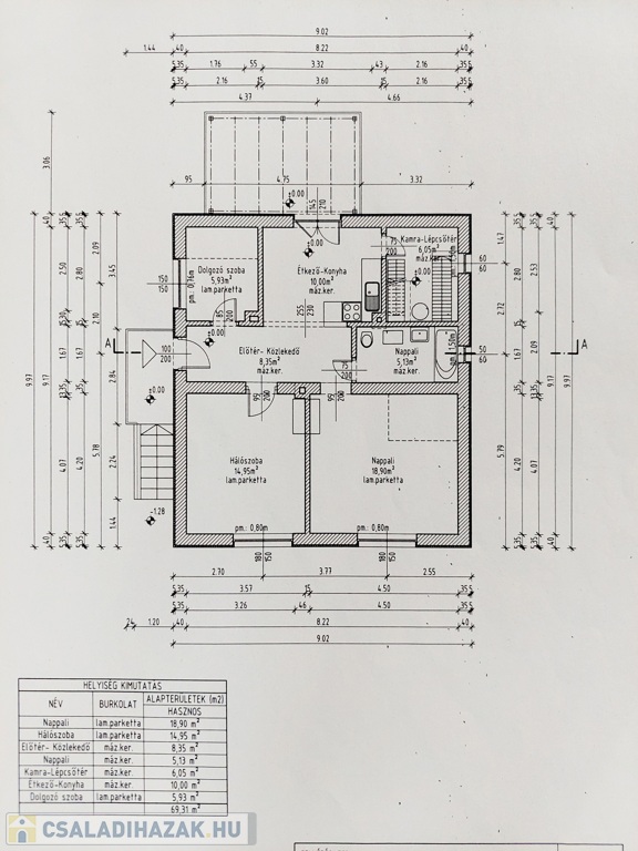
115 m² lakótér – világos, jól tagolt elrendezés

Lakószint: teraszkapcsolatos konyha, 2 szoba, 1 félszoba, fürdőszoba

Alsó szint: szaletliből nyíló szoba, 1 félszoba, fürdő

30 m²-es, déli fekvésű terasz szőlőlugassal – tökéletes reggeli kávéhoz vagy esti borozáshoz

Fűtés: modern gázkazán + hangulatos cserépkályha

Udvar: zárt, privát kert, fedett autóbeálló, szerszámos épület

Elhelyezkedés

Csendes, zöldövezeti utca

Gyalog pár perc: LIDL, Spar, posta, patika, orvosi rendelő

Közeli buszmegálló → belváros gyorsan elérhető

✅ További előnyök

Az ingatlan teher- és hitelmentes

Megfelel az Otthon Start hitel (3%) feltételeinek

Azonnal költözhető állapotban várja új tulajdonosát

Képzelje el, ahogy családjával a szőlőlugas árnyékában reggelizik, vagy a cserépkályha melege mellett pihen a téli estéken – ez az otthon mindezt megadja.

????Magánszemélytől irányáron! Hívjon most, és tekintse meg személyesen ezt a varázslatos öreghegyi házat!
+36 70 208 5088

Családi ház részletei

Ár: 96 000 000 Ft
Méret: 115 négyzetméter
Azonosító: 11563185
Telek: 557 négyzetméter
Rezsi: 35 000 Ft/hó
Ingatlan állapota:
Jelleg: családi ház
Építőanyag: Kérdezzen rá a hirdetőtől »
Fűtés jellege: Konvektoros
Komfort fokozat: Összkomfort
Szintek száma: 2 szint
Egész szobák: 3
Fél szobák: 2

Egyéb jellemzők

  • Beépíthető tetőtér
  • Csatorna
  • Melléképület
  • Padlás
  • Terasz

Térkép


Így keressen családi házat négy egyszerű lépésben. Csupán 2 perc, kötelezettségek nélkül!

Szűkítse a családi házak
listáját
Válassza ki a megfelelő
családi házat
Írjon a hirdetőnek
Várjon a visszahívásra