Eladó családi ház Székesfehérvár 89 000 000 Ft

Leírás

ÚJRA ELÉRHETŐ!
Kösse meg szerződését még 2025-ben, és 10%-os foglalóval biztosítsa új otthonát idei árakon!
Fix 3% hitel igényelhető!

H-003513. Székesfehérváron, a népszerű Maroshegyi családi házas övezetben, a Lugosi utcában új építésű, modern, világos, ÖNÁLLÓ családi házak eladók. Minden ház saját, kizárólagos, kerítéssel elválasztott telekrésszel, egyedülálló utcafronttal és saját közművekkel gépkocsibeállóval rendelkezik.
A 1-2. ütemek sikeres értékesítése után most a 3. ütemben KÉT ÚJ HÁZ építése kezdődik!
Házak átadási határideje:
1. ütem: 2023 – ELKELT
2. ütem: 2024 – ELKELT
3. ütem: 2026 – KÉT HÁZ ELÉRHETŐ
Kiváló energetikai besorolás, A+ minősítés, rendkívül alacsony rezsiköltségek!
A házak remek elhelyezkedése biztosítja, hogy a belváros és az M7-es autópálya mindössze pár percnyire található, miközben az elkerülő útnak köszönhetően könnyen elérhetők a város többi része is. A környéken minden szükséges szolgáltatás megtalálható: bevásárlóhelyek, orvos, iskola, bölcsőde, babaúszó medence és egyéb üzletek.
A telken összesen 2 lakóház épül. A házak teljesen függetlenek egymástól, így nem osztoznak sem pergolán, sem falon, sem garázson. Minden ház önálló utcafronttal és saját mérőórákkal rendelkezik.
A házak a legmodernebb építési szabványoknak megfelelően készülnek, Porotherm 30-as falazóelemekkel, korszerű hőszigeteléssel és 3 rétegű, 7 légkamrás ablakokkal. A hűtés-fűtésről hőszivattyús rendszer gondoskodik, biztosítva az energiatakarékos, fenntartható otthont.
A leendő tulajdonosok saját, kizárólagos használatú telekrészre kerülhetnek, az „A” ház 466 m²-es, a „B” ház 421 m²-es telekrésszel. A házakhoz modern teraszok is tartoznak, amelyek biztosítják a privát nyugodt pihenést. Az ingatlanok körbekerítettek, és saját, fedetlen gépkocsibeálló is rendelkezésre áll, amely opcionálisan garázzsá alakítható (fedéssel, befalazással), az épület stílusához illeszkedve.
A hirdetett kulcsrakész ár tartalmazza:
• Fürdőszobai szanitereket (mosdó, kád, csaptelep, WC)
• Belső nyílászárókat
• Elektromos aljzatokat és kapcsolókat
• Burkolatokat
Külön kérésre választható: redőny, riasztórendszer, klímaberendezés és napelem rendszer.
• A konyhabútor és lámpák nem részei a vételárnak.

Irányár: 89 000 000-Ft

Ház típusok:
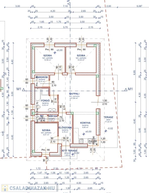
• A épület (földszintes): 78,9 m² | Terasz: 17,22 m² | Telek: 466 m²
Elrendezés: 3 szoba, nappali-étkező-konyha, háztartási helyiség, fürdő (kád és zuhanyzó), plusz vendég WC, gépkocsibeálló
Irány Ár: 89 M Ft
• B épület (földszintes): 78,9 m² | Terasz: 17,22 m² | Telek: 421 m²
Elrendezés: 3 szoba, nappali-étkező-konyha, háztartási helyiség, fürdő (kád és zuhanyzó), plusz vendég WC, gépkocsibeálló
Irányár Ár: 89 M Ft
További információkért, részletes műszaki dokumentációért és alaprajzokért forduljon bizalommal:
Posztlné Leiti Gabriella
Telefon: +36 30 503 00 00
Email: ingatlan@marcz.hu
Ha felkeltette érdeklődését, ne habozzon hívni minket! Segítünk a személyre szabott hitelügyintézésben, ügyvédi közreműködést biztosítunk, valamint energetikai tanúsítványt és értékbecslést is készítünk.
For English details, please contact us via message or email.

Családi ház részletei

Ár: 89 000 000 Ft
Méret: 79 négyzetméter
Azonosító: 11489041
Irodai azonosító: 378938
Cím: Lugosi utca
Telek: 466 négyzetméter
Ingatlan állapota: Átlagos
Jelleg: családi ház
Építőanyag: Tégla
Fűtés jellege: Geotermikus
Fűtés módja: Hőszivattyú
Komfort fokozat: Összkomfort
Kor: Új építésű
Szintek száma: Földszintes
Egész szobák: 4

Egyéb jellemzők

  • Csatorna
  • Garázs
  • Pince
  • Terasz

Térkép


Így keressen családi házat négy egyszerű lépésben. Csupán 2 perc, kötelezettségek nélkül!

Szűkítse a családi házak
listáját
Válassza ki a megfelelő
családi házat
Írjon a hirdetőnek
Várjon a visszahívásra