Eladó családi ház Székesfehérvár 84 900 000 Ft

Leírás

Új építésű, korszerű, önálló családiházak 450m2 kerttel!
Otthon Start Program ( 3%-os hitel) igényelhető!
Költözhető 2026.06.30

Egyedi alkalmi ajánlat az első „A” jelű házra:
- eladási ár: 84 900 000.-
( feltétel 10% foglaló és 30% önerő befizetése)
- átadási határidő: 2026.06.30 költözhető.

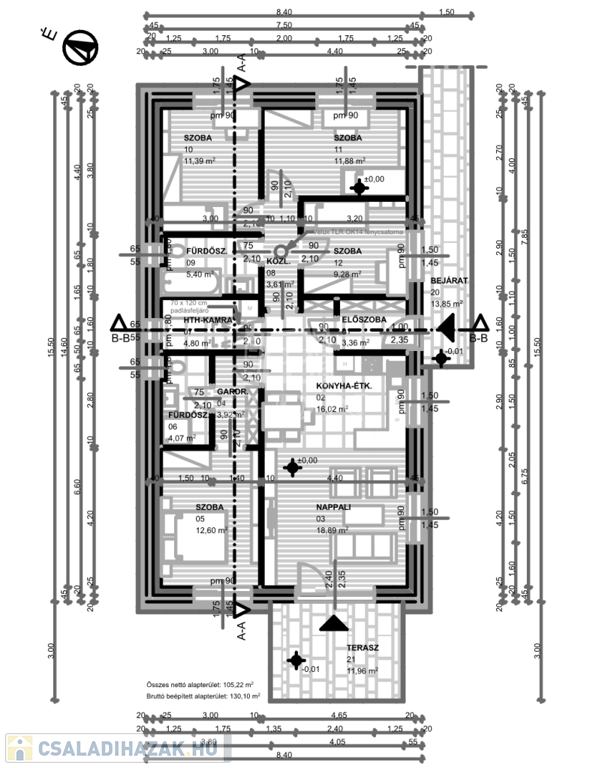
H-004368. Székesfehérváron, Feketehegyen frekventált, kedvelt részén (Rába utca-Körösi utca) RÁBA-LIGET Lakóparkban, összközműves 450m2-es építési telken eladó egy egyszintes, új építésű igényes, egyedi kivitelezésű 85 m2 hasznos alapterületű, nappali + 3 szobás családi ház terasszal.

Energiahatékony ingatlan, rezsiköltség rendkívül alacsony!
Az ingatlan könnyen megközelíthető, a környék tömegközlekedése jó, pár perc alatt gyalogosan elérhető a buszmegálló. A központban orvos, iskola, bölcsőde, óvoda, Bevásárló központ, üzletek megtalálhatóak. Környezete kiépült.

A területre 6db családiház épül, elérhető ingatlanok:
- 2 db nappali+2 szobás, ELKELT
- 3db nappali+3 szobás : 2 DB SZABAD
- 1db nappali+4 szobás : Elkelt

A ház tágas, világos, minőségi anyagokból készült. A ház szerkezete Porotherm tégla kívülről 20 cm szigeteléssel nemesvakolattal. A födém külső borítás cseréppel (BRAMAC) készül alatta a megfelelő vastagságú fóliázattal.

A nyílászárók műanyagból készültek,3 rétegű hőszigetelt üvegezéssel, rejtett redőny tokkal. A burkolatok magas minőségű járólap, illetve laminált padló. Fűtése-melegvíz: hőszivattyú megoldással, padlófűtéssel.

Az ár tartalmazza:,
- a kulcsrakész kivitelezésen felül, a telkeket elválasztó kerítést 3 oldalról, 1 db klímát, térkövezett teraszt és járdát, H-tarifa bekötést ( kivétel az óra) , locsolómérős vízórát
Átadási határidő: a 3 szobás házak 2026.05.30 hó-06.30 hó

Az ár NEM tartalmazza:
- beépített bútorok, konyhabútor gépekkel, utcafronti kerítés kapu, redőny ( beépített redőnytokot igen, motoros kiállással), rovarhálót

Az ár tartalmazza: a kulcsrakész kivitelezést,


Megközelítés: aszfaltozott útról, saját utcafront, saját telekterület, ezen belül saját önálló mérőórák. (víz, locsolómérő is, villany, csatorna van)

A ház elosztását tekintve: Amerikaikonyhás nappali étkező + 3szoba (11m2), gardrób + 2db fürdőszoba + wc, terasz (12m2)
Praktikusság miatt fő szempont volt, az élhető terek kialakítása is ezért 11 m2 nagyságú hálószoba készült. A nappaliból közvetlen kijárat van a teraszra

Fontosabb paraméterek:
● 2026-ban épül
● 450 m2 önálló telekterület
● Porotherm tégla, 20cm grafitos szigeteléssel, nemesvakolattal, padlóban 10cm, födémen 25cm szigetelés
● Nappali + 3 hálószoba + kicsi gardrób+ háztartási helyiség + 1 fürdőszoba-wc-vel+ vendég wc+ terasz
● Saját telekterület, saját utcafront
● Akadálymentesített bejutás
● Hőszivattyú, padlófűtés, 1db klíma az árban
● a riasztó rendszer alapszerelés
● Alacsony rezsiköltség,
Eladási irányár:
• 2 szobás ház (nappali + 2 szoba): ELKELT
• 3 szobás ház nettó 85m2 (nappali + 3 szoba): 2DB SZABAD
• - „A”ház akciós ára: 84 900 000.- ( első ház)
• - „E”ház ára: 87 500 000.- ft ( ötödik ház)
• 4 szobás ház nettó 105m2 (nappali + 4 szoba): ELKELT
Igény esetén bizonyos készültségi fok eléréséig, a belső burkolatok, ajtók szaniterek választhatók.

Megbízható és tapasztalt kivitelező jegyzi a ház építését, több mint 30 éve múlttal, számtalan referenciaépülettel rendelkezik Székesfehérváron.
A vásárláshoz, a jelenleg aktuális otthonteremtésére vonatkozó támogatás igénybe vehető (CSOK, Jelzáloghitel, Babaváró kölcsön, Piaci hitel…)

Az ingatlan adottságainak, fekvésének köszönhetően alkalmas, gyermekes családoknak.. továbbá vállalkozásra, üzleti vagy befektetési célra, hiszen akár bérbe adható,vagy irodai tevékenység,(Csendes tevékenység engedélyezett).

Családi ház részletei

Ár: 84 900 000 Ft
Méret: 85 négyzetméter
Azonosító: 11569054
Irodai azonosító: 387988
Cím: Rába utca
Telek: 450 négyzetméter
Ingatlan állapota: Kitűnő
Jelleg: családi ház
Építőanyag: Tégla
Fűtés jellege: Geotermikus
Fűtés módja: Hőszivattyú
Komfort fokozat: Összkomfort
Kor: Új építésű
Szintek száma: Földszintes
Egész szobák: 5

Egyéb jellemzők

  • Csatorna
  • Garázs
  • Pince
  • Terasz

Térkép


Így keressen családi házat négy egyszerű lépésben. Csupán 2 perc, kötelezettségek nélkül!

Szűkítse a családi házak
listáját
Válassza ki a megfelelő
családi házat
Írjon a hirdetőnek
Várjon a visszahívásra